Vom Licht durchflutet

Ein Einfamilienhaus in Meerbusch besticht durch fließende Blickverbindungen

Das in einer ruhigen Wohngegend gelegene, großzügige Grundstück ist ein Traum: Mit ausreichendem Abstand zur Nachbarbebauung bot sich schrötgens architekten aus Mönchengladbach die Möglichkeit, den Neubau über alle drei Sonnenseiten zu bespielen und mit großzügigen Glasflächen zu öffnen. Der gestaffelte Baukörper ruht mittig auf dem weitläufigen Gartengrundstück und öffnet sich mit seinen großformatigen Glas-Schiebeanlagen über eine Hauptterrasse zum weitläufigen Garten nach Osten und über die Küche zum Pool nach Süden. Durch die allseitigen Öffnungen kann der Blick ungehindert durch die Räume fließen, Innen und Außen gehen harmonisch ineinander über. Die Fassade des kubischen Gebäudes mit zurückspringendem Staffelgeschoss wird geprägt durch einen hellen, schlanken wie besonders lang geformten Wasserstrichziegel.

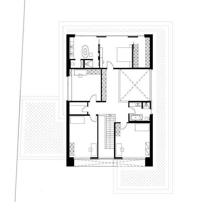
Der Klinkerstein steht im Kontrast zu den großen Glasflächen und schafft ein optisches Spannungsfeld zwischen Schwere und Leichtigkeit. Über einen kleinen Vorplatz erreicht man den Haupteingang, der durch einen Vorsprung im Erdgeschoss räumlich gefasst wird. Die Garage ist durch ihre filigranen Eichenholzlamellen gestalterisch vom Haus abgesetzt. Das cremefarben verputzte Obergeschoss kragt hervor und bildet so zugleich das Vordach für den Eingangsbereich. Der Eintritt in das Haus erfolgt auf der Hauptblickachse zum Garten – der offene, mit dem Außenraum verbundene Charakter des Gebäudes wird so bereits auf den ersten Blick sichtbar. Der Grundriss spiegelt den Wunsch der vierköpfigen Familie mit Hund nach einem offenen Zuhause wider: Von der Kücheninsel kann der Blick über den Esstisch bis hinein ins Wohnzimmer schweifen. Auch das angrenzende Arbeitszimmer lässt sich über eine großzügige Schiebetür kommunikativ zum Wohnraum öffnen.

Über dem Essbereich erstreckt sich schließlich ein hoher Luftraum ins Obergeschoss, der durch höhenverstellbare Lichtringe vertikal bespielt wird. Nicht nur die Farbgebung der reduziert verwendeten Materialien strahlt dabei Ruhe und eine elegante Gemütlichkeit aus, auch der Akustikputz im Bereich der Obergeschossdecke sorgt für ein besonders angenehmes Raumgefühl. Im Erdgeschoss wird der warme Eichenholzton der Einbauten und der Wandlamellen durch den Sichtestrichboden kontrastiert und mit hellen Gestaltungselementen wie den Vorhängen ergänzt. Eine indirekte Beleuchtung mit wiederkehrenden LED-Strips und Einbaustrahlern akzentuiert Gaskamin und maßangefertigtes Einbaumobiliar. Entstanden ist ein allseitig durchdachtes Wohnhaus voller Licht und Leben.

www.schroetgens-architekten.de

Wohnfläche: 380 m²
Grundstücksgröße: 2.000 m²
Bauzeit: 1,5 Jahre
Bauweise: Massivbau
Energiekonzept: Wärmepumpe mit PV-Anlage

Fotos:

Constantin Meyer
www.constantin-meyer.de

(Erschienen in CUBE Düsseldorf 01|25)

Architektur:

schrötgens architekten
www.schroetgens-architekten.de

Klinker:

Randers Tegl
www.randerstegl.de

Einbauten und Innentüren:

Heyer Schreinerei – Innenausbau
www.heyer-schreinerei.de

Küche:

Thelen & Drifte
www.thelen.de

Sichtestrich:

Bräuner
www.braeuner.de

Putz und Trockenbau:

Kroker Stuck
www.kroker-stuck.de

Sanitär:

Kupke Haustechnik
www.kupke-haustechnik.de

Außenanlage:

Meuters & Eckers
www.meuters-eckers.de

Gründach:

Ahrens & Krämer
www.ak-galabau.eu

Heizung:

Lewerenz Energiespartechnik
www.lewerenz.de

Photovoltaikanlage:

Econ SolarWind
www.econsolarwind.de

Swimmingpool:

Poolfab
www.poolfab.de

Dachdeckerei:

Rieck & Lingen Bedachungen
www.rieck-lingen.de

Elektro:

Elektrotechnik Mura
www.elektrotechnik-mura.de

Alarmanlage/Zugangskontrolle:

Anton Teeuwen
www.teeuwen-alarm.de

Fenster:

Starke Aluminiumbau
www.starke-aluminiumbau.de

Vorhänge:

Raumausstattung Terstappen
www.raumausstattung-terstappen.de

Fliesen:

Monte Graniti Naturstein
www.monte-graniti.de

Garagentor:

Hörmann
www.hoermann.de

Bau:

Bernaisch Bauelemente
www.bernaisch.de

Leuchten:

Astro
www.astrolighting.com
Molte Luce
www.moltoluce.com
s.luce
www.skapetze.com
Occhio
www.occhio.com

Sofa (Wohnzimmer) und Stühle (Essplatz):

Bolia
www.bolia.com

Sanitär-Keramik:

Vola
de.vola.com
Catalano
www.catalano.it

Spiegel:

Vallone
www.vallone.de

CM-2074-003_15_700pixel

Behutsam eingefügt

Ein multifunktionales Gemeindezentrum besticht durch städtebauliches Fingerspitzengefühl

Schopps-412Kronst-067_15_700pixel

Einheit mit Vielfalt

Ein Wohnquartier in Lindenthal überzeugt durch differenzierte Gestaltung und grüne Aussichten

Erhaben Präsenz – schrötgens architekten, Mönchengladbach | Projekte 08/2023

Erhabene Präsenz

Moderne und Tradition verbinden sich stimmig in einem Familiendomizil

Haus_H10_01_47_700pixelEDdgsJLHpsA2p

Perspektiven im Grünen

Ein Einfamilienhaus am Hang im Osten Düsseldorfs zeigt einen perfekt ausbalancierten Grundriss

02_Frontansicht_15_700pixel

Sichtachsen im Dialog

Das zur Gartenseite hin seitlich abfallende Grundstück war dabei Herausforderung und Chance zugleich.

Farbspektrum

Ein Business Club in Citylage setzt farbenreich auf Exzellenz und Vielfalt

Ein Teil des Waldes

Umbau einer Scheune zu einem modernen Rückzugsort

Passgenau am Bach

Eine geförderte Wohnanlage in Bergisch Gladbach ordnet sich kleinteilig in ihren Kontext ein

Ästhetik in jeder Hinsicht

Das Design einer oralchirurgischen Praxis vermittelt Ruhe, Kompetenz und Wärme

CM-2074-003_15_700pixel

Behutsam eingefügt

Ein multifunktionales Gemeindezentrum besticht durch städtebauliches Fingerspitzengefühl

Schopps-412Kronst-067_15_700pixel

Einheit mit Vielfalt

Ein Wohnquartier in Lindenthal überzeugt durch differenzierte Gestaltung und grüne Aussichten

Erhaben Präsenz – schrötgens architekten, Mönchengladbach | Projekte 08/2023

Erhabene Präsenz

Moderne und Tradition verbinden sich stimmig in einem Familiendomizil

Haus_H10_01_47_700pixelEDdgsJLHpsA2p

Perspektiven im Grünen

Ein Einfamilienhaus am Hang im Osten Düsseldorfs zeigt einen perfekt ausbalancierten Grundriss

02_Frontansicht_15_700pixel

Sichtachsen im Dialog

Das zur Gartenseite hin seitlich abfallende Grundstück war dabei Herausforderung und Chance zugleich.

Geschichte trifft Innovation

Interior-Konzept mit modernen Designdetails für Büroräume in ehemaliger Seifenfabrik

Klares Design am Puls der Stadt

Das Hotel „the niu Hub“ bietet Komfort und Urban Lifestyle in Mörsenbroich

Titelbild_15_700pixel

Unaufgeregt und repräsentativ

Neue Parteizentrale der SPD besticht durch ihre facettenreiche Fassade

DSC_4297_8_9_Fusion-Natuerlich_15_700pixel

Ausgefächert in den Garten

Der ISR-Kindergarten in Niederkassel besticht durch seine individuellen Räume

_52A3824_15_700pixel

Räume wie Membrane

Ein durchdachtes Raumkonzept garantiert einem Zweifamilienhaus Ruhe und Privatsphäre

Konrad-Adenauer-Platz-5-C-Jan-Ladwig_15_700pixel

Stadtplatz mit vielen Inseln

Nutzerorientierte Umgestaltung des Konrad-Adenauer-Platz in Langenfeld

DSC00073_19_700pixel

Behutsames Update

Das Marie-Curie-Gymnasium in Neuss-Furth hat seinen Naturwissenschaftstrakt modernisiert

Zukunftsweisend heizen

Mit einer modernen Pelletheizung zur Energiewende beitragen