Perspektiven im Grünen

Ein Einfamilienhaus am Hang im Osten Düsseldorfs zeigt einen perfekt ausbalancierten Grundriss

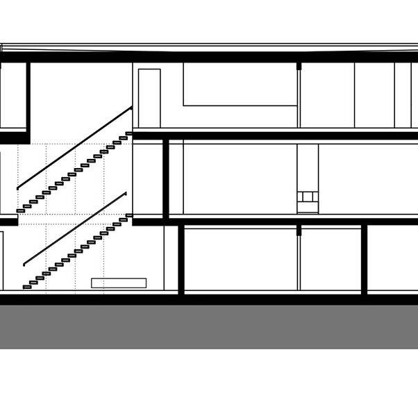
Haus_H10_01_47_700pixelEDdgsJLHpsA2p

Die Aussicht, die Stadt zu verlassen und aufs Land zu ziehen, hatte den Bauherren zunächst einiges an Vorstellungskraft abgefordert. Das Grundstück in einer bevorzugten Düsseldorfer Vorortlage mit unverbaubarem Weitblick und in nächster Nähe zu einem Pferdegut war für die Pferdesportler am Ende aber doch zu verlockend. Mit der Planung des geräumigen, lichtdurchfluteten Wohnhauses wurden schrötgens architekten aus Mönchengladbach beauftragt. Moderne klare Linien und vielfältige Sichtbezüge in die umliegende Landschaft waren von den Bauherren besonders gewünscht.

Das Wohnhaus am Ende einer Anliegerstraße greift die besondere topografische Situation auf: Die ausgeprägte Hanglage wird durch eine gezielte Höhenstaffelung ausgenutzt. Der vorhandene Höhenversatz von drei Metern erlaubte es, einen langgestreckten Baukörper mit drei Geschossen mit einem quer dazu orientierten, zweigeschossigen Baukörper zu kombinieren. In Folge ergibt sich zur Gartenseite ein eingeschossiger Quer- und ein zweigeschossiger Längsriegel. Im quer angeordneten Baukörper befinden sich die Haupt- und die Hauswirtschaftsküche, die fließend in den großzügigen Essbereich übergehen. Die komplett verglaste Küche mit zentralem Küchenblock sowie der Wohnbereich mit über Eck ausgeführten Glasfronten lassen sich zur Gartenseite und dem auf gleicher Achse liegenden Pool komplett öffnen. Gerade im Sommer bietet das der Familie einen erweiterten, Haus und Garten miteinander verschmelzenden Lebensraum – samt einer dazu passenden Outdoorküche. Eine raumgliedernde Wand zwischen Wohn- und Essbereich nimmt den Gaskamin und die TV-Anlage mit der Beamer-Leinwand auf. Über eine minimalistisch im Raum schwebende Kragarmtreppe mit Stufen aus hochwertigem Holz gelangt man auf die Wohn­etage im 2. Obergeschoss, wo sich mehrere Schlafzimmer und Bäder en suite befinden. Letztere sind mit flächenbündigen Waschtischen aus Acrylstein, schlichten Edelstahlarmaturen, LED-Lichtbändern sowie großflächigen Spiegeln gestaltet. Die Spiegel gehen nahtlos in das Fensterband über, wodurch die Natur geschickt in das Haus geholt wird.

Über ein zentrales, ebenfalls sehr transparent gehaltenes Entree im untersten Geschoss wird eine geräumige Gästewohnung mit Südterrasse erreicht. Von hier aus erfolgt zudem der Zugang zum Wellness- und Sportbereich mit Kamin sowie zu den integrierten Stellplätzen mit Lademöglichkeit für elektrische Autos und einem Lastenaufzug zu den oberen Etagen. Zur technischen Ausstattung gehört ein vernetztes Binary Unit System, das die smarte Steuerung der Erdwärmeanlage übernimmt. Letztere wurde so vorgerüstet, dass sie in Zukunft optional auch über eine Photovoltaikanlage mit Batteriespeicher betrieben werden kann. Die konvertierbare Fußbodenheizung ermöglicht eine Kühlung im Sommer und wird durch die kühlende Wirkung der vollflächigen Dachbegrünung ergänzt. Die vollintegrierte Hifi-Anlage verschwindet bündig in der Decke und überzeugt gleichzeitig durch beste Soundqualität.

Die Bauherrenfamilie legte Wert auf eine zurückhaltende, moderne Optik des Hauses, welche sie mit ausdrucksstarken Möbeln und hochwertiger Kunst beleben wollte. Prägend hierfür ist der geschliffene Sichtestrich, helle Fensterprofile aus Aluminium und weißes Einbaumobiliar. Diese Elemente bilden einen cleanen Grundsound für die Kreativität der Bauherren und ermöglichen es, das Haus immer wieder weiter zu gestalten. Genauso viele Qualitäten bietet der großzügige Garten: Von der Sauna führt eine Treppe zum Pool und zur Außendusche mit Blick über die Felder. Eine Holzterrasse mit Loungemöbeln und Feuerstelle ermöglicht das Zusammensitzen mit Freunden, wobei ein großer erhaltener Baum Schatten an heißen Sommertagen spendet. In eingefassten Beeten wachsen Dünengras und Rispenhortensien, die zusammen mit dem alten Baumbestand eine grüne Traumlandschaft zum modernen Gebäude bilden.

www.schroetgens-architekten.de

Fotos:

Christian Köster
www.koester-fotografie.de

(Erschienen in CUBE Düsseldorf 03|22)

Architekten:

schrötgens architekten
www.schroetgens-architekten.de

Rohbau, Fassade:

Voullie
www.voullie.de

Möbel:

Heyer Schreinerei – Innenausbau
www.heyer-schreinerei.de

Treppe, Tisch:

Baumeister – Unternehmen für Inneneinrichtungen
www.baumeister-inneneinrichtungen.de

Küche:

Rosenschild
www.boffistudio-duesseldorf.com

Fliesen:

A. Elsing
www.elsing.cc

Putz, Trockenbau:

Kroker Stuck
www.kroker-stuck.de

Sanitär:

Carl Lechner
www.lechner.eu

Außenanlage:

Meuters & Eckers
www.meuters-eckers.de

Schlosser:

Metallbau Meba
www.meba-design.de

Treppe:

Metallart
www.metallart-treppen.de

Bodenbelag, Estrich:

Bräuner
www.braeuner.de

Heizung:

Lewerenz Energiespartechnik
www.lewerenz.de

Dach:

Rieck & Lingen Bedachungen
www.rieck-lingen.de

Elektroarbeiten:

Michael Zimmermann Elektrotechnik
Telefon: 02166-144192

Kamin:

S.K.Ö. Kaminstudio
www.kaminstudio-skoe.de

Pool:

Moeker Schwimmbadbau
www.moeker-pool.de

Outdoorküche:

Village Garden
www.village-garden.de

Leuchten:

Occhio
www.occhio.de
Molto Luce
www.moltoluce.com
Simes
www.simes.it
Boffi Studio Aarau
www.boffi-aarau.ch

Armaturen:

Vola
de.vola.com

Sanitäreinrichtung:

Hasenkopf
www.hasenkopf.de
Catalano
www.catalano.it

Toranlage:

Hörmann
www.hoermann.de

CM-2074-003_15_700pixel

Behutsam eingefügt

Ein multifunktionales Gemeindezentrum besticht durch städtebauliches Fingerspitzengefühl

DSC_1090_bearbeitet_19_700pixel

Einheit mit Vielfalt

Drei Bürogebäude bilden ein qualitätsvolles Ensemble

Erhaben Präsenz – schrötgens architekten, Mönchengladbach | Projekte 08/2023

Erhabene Präsenz

Moderne und Tradition verbinden sich stimmig in einem Familiendomizil

02_Frontansicht_15_700pixel

Sichtachsen im Dialog

Das zur Gartenseite hin seitlich abfallende Grundstück war dabei Herausforderung und Chance zugleich.

Vom Licht durchflutet

Ein Einfamilienhaus in Meerbusch besticht durch fließende Blickverbindungen

Wohnen im Komponistenviertel

Junges Wohnquartier in alter Nachbarschaft in Weissensee

Lichtdurchflutete Arbeitswelt

Hocheffizientes Bürogebäude in der Maxvorstadt

Gelungene Überführung

Der Umbau eines ehemaligen Wochenendhauses begeistert die Bauherrin

Individualität im System

Grundschule verbindet Planungs- und Fertigungseffizienz mit zeitgemäßer Gestaltung

CM-2074-003_15_700pixel

Behutsam eingefügt

Ein multifunktionales Gemeindezentrum besticht durch städtebauliches Fingerspitzengefühl

DSC_1090_bearbeitet_19_700pixel

Einheit mit Vielfalt

Drei Bürogebäude bilden ein qualitätsvolles Ensemble

Erhaben Präsenz – schrötgens architekten, Mönchengladbach | Projekte 08/2023

Erhabene Präsenz

Moderne und Tradition verbinden sich stimmig in einem Familiendomizil

02_Frontansicht_15_700pixel

Sichtachsen im Dialog

Das zur Gartenseite hin seitlich abfallende Grundstück war dabei Herausforderung und Chance zugleich.

Vom Licht durchflutet

Ein Einfamilienhaus in Meerbusch besticht durch fließende Blickverbindungen

DDJ-WH-Schlag-038_15_700pixel

Gefundenes Nest

Ein Einfamilienhaus in Angermund bietet viel Licht und grüne Ausblicke

D-WH-AmKiefernforst2-25_19_700pixel

Nachhaltig integriert

Ein Wohnhaus setzt auf Fahrradstation, Inroof-PV und Indoor-Wärmepumpe

Klares Design am Puls der Stadt

Das Hotel „the niu Hub“ bietet Komfort und Urban Lifestyle in Mörsenbroich

DDJ-WHIDL19-007_19_700pixel

Die Wand als Hauptakteur

Eine Stadtvilla in Lank-Latum verbindet auf effektvolle Weise Offenheit und Privatsphäre

Kleiner Garten ganz groß

Dank guter Planung wird aus einem überschaubaren Areal ein großzügiger Familiengarten

Nachhaltig und zentral

Das neue Hotel „The Cloud One“ überzeugt durch elegante Transparenz und urbane Ausblicke