Volle Rheinseite

Ein großzügiges Wohnhaus fängt den Fluss facettenreich ein

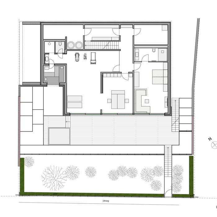
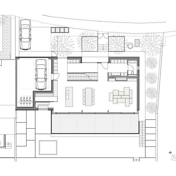
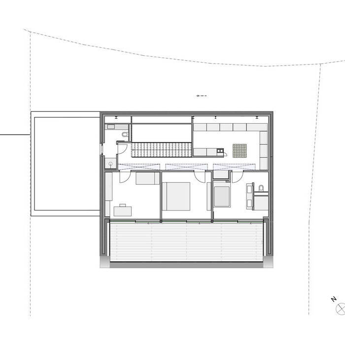
Eher überschaubar, dafür aber steil war das Grundstück auf einem Hochdeich des Rheins. Nordöstlich von einer Ortsstraße begrenzt, schien der Strom nach Südwesten sprichwörtlich zum Greifen nah. Die Düsseldorfer DDJ Architekten Döring Dahmen Joeressen entwickelten ein Wohnhaus auf drei Ebenen, das alle Räume großzügig mit Terrassen auf den Fluss ausrichtet – mit einer überraschend skulpturalen Wendung in der Kubatur.

Eigentlich hatten die Bauherren auf dem Grundstück für die vierköpfige Familie ein eingeschossiges Flachdachhaus mit zusätzlichem Staffelgeschoss bauen wollen. Eine entsprechende Bauvoranfrage wurde im Jahre 2018 positiv beschieden. Die Novellierung der Bauordnung im Folgejahr und ein ultimativer richterlicher Beschluss machten das Vorhaben allerdings nicht mehr genehmigungsfähig – das Gebäude musste entsprechend dem B-Plan aus den 1960er-Jahren zwingend mit einem Satteldach abgeschlossen werden. So entstand die ungewöhnliche Kubatur, die die Konturen der Nachbardächer aufnimmt und sich mit den Fassaden und Terrassen zu einem ungewöhnlichen skulpturalen Baukörper verbindet. Die Materialwahl unterstreicht diese Haltung, indem sich die Fassade aus großformatigen silberschimmernden Aluminium-Elementen in den Dachflächen kontinuierlich fortsetzt – scharfkantig reduziert, mit unsichtbarer Dachentwässerung. Die mit dem Eingangsbereich optisch verzahnte Doppelgarage tritt dazu mit einer sepiabraunen Lamellenfassade und integrierten LED-Bändern in den Hintergrund. Während sich der Neubau zur Straße eingeschossig und nahezu fensterlos hinter einem kleinen Vorgarten abschirmt, öffnet er sich zum Fluss mit einem ungewöhnlich weit auskragenden, verschattenden Steildach, einem eingeschobenen Erdgeschoss und dem sockelartig abgesetzten Untergeschoss. Durch die transparenten Glasfronten mit filigranen Schiebefensteranlagen bietet sich auf allen drei Etagen ein nahezu rahmenloser Ausblick auf den Rhein und es entsteht ein fast nahtloser Übergang zwischen Innen und Außen. Die funktionale Ordnung der Etagen spiegelt sich in klaren Grundrissen wider: Im Obergeschoss liegen Schlafräume und Bäder mit jeweils eigenen Terrassen. Im Erdgeschoss dehnt sich um einen Gaskamin großzügig der offene Wohn-/Koch- und Essbereich aus – samt einer gemütlichen Sitzecke, die einen besonders fokussierten Ausblick auf den Rhein erlaubt. Über eine Länge von fast viereinhalb Metern lässt sich die Wohnetage zum Terrassendeck öffnen; ein Treppenstieg aus Cortenstahl ermöglicht den Zugang in den Garten. Das Untergeschoss ist Gästeetage mit direktem Gartenzugang, bietet aber auch einen Arbeits- sowie einen Fitness- und Wellnessbereich mit einer Sauna, die eine beeindruckende Aussicht auf den Fluss bietet. Sämtliche Einbauten bis hin zur XXL-Badewanne im Masterbad – selbstverständlich mit Rheinblick – wurden nach Entwürfen der Architekten von einem Schreiner auf Maß gefertigt.

www.ddj.de

Wohnfläche: 400  m² (inkl. Nebenflächen, ohne Garagen)
Grundstücksgröße: 699  m²
Bauzeit: 12 Monate (während der Corona-Pandemie)
Bauweise: Massivbau
Energiekonzept: Luft-Wasser-Wärmepumpe, unterstützende Gastherme, Kühlung mit Umluftgeräten nach Bedarf (Obergeschosse)

Fotos:
Manos Meisen
www.manosmeisen.de

(Erschienen in CUBE Düsseldorf 02|24)

Architektur:

Döring Dahmen Joeressen Architekten
www.ddj.de

Maurer/Betonarbeiten:

Bauunternehmung Reintjes
www.reintjes-gmbh.de

Kamin:

Art of Fire – Design-Forum
www.artoffire-designforum.de

Zimmerei/Holzbau:

Hecker System Holzbau
www.hecker-system-holzbau.de

Dachabdichtung:

Pohlen Dach
www.pohlen-dach.de

Fassade:

Haushaut
www.haushaut.com
Renson
www.renson.net

Stuck, Putz, WDVS (innen), Trockenbau:

Jaeger Ausbau
www.jaeger-ausbau.de

Fliesenarbeiten:

Iberian living home Lda.
www.iberian-living-home.de

Estricharbeiten:

Bräuner
www.braeuner.de

Fenster:

Wigger Fenster + Fassaden
www.wigger.de

Markise:

Lameko
www.lameko.de

Tischlerei:

Blank
Telefon: 02103-3379010

Metallarbeiten, Garagentor:

Kaldunski + Löhr
www.tore.de

Malerarbeiten:

Bongartz Beschichtungstechnik
www.bongartz-bt.de

Heizung und Sanitär:

Heinrich Nauen
www.heinrich-nauen.de

Lüftung und Kälte:

KKL
www.kkl-online.de

Elektro (Soundsystem, WLAN):

Elektro van Thiel
www.elektro-van-thiel.de

Akustikdecken:

Sto
www.sto.de

Alarmanlage:

Velden Sicherheitstechnik
www.velden-sicherheitstechnik.de

Sauna:

Corso Sauna Manufaktur
www.corso-saunamanufaktur.com

Küche:

Bernhard Klocke Möbelwerkstätten
www.klocke.de

Außenanlage:

Freiraumplanung Wolf
www.galawolf.de
Büning & Weimann
www.buening-weimann.de

Haustechnik:

Peter Zeiler+Partner Ingenieurgesellschaft
www.zeiler-partner.de

Luft-Wasser-Wärmepumpe:

Weishaupt
www.weishaupt.de

DDJ-WHIDL19-007_19_700pixel

Die Wand als Hauptakteur

Eine Stadtvilla in Lank-Latum verbindet auf effektvolle Weise Offenheit und Privatsphäre

DDJ-WH-Schlag-038_15_700pixel

Gefundenes Nest

Ein Einfamilienhaus in Angermund bietet viel Licht und grüne Ausblicke

ddj_WH_Hattingen_019_43_700pixel

Minimalistisch reduziert

Eine moderne Villa kreiert fließende Räume für mehrere Generationen

Ansicht2_19_700pixel

Raumzellen zum Hof

Haus Gummersbach von Wolfgang Döring wurde denkmalgerecht erweitert und umgebaut

Farbspektrum

Ein Business Club in Citylage setzt farbenreich auf Exzellenz und Vielfalt

Ein Teil des Waldes

Umbau einer Scheune zu einem modernen Rückzugsort

Passgenau am Bach

Eine geförderte Wohnanlage in Bergisch Gladbach ordnet sich kleinteilig in ihren Kontext ein

Ästhetik in jeder Hinsicht

Das Design einer oralchirurgischen Praxis vermittelt Ruhe, Kompetenz und Wärme

DDJ-WHIDL19-007_19_700pixel

Die Wand als Hauptakteur

Eine Stadtvilla in Lank-Latum verbindet auf effektvolle Weise Offenheit und Privatsphäre

DDJ-WH-Schlag-038_15_700pixel

Gefundenes Nest

Ein Einfamilienhaus in Angermund bietet viel Licht und grüne Ausblicke

ddj_WH_Hattingen_019_43_700pixel

Minimalistisch reduziert

Eine moderne Villa kreiert fließende Räume für mehrere Generationen

Ansicht2_19_700pixel

Raumzellen zum Hof

Haus Gummersbach von Wolfgang Döring wurde denkmalgerecht erweitert und umgebaut

mgf_haus-hoffmann_web_04_15_700pixel

Selbstbewusster Purismus

Klare Formen und minimalistisches Farbkonzept prägen ein Wohnhaus

Lebhaftes Lichtspiel

Errichtung eines Kolumbariums in einem Teilbereich der Friedhofskapelle

Reaktiviertes Bauernhaus

Historischer Bestand in Niederkassel wird zeitgemäß interpretiert und doch behutsam erhalten

_GCF0982_Wartebereich-2_15_700pixel

Erhaltener Altbaucharme

Ein historisches Gasthaus lebt in einer modernen Zahnarztpraxis weiter fort

KRESINGS_WERFT_NilsKoenning_4_15_700pixel

Gemeinschaft als Leitprinzip

New Work und Wir-Gefühl prägen einen markanten Büroumbau in Heerdt

20220401_111024_56656-HDR_15_700pixel

Blick für das Wesentliche

Aufgeräumter, moderner Einrichtungsstil stellt die Highlights in den Fokus

Capella-Bar_Overview_CapellaBBH_Gerrit-Meier_19_700pixel

Mit Glamour in die Nacht

Die Capella Bar bietet ein stilvolles Ambiente mit hochkarätigen Drinks

Smartes Wohndesign

Deutschlands erste Dépendance eines belgischen Smart-Home-Unternehmens liegt am Schadowplatz