Black Beauty
Eine rustikale und gleichzeitig elegante Villa in dunklen Farbtönen
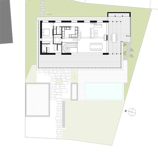
Eine Villa in dunklen Farben und im ruralen Look steht in einer kleinen Ortschaft im Landkreis Ebersberg. Auch der Garten passt sich diesem Stil an, er ist weitgehend naturbelassen, ohne verwildert zu sein. Das Einfamilienhaus mit Einliegerwohnung und Außenpool steht auf einem 1.000 m² großen Hanggrundstück. Aufgrund der Lage am Hang ist das Gebäude halb eingegraben und hat den örtlichen Auflagen entsprechend ein flaches Satteldach. Der rustikale Charakter wird erzeugt durch die Geopietra-Verkleidung, die altes Natursteinmauerwerk nachahmt, jedoch aus Kunststeinen besteht, und die auf das aus Ziegeln gemauerte Erdgeschoss, den Kamin sowie die Sichtschutzmauer am Pool aufgebracht ist. Die erdberührten Mauerteile sind aus Stahlbeton. Im Gegensatz dazu sind das Obergeschoss und die Nebengebäude – Garage und Pooltechnik – in Holzbauweise errichtet und mit einer schwarz lasierten, vertikalen Holzlattung verkleidet.
Wie außen, so auch das Innere: Das Unkonventionelle setzt sich hier fort. Das Raumprogramm folgt den Gegebenheiten des Grundstücks und natürlich den Erfordernissen der Bewohner. Das Wohnen spielt sich hauptsächlich im lichtdurchfluteten Obergeschoss ab. Von der Straße oder der Garage gelangt man zunächst zum Haupteingang auf der unteren Ebene. Eine Wendeltreppe führt nach oben direkt in den großen loftartigen Wohnbereich mit geräumiger Küche, dem Essbereich und einladender Wohnlandschaft mit Kamin. Hier schließt sich eine große Außenterrasse mit Essplatz gen Süden an. Auf eine Besonderheit sei noch hingewiesen. Die Kücheneinfassung wurde mit Liquid Metal Farbe von Fachleuten gespachtelt. Das Obergeschoss sitzt zurückversetzt auf dem unteren Stockwerk. Der überstehende First des Satteldaches bildet ein verglastes Dach über der Terrasse – man könnte auch sagen, das Dach löst sich gen Süden hin auf. Hinter der Küche liegt eine kleine Gästewohnung mit Bad und WC. Über der Küche hat sogar noch eine Galerie als verglastes Arbeitszimmer Platz. Die Holzterrasse führt rund um das Haus, vorne breiter, hinten schmal. Im Erdgeschoss darunter liegt linker Hand die Einliegerwohnung. Neben Technik- und Lagerräumen befindet sich hier auch der Masterschlafraum mit Blick zum Pool und zur Sonnenterrasse. Eine Sauna im Anschluss an das große Masterbad darf auch nicht fehlen. Man kann von der Sauna direkt in den Pool springen.
Wohnfläche: 330 m²
Grundstücksgröße: 1.000 m²
Bauzeit: 2018-2020
Bauweise: Ziegelmauerwerk + Holzbauweise
Energiekonzept: Luftwärmepumpe
Fotos:
Philippe Seeliger, LSA
(Erschienen in CUBE München 04|21)
