Stern des Südens
Die Architekten machen sich das Gefälle des Hanggrundstücks zunutze und lassen das Haus über die Wanne im Untergeschoss auskragen.
Dieses Haus trägt einen großen Namen. Es heißt „Stern des Südens“. Warum? Wir wissen es nicht. Vielleicht weil es im Süden von Regensburg liegt? Bei einer Umfrage wurde es gar zum Publikumsliebling 2018 gekürt.
Fabi Architekten, das Büro von Nina und Peter Fabi aus Regensburg, haben es entworfen und geplant. Zunächst fällt auf, dass es im Stil einer „ländlichen Moderne“ erbaut ist, wie die Architekten es ausdrücken: Graubrauner Glattputz mit einer Lärchenholzverschalung an den beiden Stirnseiten; die Holzlattung mit feuerverzinktem Stahl eingefasst; ein mit roten Dachziegeln gedecktes Satteldach anstelle eines Flachdaches. Ein solider Ziegelmauerwerksbau und doch ein wenig experimentell. Die Architekten machen sich das Gefälle des Hanggrundstücks zunutze und lassen das Haus über die Wanne im Untergeschoss auskragen. Hier an der nördlichen Schmalseite befindet sich auch die halb unterirdische Garageneinfahrt mit zwei bis drei Stellplätzen. Ein weiteres „Accessoire“ ist die geschossübergreifende rahmenlose Ganzglasscheibe, die auf der nördlichen Schmalseite in die Holzfassade eingesetzt wurde.
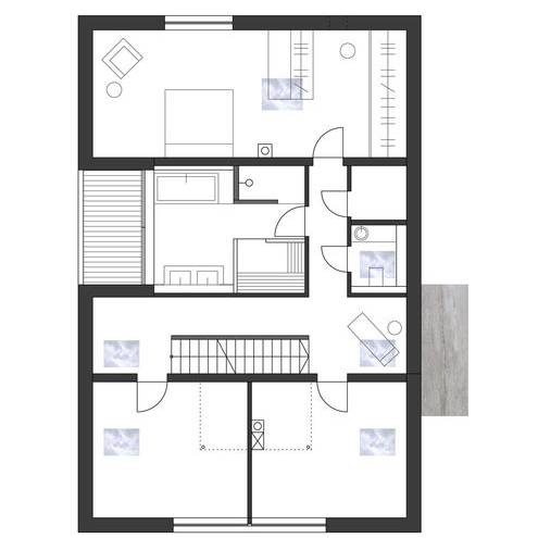
Das Gebäude ist an drei Seiten unverbaut und von Wiesen und Feldern umgeben. Eine Art Rampe führt barrierefrei zum Hauseingang im Osten, die Gartenseite ist gen Westen ausgerichtet – aus gutem Grund: Von hier aus hat man einen schönen Blick in die Landschaft und das Donautal. Eine Besonderheit ist hier – da es bei Westwind oft etwas zugig ist – eine gläserne Loggia als eine Art Strandkorb, die in die Fassade eingeschnitten ist. Im Erdgeschoss kann man hier windgeschützt sitzen und im Obergeschoss ist die Loggia dem Badezimmer und der Sauna vorgelagert, sozusagen als Freisitz mit Witterungsschutz an beiden Seiten. Dieses beide Geschosse verbindende Element schafft viel Helligkeit im Innern, ein Bodenfenster sorgt zudem für Licht im Untergeschoss.
Jedes Projekt des Architekturbüros entsteht wie in einer Manufaktur, es entwickelt sich aus den Gegebenheiten vor Ort und natürlich den Wünschen und Ansprüchen der Bauherren. So lautet die wichtigste Frage an die Bauherren auch stets: Welche Eigenschaften soll ihr Haus besitzen? Hier kristallisierte sich nach und nach die Idee der innen liegenden Sauna mit der Loggia heraus, die dann bestimmendes Element für den Entwurf wurde. Über eine filigrane freitragende Treppe gelangt man zu diesem Wellnessbereich im Zentrum des Obergeschosses. Das Elternschlafzimmer mit seinem großen Schiebefenster ist ganz gen Süden orientiert. Auf der gegenüberliegenden Seite liegen die beiden Kinderzimmer.
Im Innern setzt sich die Grundstimmung des verwendeten Materialmixes fort. Für die rustikalen Einbaumöbel wurde Eiche verwendet, ebenso wie für die Böden. Dazu kontrastierend gibt es schwarze Möbelfronten und betonfarbene Fliesen. Eine lange Sitzbank verbindet den Essbereich mit dem Wohnraum und geht in ein Wohnraummöbel über. Ein Liegefenster ermöglicht auch bei schlechtem Wetter einen weiten Blick in die Landschaft. Auch ein Arbeitszimmer hat noch Platz im Erdgeschoss. Alle Einbaumöbel im Haus wurden ebenfalls von Fabi Architekten entworfen.
Wohnfläche: 230 m²
Grundstücksgröße: 780 m²
Bauzeit: 11/2016–8/2017
Bauweise: Ziegelmauerwerk
Energiekonzept: Gasbrennwerttherme mit Solarthermieanlage
(Erschienen in CUBE München 01|20)
