Im besten Sinne einfach
Split-Level-Haus auf geneigtem Grundstück mit geschickt geschaffener Privatheit im Garten
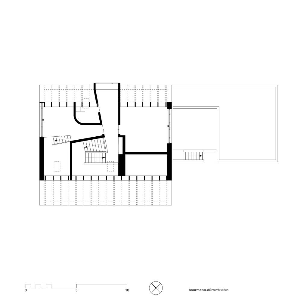
Das am Rande einer großen Streuobstwiese gelegene Grundstück weist ein deutliches Gefälle auf. Daher entschieden sich baurmann.dürr architekten dafür, den Grundriss für das Einfamilienhaus als Split-Level anzulegen. Obwohl das Wohngebäude dadurch räumlich recht komplex ist, war es den Architekt:innen wichtig, dass es – einem alten Haus auf dem Lande gleich – einfach wirkt. Seine gestalterischen Vorbilder sind eher im Norden zu finden, dennoch wirkt der Bau eher südlich. Mit seiner Atmosphäre, die viele Bedürfnisse erfüllt, vermittelt er ein Gefühl von Heimat.
Um im höher gelegenen Garten mehr Privatheit zu ermöglichen, wurde zwischen Garage und Haus ein Eingangshof eingefügt. Dessen rückwärtige Stützmauer verläuft gegen den Hang und verwehrt den Einblick von der Straße auf die Terrasse. Auf diese Weise nähert man sich dem Hauseingang durch mehrere Zonen, die zunehmend privater werden. Im unteren, der Straße zugewandten Gebäudeteil ist der Elterntrakt mit Schlafraum, Ankleide, Bad und Sauna untergebracht. In die Zukunft gedacht, könnte er bei Bedarf als Einliegerwohnung genutzt werden. Auf dem Niveau der Terrasse entwickelt sich über die gesamte Hauslänge ein großer Raum, der den Blick auf das angrenzende Naturschutzgebiet öffnet. Die Sonneneinstrahlung in die Innenräume durch die bodentiefen Fenster und Hebeschiebetüren mit Holzrahmen lässt sich durch Jalousien filtern. In dem großen Raum, der mit Eichenparkett ausgeelegt ist, gliedern lediglich eine halbgeschossige Treppe und ein Kaminblock die Bereiche Kochen, Essen und Wohnen. Ein Halbgeschoss darüber inszeniert sich der Erschließungsflur mit einer überdimensionalen Gaube zur Straße hin. Hier befindet sich ein Sitz- und Leseplatz mit Aussicht. Unter dem weit geneigten Dach mit einem Tragwerk aus Holz sind zu den Giebeln hin der Kinder- und der Gästetrakt mit einer Hausbibliothek orientiert. Die Türen, Treppen und Einbauten wurden passgenau vom Schreiner gefertigt und eingebaut.
Im Ensemble mit dem Hauptbaukörper bilden die Garage und der Eingangshof ein stimmiges Ganzes – nicht zuletzt durch die einheitliche Oberflächenbehandlung mit hellem Putz und die wiederkehrenden Elemente aus warmtonigen Holz. Das Gebäude ist teilunterkellert, wobei der Anteil entsprechend dem Bedarf der Bewohnenden auf ein Mindestmaß reduziert werden konnte. Die einschaligen Wände bestehen aus Poroton-Mauerwerk, das sowohl wirtschaftlich als auch energetisch punktet. Eine Wärmepumpe und eine Fußbodenheizung fügen sich in das Konzept des Niedrigenergie-Standards.
Fotos:
Swen Carlin
www.swencarlin.com
(Erschienen in CUBE Stuttgart 02|25)

