Schwarze Schale, weißer Kern
Ein Hanggrundstück fordert Bauherren und Architekt heraus
Ein junges Ehepaar plante auf einem Hanggrundstück in Feldrandlage die Errichtung seines neuen Zuhauses. Das mit der Planung und dem Bau beauftragte Architekturbüro Henecka Architekten aus Bruchsal hatte dabei eine knifflige Aufgabe zu lösen: Die Bauherren wünschten sich ein barrierefreies Wohnkonzept, das aufgrund der Hanglage nur schwer realisierbar schien.
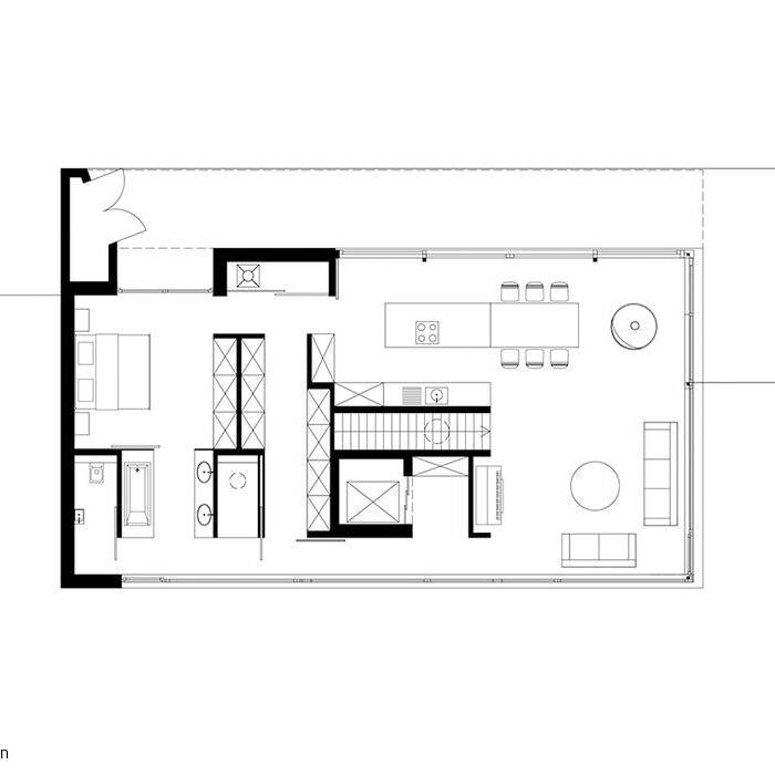
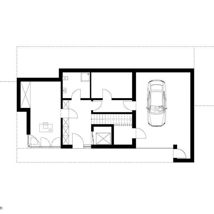
Architekt Daniel Henecka nahm die Herausforderung an und organisierte alle Wohnräume im Gartengeschoss. Außerdem überzeugte er die Bauherren mit einer unkonventionellen Lösung, die das Haus auf individuelle Weise auf die Besonderheit der Lage reagieren lässt: Von der Straße aus präsentiert sich das Gebäude mit seiner schwarzen Putzfassade zugeknöpft und kompakt. Fast die gesamte Länge des Hauses nimmt eine vorgehängte Fassade aus Eichenleisten ein, in die Garagentor, Hauseingangstür, Hausnummer sowie Briefkasten und Wechselsprechanlage nahtlos integriert sind. Ein in den oberen Bereich der Fassade integriertes schmales Fensterband sorgt für Lichteinfall, ohne etwas vom Inneren des Gebäudes preiszugeben. Vom Eingangsbereich im Souterrain führt eine schmale Treppe mit gewölbter Lichtkuppel in das Wohngeschoss. Hier überrascht das Haus mit generöser Offenheit und lichtdurchfluteten Räumen. Zur Gartenseite hin öffnet sich die Fassade mit großzügigen Glasflächen, die den Blick auf die durchgrünte Umgebung lenken. Ein weit auskragender Dachvorsprung sorgt für Verschattung an heißen Sommertagen und dient zugleich als Witterungsschutz in der Übergangszeit.
Die Grundrisse im Gartengeschoss sind konsequent offen gestaltet, anstelle von geschlossenen Zimmern wird das Geschoss mit Zonierungen gegliedert, auf Türen wurde weitestgehend verzichtet. Die Offenheit des Grundrisses und das Ineinanderfließen der Raumzonen werden außerdem durch einen homogen wirkenden Sichtestrich unterstrichen, der im gesamten Haus, einschließlich Treppe und Nassbereiche, verlegt wurde. Alle Einbauten wurden vom Architekten geplant und von einer regionalen Schreinerei maßgefertigt. Aus Kostengründen wurden die Fensterrahmen aus Meranti gefertigt, das mit einer speziellen Lasur optisch an das Eichenholz der vorgehängten Fassade angeglichen wurde. Um die gewünschte Barrierefreiheit auch zukünftig für die Erschließung des Wohngeschosses umsetzen zu können, wurde vorsorglich ein Aufzugsschacht vorgesehen, der später bei Bedarf mit einem Aufzug nachgerüstet werden kann. Um diese Flächen bis dahin sinnvoll nutzen zu können, wurde hier eine leicht wieder demontierbare Holzdecke eingebaut, sodass der Aufzugsschacht als Abstellkammer genutzt werden kann.
Wohnfläche: 174 m²
Grundstücksgröße: 586 m²
Bauzeit: 2/2015–7/2016
Bauweise: Massivhaus, Kalksandstein mit WDVS
Energiekonzept: Gas-Brennwerttechnik
(Erschienen in CUBE Stuttgart 03|20)
