Zeugnisse der Zeit
Historisches Wohnhaus erwacht aus dem Dornröschenschlaf und überrascht mit modernem Dachneubau
Kaum vorstellbar, dass aus einem derart dunklen und niedrigen Dachboden eine helle und räumlich spannende Maisonette entstehen konnte! Und als wäre die Herausforderung nicht groß genug gewesen, mussten die restlichen Geschosse unter strengen Auflagen des Denkmalschutzes saniert werden. Das war die Aufgabenstellung für das Elternhaus zweier Brüder, das von deren Großvater nach dem 2. Weltkrieg wieder aufgebaut worden war und mit welcher die Beiden im Jahr 2016 auf Frey Architekten zukamen. Es begann ein spannender Entwicklungsprozess.
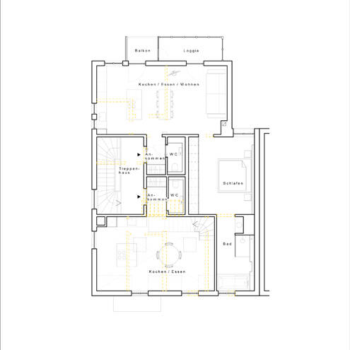
Von Anfang an war klar, dass der sensible Umgang mit der bewegten Vergangenheit des Hauses eine herausragende Rolle bei der Sanierung der Wohnungen vom Erdgeschoss bis zum 3. Obergeschoss spielen sollte. Historische Elemente sollten erhalten und aufgearbeitet sowie durch zeitgenössische vorsichtig ergänzt werden, die die Geschichte in ihrer charakteristischen Wirkung unterstreichen. In liebevoller Kleinst-arbeit ergänzten die Brüder den historischen Fliesen- und Terrazzobelag, legten Wandbeläge in den Wintergärten frei, reinigten sie und bereiteten sie wieder auf. Die Spuren vergangener Sanierungen wurden nicht überdeckt, sondern herausgehoben. So finden sich aufgearbeitete Fensterelemente aus der Jahrhundertwende neben Kastenfenstern aus den 1920er-Jahren und Doppelverglasungen aus den 1950ern – alle versehen mit zeitgemäßer Wärmeschutzverglasung. Die behutsamen Grundrissanpassungen zu Gunsten der Bäder sind nach wie vor durch Materialwechsel am Boden nachvollziehbar. Offene Küchen mit angrenzenden Essbereichen und direktem Austritt auf die Wintergärten bilden den Mittelpunkt der Wohnungen. Anders im Dachgeschoss, das nach dem Einschlag einer Brandbombe im 2. Weltkrieg nur als Behelfsdach mit geringer Dachneigung aufgebaut worden war. In enger Abstimmung mit dem Denkmalamt konnte erreicht werden, dass die Konstruktion – angelehnt an das Stuttgarter Dach des angebauten Nachbarhauses – als moderner Holzbau mit Brettsperrholzelementen errichtet werden konnte. Sie bildete die Grundlage für die offene, großzügige Raumkonfiguration mit einem die beiden Geschosse verbindenden Luftraum und einem nahezu stützenfreien Grundriss. Lediglich ein eingestellter, von allen Seiten mit Funktionen bespielter Kubus zoniert den fließenden Raum. Das große Panoramafenster öffnet den Raum und ermöglicht faszinierende Ausblicke.
Fotos:
Sebastian Schels
www.schels.net
(Erschienen in CUBE Stuttgart 01|24)
