Bestand charakterstark umgenutzt

Untergeschoss eines Wohnhauses wird zu individuellen Büroräumen

EKS_08-2020_0082_15_700pixel

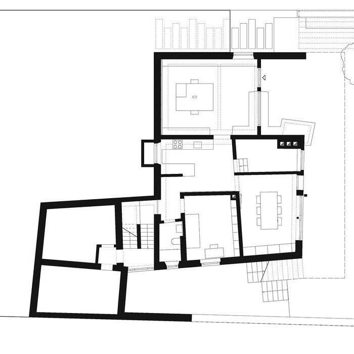
Das ca. 75 m² umfassende Untergeschoss des Wohnhauses aus den 1950er-Jahren wurde zu Büroräumen umgebaut. Partiell abgebrochene Außenwände und neue großformatige Verglasungen öffnen die Räume einer internationalen Stiftung für demokratische Bildung zur Terrasse und zum Garten. Anthrazitfarbene Holz-Aluminium-Fenster bilden mit der gleichfarbigen Fassade des Untergeschosses eine homogene Fläche, wodurch der solitäre Charakter und die neue Nutzung verdeutlicht wird.

Bottega + Ehrhardt Architekten bewahrten die markante bauzeitliche Struktur des zurückspringenden Untergeschosses mit dem Kamin und der gemauerten Sitzbank. Im Innenraum erforderten bestehende Höhensprünge im Rohfußboden und in den Decken individuelle Lösungen: Die Decke wurde geringfügig abgehängt, der Fußboden minimal aufgebaut und eine Fußbodenheizung integriert. So entstand ein Maximum an Raumhöhe. Das Zusammenspiel aus zementgrauem Linoleumboden, wiederkehrenden Materialien und Farben der Einbaumöbel und dem durchgängigen Beleuchtungskonzept lässt die Räume optisch ineinanderfließen und vermittelt eine klare Gestaltungslinie. Die Einbauten und losen Möbel aus Eichenholz stehen für die Wohnlichkeit in den Büroräumen.

Umlaufende Abkofferungen bündeln nicht nur Rohrleitungen und Kabel, sondern greifen geschickt die Höhensprünge im Bestand auf. So veredelt werden sie zum Gestaltungselement mit integrierter Beleuchtung und eingefassten Revisionsöffnungen. Im Büro gliedern Deckenfelder den Raum optisch in Empfang und Arbeitsplatz. Wie ein Band zieht sich die äußere Eckbank im Eingangsbereich als Sitzmöbel weiter in den Innenraum. Ein Spiegelfries entlang der Abkofferung weitet den Raum über dem großen Arbeitstisch mit mehreren Sitzgelegenheiten optisch.

Die alte, über einen Lichtschacht natürlich belichtete Waschküche hat sich zur neuen Mitarbeiterküche und zum Zentrum des Büros gewandelt. Scheinbar nahtlos fügt sich die U-förmige monolithisch gestaltete Küchenzeile mit auskragendem Stehtisch in den Raum ein. Sie bietet viel Platz und lässt sich vielseitig nutzen. Die raumhohe Pinnwand setzt Materialakzente und kann sowohl individuell als auch interaktiv genutzt werden. Der Besprechungsraum lässt sich über eine Schiebetür abtrennen. Ein zusätzliches Zimmer mit angrenzendem modernisiertem Badezimmer bietet Stauraum und ermöglicht es der Stiftung, ihre Gäste unterzubringen.

www.be-arch.com

Fotos:

David Franck
www.davidfranck.de

(Erschienen in CUBE Stuttgart 01|21)

Nothing found.

Mehrfach gut

Durch Umbau und Erweiterung zum Treffpunkt für Sport, Bewegung und Gemeinschaft

Grün-blaues Entrée

Der Geropark in Mönchengladbach wurde revitalisiert und erweitert

Der Sonne entgegen

Wie auf einem Problemgrundstück eine behütende Insel für Kinder entsteht

Kontrastvoll Revitalisiert

Eine Bestandsvilla wurde saniert und konsequent zeitlos elegant durchgestaltet

Nothing found.

082_PUB_Chama-leon-Steingau_02_-C-Sebastian-Schels_10_700pixel

Chamäleon

Wohnhaus einer Baugruppe mit Grundrissen zum Durchwohnen und ein Nutzgarten auf dem Dach

PWS_Dreifeldsporthalle_012_hr_19_700pixelkXED0wDTWAatx

Respektvolle Referenz

Eine neue Dreifeldsporthalle ergänzt als stimmiger Stadtbaustein ein historisches Schulgebäude

Es bleibt in der Familie

Bestehendes Einfamilienhaus behält trotz Umbau mit modernen Elementen seinen bauzeitlichen Charakter

_5_LUZ_Lauffen_Neckarufer_19_700pixel

Schlicht, einfach und wirkungsvoll

Freiräume der Stadt als Wesensmerkmal gesichert und weiterentwickelt

17_AD_0970-78_mod_6591x4394px_15_700pixel

Stadtreparatur

Ehemalige Bauhoffläche wird zum qualitätvollen genossenschaftlichen Wohnort

Familiengarten_FulRes-56-_15_700pixel

Hier ist Leben drin

Aus einem verwilderten Garten wird ein Familienparadies am Hang mit Pool

Freudenberg_01_15_700pixel

Behutsam neu gestaltet

Die Planer von Koeber Landschaftsarchitektur veränderten die Topografie so, dass sich der Garten großzügig zu einer mit Rasen bepflanzten Ellipse…

Spannende Inszenierung

Neubau kombiniert innovative Bauweise und nachhaltiges Upcycling