Passgenau
Individuell auf die Landschaft und die Bewohner zugeschnittenes Wohnhaus mit Pool am Hang
Da das Bestandsgebäude auf dem Hanggrundstück den neuen Eigentümern in Größe und Ausstattung nicht ausreichte, entschieden sie sich für dessen Abbruch und einen Neubau. Er sollte ganz auf die persönlichen Wünsche der vierköpfigen Familie zugeschnitten sein. Coast Architekten entwarfen zwei aufeinander gestellte kubische und streng geometrische Baukörper als Grundgerüst. Das Raumprogramm und die Ausrichtung sind individuell an die Umgebung und die Anforderungen der Bewohner angepasst. Mit dem rückspringenden Obergeschoss ist auf dem Sockelgeschoss eine umlaufende Terrasse entstanden, die zusammen mit der hangseitigen Rampe ins untere Stockwerk die Möglichkeit bietet, sämtliche Räume von außen zu erschließen. Durch diese nicht nur großzügige architektonische Geste entstand auch die barrierefreie Erschließung des Hauses.
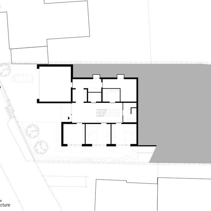
Das untere Geschoss mit außenliegender Garageneinfahrt und großer Eingangstür bildet die Basis. Vom Eingangsbereich werden die u-förmig angelegten Kinder- und Gästezimmer sowie die zugehörigen Bäder erschlossen. Alle Räume öffnen sich über bodentiefe Fenster zum Garten. Mit plan in die Wände eingelassenen Türen präsentiert sich das Foyer als fensterloser White Cube. Hier hängen einige Stücke aus der Kunstsammlung der Bauherren und bereiten die Bühne für das Herzstück des Raumes: Die skulptural anmutende Treppe aus weiß lackiertem Metall. Sie zieht förmlich ins lichtdurchflutete Obergeschoss. Dort geben raumhohe Scheiben den Blick frei in den am Hang gelegenen Garten mit Pool und auf die Stadt. Das Wohnzimmer lässt sich über verglaste Schiebeelemente zur Terrasse und seitlich zu der im Baukörper ausgesparten lichtverwöhnten Loggia öffnen. Auf der Westseite, dem Wohnbereich gegenüberliegend, befindet sich der Ess- und Küchenbereich, der ebenso durch einen Außenraum erweiterbar ist. Der Esstisch, die offene Küche sowie die Vorbereitungsküche mit bodentiefen Fenstern bieten viel Platz für Bewohner und Gäste. Die westliche Terrasse ist nicht nur Plattform für ein außenliegendes Esszimmer, sondern hält auch einen Kamin bereit. Parallel zu den offenen Wohnbereichen befinden sich hinter einer Sichtbetonwand die privaten Räume der Bauherren. Schlaf-, Ankleide- und Badezimmer sind offen und ineinander übergehend konzipiert, sodass ein eigenständiges Refugium für die Eltern entstanden ist. Sichtbeton, helle Wandflächen und klassisches Eichenparkett, gepaart mit der klaren räumlichen Aufteilung und der zurückhaltenden Farbwahl bilden den Rahmen für ein wohnliches, zeitgemäßes Ambiente. Die vielfältigen Blickbeziehungen zwischen innen und außen, das Spiel mit offenen und geschlossenen Elementen sowie der feinfühlige, individuell angepasste Innenausbau zeichnen das Haus aus und zeigen, wie es für seine Bewohner maßgeschneidert wurde.
Eine Luft-Wasser-Wärmepumpe versorgt die Fußbodenheizung sowie den Pool mit Wärme. Solarpaneele auf dem Flachdach liefern Strom für den gesamten Hausbedarf und das für die Automation installierte Smart Home System.
Wohnfläche: 300 m²
Grundstücksgröße: 2.180 m²
Bauzeit: 2017–2019
Bauweise: Massivbauweise
Energiekonzept: Luft-Wasser-Wärmepumpe mit Photovoltaikanlage
Fotos:
David Franck
www.davidfranck.de
(Erschienen in CUBE Stuttgart 02|21)
