Stimmig angelegt
Neue Grundschule präsentiert sich als Gebäudeensemble mit hohem Identifikationswert
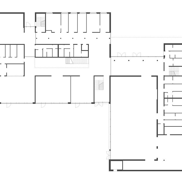
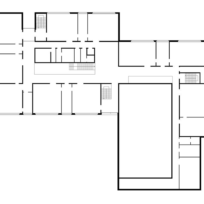
Für die neue zweizügige Grundschule mit Sporthalle wünschte sich die Gemeinde Ammerbuch ein qualitätsvolles, wirtschaftliches und nachhaltiges Gebäudeensemble, das auf städtebauliche und funktionale Anforderungen angemessen reagiert. Das bestehende Gebäude der Gemeinschaftsschule auf dem Grundstück wich dem Neubau, die verbleibende Fläche wird künftig als Wohngebiet entwickelt.
Das Architekturbüro dasch zürn + partner erarbeitete ein Konzept, das Schule, Sporthalle und Freiflächen zu einer stimmigen Gesamtanlage verknüpft, die sich in die Hanglage einfügt. Schule und Sporthalle schirmen die Wohnbebauung gegenüber dem belebten Pausenhof ab. Als Forum nutzbare Sitzstufen verknüpfen den leicht abgesenkten Pausenhof im südlichen Grundstücksbereich mit dem anschließenden Gelände. Die einheitliche Materialwahl der geschlossenen Außenwandflächen mit gebranntem Klinker als hinterlüftete Bekleidung stärkt die plastische Ausformung des Baukörpers. Ein Vorplatz mit Fahrradstellplätzen erschließt die Zugänge von Schule und Sporthalle, deren Eingangshallen im Inneren miteinander verknüpft sind. Über die offene Verbindung der beiden Geschosse, die von Oberflächen in Sichtbeton und Weißtanne geprägt sind, ist die Orientierung ein Leichtes. Der allgemeine Unterrichtsbereich mit Klassen- und Kursräumen sowie der Kunstraum und der Lehrerbereich befinden sich im Obergeschoss. Der Ganztagesbereich, der Mehrzweckraum und allgemeine Räume lagern sich im Erdgeschoss um den zentralen Erschließungsbereich. Im Schulgebäude steifen Sanitärkerne und Treppenhäuser die Massivkonstruktion mit tragenden Wandscheiben und Stützen aus, bei der Sporthalle sind es die Umkleide- und Geräteraumspange sowie die Giebelwände. Die dreifach verglasten Fenster verfügen über einen außen liegenden Sonnenschutz, der je nach Bedarf die Räume verdunkelt oder als Blendschutz dient. In den Abhangdecken sind Installationen, Einbaugeräte sowie Technik zur Absorption und Lenkung von Schall integriert. Die Dachfläche mit Gefälledämmung und extensiver Begrünung wird zur Regenwasserpufferung genutzt. Die Wärmeerzeugung erfolgt durch ein Vollwärmecontracting der Stadtwerke Tübingen im Heizraum der Schule. Hierzu installierten die Stadtwerke ein gasbetriebenes BHKW und einen Gasbrennwertkessel zur Spitzenlastabdeckung. Das Gebäude wird über eine Fußboden- bzw. Sportbodenheizung beheizt. Warmes Wasser für den Umkleidebereich der Turnhalle liefert ein Heizungspufferspeicher, der von den Stadtwerken mit Wärme versorgt wird. Mit einer direkt angeschlossenen Frischwasserstation wird im Durchlaufprinzip das warme Wasser bereitgestellt. Elektrische Durchlauferhitzer versorgen die weniger frequentierten Entnahmestellen. Insgesamt 169 Photovoltaik-Module versorgen den Schulcampus mit Strom. Zusätzlich zur natürlichen Lüftungsmöglichkeit über die Fenster wurde eine mechanische Lüftung mit hohem Wärmerückgewinnungsgrad eingebaut.
Fotos:
Bernhard Traenkle
www.architekturimbild.de
(Erschienen in CUBE Stuttgart 03|23)
