Holzwerkstoffe en détail

Eine ehemalige Lagerfläche wird zur inspirierenden und atmosphärischen Arbeitswelt

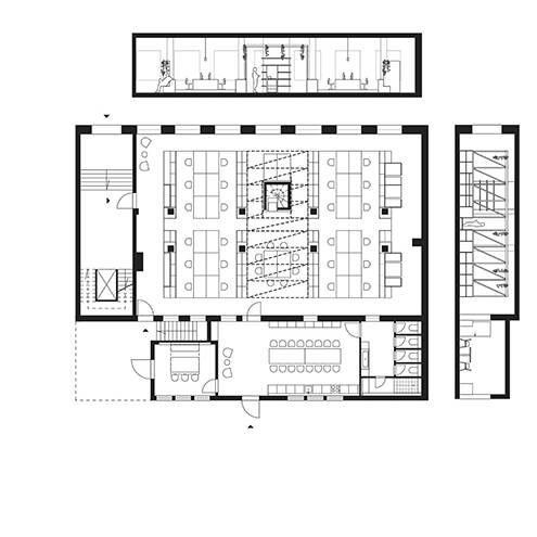
andOffice-Office-6_15_700pixel

Einem Ausstellungsraum gleich präsentieren sich die Räumlichkeiten des Planungsbüros von andOffice unterschiedlichste Holzwerkstoffe und zeigt, wie präzise sie verarbeitet werden können und wie gut sie sich für integrative Planung eignen sowie Atmosphäre erzeugen. Gleichzeitig vermittelt die Gestaltung die architektonische Haltung des Büros. Eine ehemalige Lagerfläche wurde dazu komplett entkernt und durch wenige, exakt auf den Bestand abgestimmte Möbel- und Zimmermannseinbauten zu einer offenen Arbeitswelt neu organisiert.

Entstanden ist ein interdisziplinäres Projekt mit einer ehrlichen, rohen und gleichzeitig warmen Ästhetik in zwei verschiedenen Bereichen: Während sich das Großraumbüro im lichtgrauen Grundton eher clean und kühl zeigt, vermittelt der multifunktionale Nebentrakt mit seinem Siena-Farbton und Akzenten in Terrakotta eine warme Grundstimmung. Die 24 kompakten Arbeitsplätze im Großraumbüro sind flexibel und räumlich nicht fest zugeordnet. Die festinstallierten Hochleistungsrechner können von jedem Mitarbeitenden aus allen weiteren Bürobereichen sowie dem Homeoffice gesteuert werden. Große zusammenhängende Tische sowie rückwärtige niedrige Sideboards sind aus Birke-Multiplex gefertigt und durch OSB-Hohlraumpodeste freistehend im Raum positioniert. Auf den Sideboards sitzen auf der einen Seite des Raumes zwei Garderobenboxen aus MDF natur. Sie bilden den Sichtschutz zum Eingang und sind rückseitig mit akustisch wirksamen Holzweichfaserplatten mit Lochfräsungen belegt. Als Pendant zu den Garderoben befinden sich im rückwärtigen Bereich drei akustisch und visuell abgeschottete Boxen für konzentriertes Arbeiten. Die flexible Mittelzone bildet das Herz des Büros und animiert durch rollbare Steh- und Sitztische zu internen Teammeetings, kreativen Arbeiten oder Modellbau. Außerdem können Vorträge und Präsentationen für bis zu 50 Personen abgehalten werden. Eine offene Raumstruktur aus Fichtebalken zoniert diesen Bereich und ermöglicht visuelle Querbezüge und Lichteinfall in alle Bereiche. Der ehemalige Treppenkern ist sowohl digitale Schaltstelle als auch analoger Creative Hub: Auf allseitig umlaufenden Rails können Materialboards zusammengestellt, Pläne gehängt oder auf den Akustikelementen Skizzen gepinnt werden. Im multifunktionalen Nebentrakt befinden sich Besprechungsbereiche, eine Wohnküche und eine Kaffeelounge sowie der Sanitärbereich mit Dusche. Alle Möbeleinbauten sind in expressiv gemaserter Seekiefer gehalten, die Trennwände mit Holzleistenschalung aus Weißtanne belegt. Außerhalb der Bürozeiten kann dieser Bereich für private Veranstaltungen genutzt werden. Das Besprechungsmöbel ist gleichzeitig ein Schrankbett, das mit wenigen Handgriffen zur Verfügung steht.

www.andoffice.com

Fotos:

Philip Kottlorz
www.philipkottlorz.com

(Erschienen in CUBE Stuttgart 03|22)

Architekten:

andOffice
www.andoffice.com

Wasserspender:

hansgrohe
www.hansgrohe.de

Amaturen:

Dornbracht
www.dornbracht.com

Bürostühle:

Vitra
www.vitra.com

Möblierung:

Hay
www.hay.dk
Normann Copenhagen
www.normann-copenhagen.com

Nothing found.

Ort der Begegnung

Das neue Pfarrheim Mariä Himmelfahrt in Miesbach prägt ein Kontrast aus Modernität und Tradition

Preziose unterm Dach

Ein Spitzboden in einem Mehrfamilienhaus in Essen-Rüttenscheid wird zum Vorzeigeprojekt

Vergangenheit & Zukunft

Modellprojekt zeigt, wie sakrale Bestandsarchitektur transformiert werden kann

Nothing found.

avui_15_700pixel

Inszenierungen für alle Sinne

Im Hotel Zum Hirschen in Fellbach ist das Sternerestaurant „avui“ beheimatet

11_eingangsterr_hell_15_700pixel

Gebaute Landschaft

Drei versetzte Baukörper am Südhang holen Licht und Natur ins Haus

Vorbildlich intelligent

Feuerwehr-Neubau, der auf kreislauffähige Materialien setzt, dient als Rohstoffdepot

Die zwei Seiten

Organische Front trifft auf klare, lineare Rückfassade

mgf_Object-Campus_20_15_700pixel

Innovative Firmenzentrale

Object Campus – City of Visions: Die Zukunft hat begonnen

3_dzpa_Erweiterung_Faust-Gymnasium_Staufen_Ansicht-Su-den_Bernhard-Tra-nkle_19_700pixel

Öffnen und schützen

Erweiterung eines Gymnasiums schafft effizient nutzbare Flächen und eine eindeutige Adresse

Überzeugendes Ensemble

Markanter Neubau fasst Funktionsbereiche zusammen und ergänzt die historische Kirche

Mit Leichtigkeit

Klarer Baukörper mit Holzlamellen-Fassade erzeugt hohe Gestaltqualität bei engen Bebauungsvorgaben