Solide weitergebaut

Neuer Wohn- und Lebensraum für eine siebenköpfige Familie

N8A_ZB588-01_c_Zooey-Braun_19_700pixel

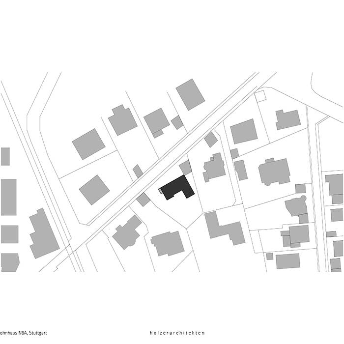
Das eingeschossige Wohnhaus mit Walmdach aus den 1950er-Jahren war sehr solide gebaut: Die Wände bestehen aus massivem Mauerwerk und die Decken sind als Betonrippendecken ausgeführt. Allerdings war der Grundriss etwas verschachtelt, wie bauzeitlich für die gewünschten, klar getrennten Räumlichkeiten üblich. Die Größe der Wohnung und das damalige Raumprogramm passten also nicht mehr mit den heutigen Vorstellungen von Wohnkomfort und Raumgestaltung zusammen. Weshalb auch die Familie mit fünf Kindern, die das Haus erworben hatte, den Wunsch hegte, das Gebäude an ihre Bedürfnisse anzupassen. Es sollte modernisiert, kernsaniert, um ein Geschoss aufgestockt und auf den neuesten Stand der Technik gebracht werden.

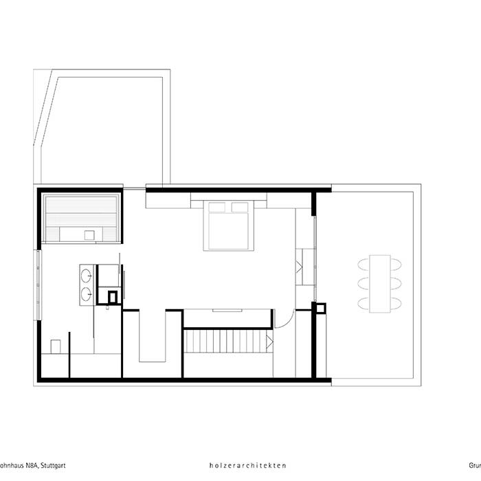
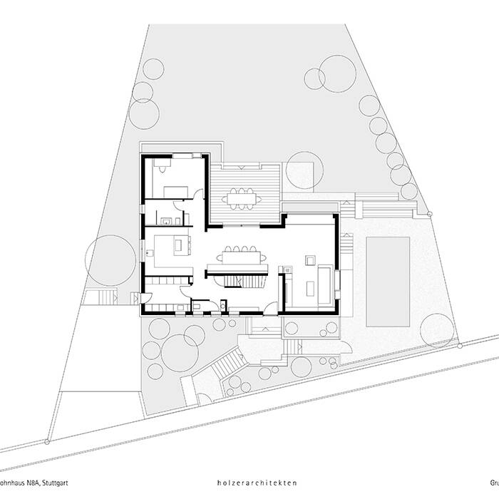
Auf technischer Seite wurden ein Miniblockheizkraftwerk und eine Photovoltaikanlage eingebaut. Sie erzeugt den Strom für das Gebäude und die Elektrofahrzeuge sowie die Wärme für das Haus inklusive Schwimmbad. Die Außenwände wurden gedämmt und mit einem einheitlichen Material versehen. Die dunkle Fassade verleiht dem Gebäude nun einen ruhigen, monolithischen Ausdruck. Die Verwendung von Holz gibt dem Ganzen die warme, wohnliche Atmosphäre eines Wohnhauses. Dies zieht sich auch ins Innere des Gebäudes: Mit Eichenparkett, den Sitznischen der Fenster aus Holz sowie dem Panoramafenster und der langen Sitzbank im Essbereich werden wohnliche Akzente gesetzt. Auch die eingestellte Treppe zum Dachgeschoss wird zu einem Möbelstück – sie dient ebenfalls als Bibliothek. Im Obergeschoss wurden fünf Kinderzimmer mit Bad und ein Arbeitszimmer untergebracht. Im Dachgeschoss entstand der neue Elternschlafbereich mit Ankleide, Sauna und Elternbad. Auch im Erdgeschoss gab es durch kleine Änderungen des Grundrisses und das Herausnehmen weniger Bestandswände grundlegende räumliche Verbesserungen: Die für die 1950er-Jahre typischen kleinteiligen separaten Räume wurden zu einem fließenden, offenen Wohn-, Ess- und Kochbereich, in dem das tägliche Familienleben spielt. Mit dem Umbau und der Aufstockung sind zeitgemäße Wohn- und Lebensräume entstanden.

www.holzerarchitekten.de

(Erschienen in CUBE Stuttgart 01|20)

Architekten:

holzerarchitekten
www.holzerarchitekten.de

Holzbau- und Rohbauarbeiten:

J. Gauder Bauunternehmung
www.turex-gmbh.de

Fassaden-, Putz-, Maler- und Trockenbauarbeiten:

M. Albert
www.maleralbert.de

Fassade:

Caparol
www.caparol.de

Innenausbau:

Kopf Schreiner
www.kopf.de

Parkett:

Holz Waidelich
www.holzboeden.com

Fensterbauarbeiten:

Kuhnle Fensterbau
www.fensterbau-kuhnle.de

Sanitär- und Heizungsarbeiten:

D + S Rockenstein
www.rockenstein-sanitaer.de

Elektroarbeiten:

engin Elektro Technik, Licht Design
www.elektro-engin.de

Küche:

Küchenhaus Basler
www.kuechen-basler.de

Kaminofen:

Von Au
www.ofenbau-stuttgart.de

Beleuchtung:

Candela
www.candela.de

Fotos:

Zooey Braun
www.zooeybraun.de

Nothing found.

Harmonisch eingefügt

Neubau-Ensemble wahrt den historischen Bezug und entwickelt eigene Identität

Traditionell und Modern

Traditionell und Modern

Massivholzhaus ist der Publikumsliebling beim Rosenheimer Holzbaupreis

Erdverbundene Leichtigkeit

Winkelförmiger Bungalow auf Sockel mit Höfen bildet einen geschützten Gartenbereich

Nothing found.

2021-09_WIE_Objekt_Stadthaus_Stuttgart_2_15_700pixel

Maximal ausgereizt

Büro- und Wohnhaus auf extrem schmalem Hanggrundstück mit charaktervoller Ziegelfassade

CF009668-Kopie_10_700pixel

Eigener Standpunkt

Einfamilienhaus trotzt herausforderndem Grundstück am Hang vier Wohnebenen mit Garten ab

VSB_2018-07-26_169_15_700pixel

Wohnen mit Weitblick

Einfamilienhaus im Neubaugebiet mit geschützten Bereichen und vielfältigen Ausblicken

IMG_20210909_213749_10_700pixel

Grün macht glücklich

Anja Dölker erschafft Mini-Dschungel für jedes Wohnzimmer

FREY_HAUS_RF_20_15_700pixel

Mit neuem Leben erfüllt

Umbau eines lange leer gestandenen Dreifamilienhauses für zwei Familien

dasch-zu-rn-partner_Sebastian-Kittelberger_19x13cm_300dpi_700pixel

Fünf Fragen zum Thema Corona …

an Architekt Sebastian Kittelberger

DPV_N62_15_700pixel

Modular flexibel

Bürobauten mit unterschiedlichen Anforderungen individuell gestaltet

ZB569-40_20_700pixel

Grosszügig auf kleiner Fläche

Eine monolithische Gebäudehülle mit aufgelösten Gebäudeecken, die gezielt Ein- und Ausblicke zulassen und für unterschiedliche Lichtstimmungen…