Wohnmodule im Grünen

Flexibel nutzbarer Wohnbau in Holz-Massiv-Hybridbauweise, effektiv gedämmt mit Holzfaserplatten

4_15_700pixel1G7ZG3nPlZVGJ

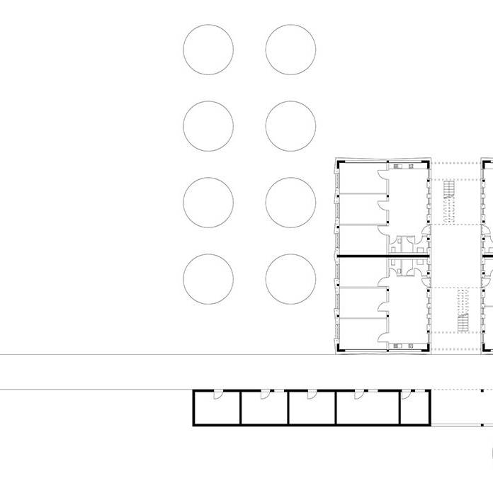
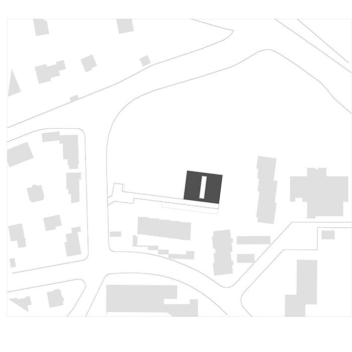
Besonders war diese Bauaufgabe in vielerlei Hinsicht: Zum einen war es das Ziel, ein weitestgehend nutzungsflexibles Wohngebäude zu schaffen. Von Beginn an war hierbei klar, dass sich die Erstnutzung als Nachfolgeunterbringung für Geflüchtete über nur wenige Jahre erstrecken würde. Für die Zeit danach wurden mehrere Nutzungsszenarien mitentwickelt: vom studentischen Wohnen über Wohngemeinschaften/-gruppen bis hin zum konventionellen Wohnen. Zum anderen war das Baugelände ein nicht mehr genutzter Bolzplatz, umgeben von einem Wohngebiet und sehr viel Bestandsgrün.

Für Freivogel Mayer Architekten war von Anfang an klar, dass das neue Gebäude auf diesem Baugelände keine klassische Wohnungsbauarchitektur werden konnte. Daher entschieden sich die Planer für eine weitestgehend autonome Formensprache, die sowohl mit den Faltungen der Außenhülle als auch durch ihre Farbgebung mit dem Grün der Umgebung unmittelbar kommuniziert. Das neue Gebäude sollte außerdem keine Assoziationen zu einer Flüchtlingsunterkunft herstellen. Stattdessen war es ihnen wichtig, trotz der Gebäudestruktur aus acht gleichen Modulen, eine neue identitätsstiftende Adresse zu schaffen. Um das Gebäude flexibel nutzen zu können, war die Minimierung von tragenden Bauteilen im Innern ein wichtiger Baustein. Die überdachte offene Erschließungszone zwischen den beiden Gebäudeflügeln dient als niederschwelliger Gemeinschafts- und Kommunikationsbereich für die Bewohner.

In Holz-Massiv-Hybridbauweise wurden die tragenden Bauteile als massiver Skelettbau mit Stützen und Flachdecken erstellt, die Außenhülle als Holzrahmenkonstruktion. Um die gewünschte Präzision zu erzielen und eine wirtschaftliche Erstellung in kurzer Bauzeit sicherzustellen, wurde die gesamte Holzkonstruktion der Fassaden nahezu vollständig vorgefertigt. Die Übergabe der Ausführungsplanung an das ausführende Holzbauunternehmen erfolgte via digitalem 3D-Modell, das die Grundlage der CNC-Herstellung bildete. Bei der Wahl des Fassadendämmstoffs wurden Holzfaser-Einblasdämmung und -Putzträgerplatten gewählt, um zusammen mit der Verwendung heimischen Nadelholzes aus dem Nordschwarzwald eine positive CO₂-Bilanz zu erreichen. Durch den sehr hohen Gebäudedämmstandard wird außerdem die Anschlussleistung an das städtische Fernwärmenetz minimiert. Das Wohngebäude mit einer Bruttogeschossfläche von 1.190 m² erfüllt den Primärenergiebedarfsstandard A und liegt damit 32 Prozent unter dem Standard der Energieeinsparverordnung.

www.freivogelmayer.de
www.pforzheimer.de

Fotos:

Dietmar Strauß
www.dietmar-strauss.de

(Erschienen in CUBE Stuttgart 01|22)

 

Architekten:

Freivogel Mayer Architekten
www.freivogelmayer.de

Außenputz:

Knauf
www.knauf.de

Holzfaser-Einblasdämmung:

Steico
www.steico.com

Holzfaser-Putzträgerplatten:

Sonae Arauco
www.sonaearauco.com

Birkensperrholzplatten (innen):

Koskisen
www.koskisen.fi

Nothing found.

Ort der Begegnung

Das neue Pfarrheim Mariä Himmelfahrt in Miesbach prägt ein Kontrast aus Modernität und Tradition

Preziose unterm Dach

Ein Spitzboden in einem Mehrfamilienhaus in Essen-Rüttenscheid wird zum Vorzeigeprojekt

Vergangenheit & Zukunft

Modellprojekt zeigt, wie sakrale Bestandsarchitektur transformiert werden kann

Nothing found.

CF007243_45-Kopie_19_700pixel

Freundlich empfangen

Familiengericht zieht in neu gestaltete, helle und barrierefreie Räume mit besonderem Lichtkonzept

2020-12_WIE_Caerphillystrasse-Ludwigsburg_Bild-02_700pixel

Nachhaltig und menschlich

Bauherr setzt auf klimafreundliche Ziegel und ein „Fair-Wohnen“-Modell

dzpa_Sanierung-und-Modernisierung_Haus-Z-in-Mo-ssingen_Strassenansicht_b_15_700pixel

Modern mit 60er-Jahre-Charme

Umbau eines Wohnhauses mit flächigen Elementen in Massiv- und Holzbauweise

191220_big-foot-glass-sidetable_Alexander-Klein02_15_700pixel

Studio creative underdogs

Designstudio für Produkte, Möbel und Raumkonzepte

_KAP4112-2_15_700pixel

Alle Dinge fließen ineinander

Lebendige Gartenanlage mit Schwimmbad passend zum ökologischen Holzhaus

RH2738-0040_15_700pixel

Zentraler Campus

Neubau eines Informationszentrums und Umbau einer alten Turnhalle zum Studierendenzentrum

_G7A0369_15_700pixel

Dreigeteilt und doch vereint

Angepasst an die gewachsene Umgebung und individuell weitergeführt

210811_WraggeGa-rten_Fam-Stroh_PatrikGraf-5-4_19_700pixel

Akzente übers ganze Jahr

Barrierefreie Gestaltung mit tierfreundlicher Bepflanzung und geschützten Aufenthaltsbereichen