Innen wie außen

Rundum stimmiges Gestaltungskonzept für Umbau einer Villa

FREY_BV_NIELSON_-30_PREVIEW_15_700pixel

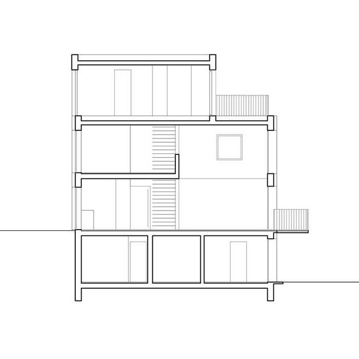
Ein Flachdach war gefragt. Ebenso wie eine Dachterrasse mit phänomenalem Blick auf den Stuttgarter Süden. Was vorhanden war? Ein eher schüchtern wirkendes Satteldachhaus aus den 1950er-Jahren in Halbhöhenlage. Immerhin: Die Voraussetzungen für eine tolle Aussicht stimmten schon mal. Um das andere kümmerten sich Frey Architekten. Sie planten einen monolithischen Baukörper, der alle heterogenen und kleinteiligen Elemente des Bestandbaus hinter sich lässt. Das Satteldach wurde vollständig abgetragen und durch einen einstöckigen Flachdachaufbau in Holzbauweise ersetzt. Aufgrund baurechtlicher Vorgaben musste dieser als eingerücktes Staffelgeschoss errichtet werden, sodass dadurch ganz automatisch Raum für die gewünschte Dachterrasse entstand. Das Holz der Terrasse findet sich auch in der Fassadengestaltung wieder – ebenso wie in der Holzschalung des Dachaufbaus aus Eiche. Das gesamte Haus hingegen ist mit einem warmen, grauen Edelkratzputz verputzt. Verbindendes Element zwischen den beiden Oberflächen bilden die Fensterelemente aus naturbelassenem Eichenholz.

Das Gestaltungskonzept, das die Außengestaltung bestimmt, wurde im Innenraum fortgeführt. Das bedeutet: Die vorhandenen Strukturen wurden aufgebrochen und durch klare Linienführung mit viel Licht und neuen Sicht- und Blickachsen ersetzt. Den Mittelpunkt des Hauses bildet ein Luftraum, der den großzügigen Wohnbereich im Erdgeschoss mit der Flur- und Galerieebene im Obergeschoss verbindet. Hier fließen die Räume horizontal und vertikal zusammen und verbinden den phantastischen Ausblick auf der Südseite.

Um diese Verbindung weiter zu schärfen, öffneten die Architekten die Fassade zum Garten hin und rückten das Außengelände wieder mehr ins Bewusstsein. Die innere Erschließung mit einer zentralen, geradläufigen Treppe blieb erhalten. Von der bestehenden, mit Holz belegten Treppe im Erdgeschoss gelangt man vom Wohnbereich auf die Galerie im Obergeschoss. Von hier aus erreicht man die Kinder- und Gästezimmer sowie eine Bibliothek. Eine neue, filigrane Stahltreppenkonstruktion führt schließlich ins Elterngeschoss, das im neuen Dachaufbau mit angeschlossenem Bad und Zugang zur Dachterrasse untergebracht ist.

Das zur Außenfarbe harmonisch kontrastierende Eichenholz der Fensterelemente findet sich im Innenbereich nicht nur im Bodenbelag wieder. Es wurde auch für die Einbaumöbel verwendet, die in Zusammenarbeit zwischen Architekten und Bauherrn konzipiert wurden. Nicht zuletzt dadurch wurde aus dem Kubus eine runde Sache.

www.freyarchitekten.de

(Erschienen in CUBE Stuttgart 04|20)

Architekten:

Frey Architekten
www.freyarchitekten.de

Holzbau, Zimmermann:

Banzhaf Holzbau
www.banzhaf-holzbau.de

Fenster:

Etter Fenstertechnik
www.etter-fenstertechnik.de

Fassade:

Eugen Schwarz
www.eugenschwarz.de

Innenausbau:

Schnabel
www.schnabel.co

Malerarbeiten:

Heinrich Schmid
www.heinrich-schmid.com

Schlosserarbeiten:

Wolfgang Veit
www.veit-metallbau.de

Schreiner (Einbaumöbel, Küche):

Die Echaz Schreinerei
www.echaz.de

Dachabdichtung:

SGS Meisterdach
www.sgs-meisterdach.com

Kamin:

3D Ofengestalter Franz-Lorenz Wagner
www.ofengestalter.de

Bodenbeläge:

Parkettteam Stuttgart
www.parkettteam-stuttgart.de

Fliesen:

SK Fliesen
www.skfliesen.de

Leuchtenhersteller:

Mawa-Design
Oty light,
Kreon
Viabizzuno

Lichtplaner:

Candela
www.candela.de

Badausstattung:

Vola
Antonio Lupi
Nostromo
Fantini
Roos

Fotos:

Jörg Jäger
www.joergjaeger.com

Nothing found.

Ort der Begegnung

Das neue Pfarrheim Mariä Himmelfahrt in Miesbach prägt ein Kontrast aus Modernität und Tradition

Preziose unterm Dach

Ein Spitzboden in einem Mehrfamilienhaus in Essen-Rüttenscheid wird zum Vorzeigeprojekt

Vergangenheit & Zukunft

Modellprojekt zeigt, wie sakrale Bestandsarchitektur transformiert werden kann

Nothing found.

2020_-Studio-Komo-Thorit2833-Komp_19_700pixel

Vielfalt in Raum und Funktion

Individuell zugeschnittene New-Work-Arbeitswelt für eine Technologieagentur

1854_EFH_Gerlingen_01_19_700pixel

Farbe, Form und Licht

Aus einem Wohnhaus der 1980er-Jahre wird ein fein komponiertes Familienrefugium

2_19_700pixellNTBkJJI9HGBM

Garten mit Wow-Effekt

Leitidee des Entwurfs ist ein formaler, erhöhter Sitz- und Liegebereich mit integriertem Pool auf der Höhe des Erdgeschosses.

Überzeugendes Ensemble

Markanter Neubau fasst Funktionsbereiche zusammen und ergänzt die historische Kirche

ZB569-40_20_700pixel

Grosszügig auf kleiner Fläche

Eine monolithische Gebäudehülle mit aufgelösten Gebäudeecken, die gezielt Ein- und Ausblicke zulassen und für unterschiedliche Lichtstimmungen…

KronprinzPopUp_19_700pixel

Von Stuttgartern für Stuttgarter

Im Kronprinz Pop Up Store präsentieren kreative Köpfe ihre einzigartigen Produkte

K59_001_studiocrossscale_2020_grauer_himmel_15_700pixel

Leuchtend mit Aussicht auf Patina

Nachhaltige Sanierung und Dachaufstockung schafft hochwertigen städtischen Wohnraum