Passgenau
Auf das Wesentliche reduziert, erweist sich dieses Haus als Maßanzug für seine Bewohner:innen
Der Architekt Thomas Fabrinsky beschreibt das Gebäudekonzept wie folgt: „Für die Familie genau auf den Punkt gebracht“. Alle Familienmitglieder finden Raum für ihren Bedarf, da die Nutzungsmöglichkeiten passgenau zugeschnitten wurden. Weder Räume noch technische Ausstattung werden vorgehalten – alles was zur Verfügung steht, wird gebraucht und genutzt.
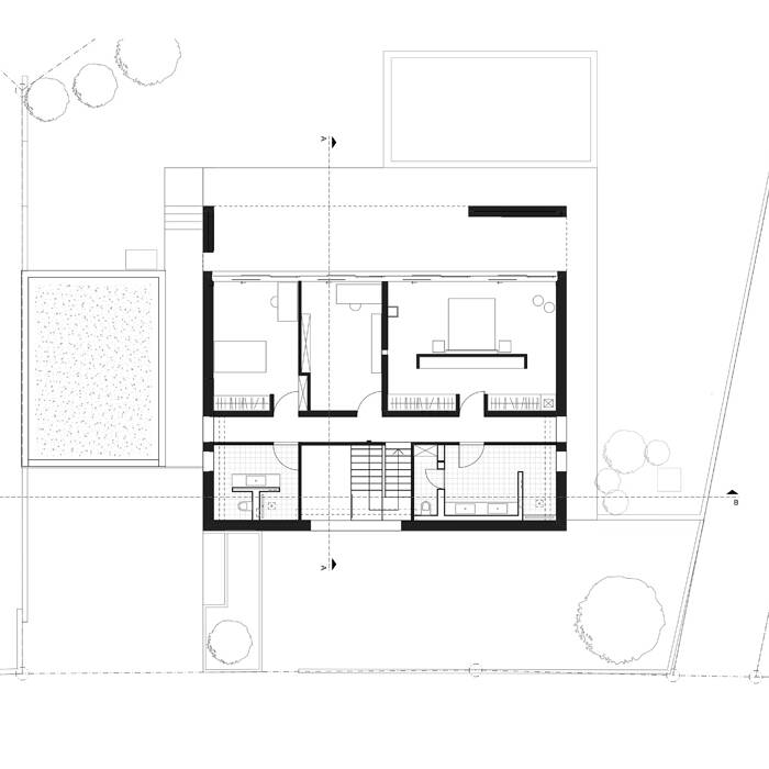
Der Baukörper ist als einfacher Quader ausgebildet. Ausschnitte wie der des Eingangsbereichs gliedern und akzentuieren die klare Form. Für Ankommende ist dadurch der Zugang zum Haus klar erkennbar, geschützt – da überdacht – und vermittelt Willkommensein. Die Verglasung lässt Ein- und Durchblicke zu, der blickdichte Vorhang schafft andererseits Privatheit – wenn gewünscht. Elementares Gestaltungselement und aus allen Räumen erlebbar ist die zweigeschossige Loggia zum Garten, die über die gesamte Hausbreite verläuft. Sie schützt die Terrasse und vermittelt zwischen den Innenräumen sowie dem Garten mit Pool. Hochwertige, zeitlose und wartungsarme Materialien prägen den optischen Eindruck des Einfamilienhauses. Sie sind auf wenige ausgewählte reduziert, wie beispielsweise der Jura-Kalkstein. Dieser zieht sich durch den kompletten Innen- und Außenbereich: an der Fassade, als Terrassen- und Pflasterbelag und für Einfriedungen, als Boden- und Wandbelag sowie für Ablageflächen in den Bädern und schließlich für die Rahmung des offenen Kamins. Farblich auf den hellbeigen Jura-Kalkstein abgestimmte Alu-Fensterrahmen mit schlanken Profilen, große Glasflächen sowie bodengleiche Übergänge von innen nach außen vermitteln eine angenehme Weite. Nach Betreten des Hauses steht man in einem zweigeschossigen Entree mit einer filigranen Treppe, die ins Obergeschoss mit den privaten Räumen führt. Die Garderobe und alle weiteren Möbel sind passgenau angefertigt und wirken, flächenbündig und ohne Griffe eingefügt, als Teil des Ganzen. Ein freigestellter, offener Kamin trennt den Koch-Ess- vom Wohnbereich, wobei die durchgängige Glasfassade den fließenden Raumeindruck bewahrt. Im Obergeschoss mit den privaten Räumen der Familie gibt die großflächige Verglasung den Blick auf die attraktive Umgebung frei.
Energetisch angemessen für die Zukunft aufgestellt sollte das Haus sein und so sind eine effiziente Wärmepumpe, eine PV-Anlage und Batteriespeicher Teil des Energiekonzeptes. Auch der Pool wird über eine externe Wärmepumpe regenerativ beheizt. Kombiniert mit der hochgedämmten Gebäudehülle und den Hochleistungsverglasungen, ist die Grundlage für eine Gebäudeautarkie gegeben.
Wohnfläche: 231 m²
Grundstücksgröße: 878 m²
Bauzeit: 2020–2022
Bauweise: Massivbau
Energiekonzept: Wärmepumpe, PV-Anlage mit Energiespeicher
Fotos:
Stephan Baumann
www.bild-raum.com
(Erschienen in CUBE Stuttgart 02|24)












