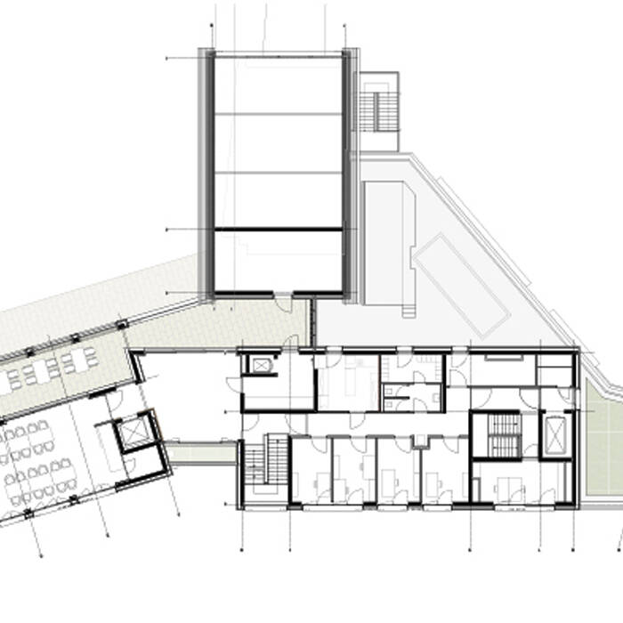
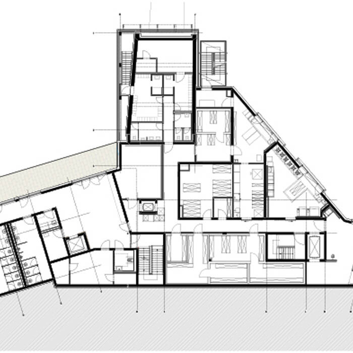
Geschichte fortschreiben

Ensemble aus drei Restaurant-Neubauten – angelehnt an traditionelle Schwarzwälder Architektur

RH2953-0005_19_700pixel

Bei einem Brand im Januar 2020 wurde das rund 230 Jahre alte Stammhaus des Hotels Traube Tonbach samt Restaurants völlig zerstört. Trotz des immensen Verlustes war schnell klar, dass der Traditionsbau durch ein neues Gebäude ersetzt wird. Die beauftragte ARP Architektenpartnerschaft Stuttgart entwarf – angelehnt an ein Schwarzwaldgehöft – drei einzelne Gebäude, die in sich und mit dem Bestand ein stimmiges Ensemble bilden. Charakteristisch für die traditionelle Schwarzwälder Architektur, zeigt sich die Fassade zur Straße eher geschlossen und Richtung Tal öffnen großzügige Verglasungen und Terrassen den Blick in die Landschaft. Natürliche Materialien wie vergraute Holzschindeln, grober Putz und das Ziegeldach sind im ländlichen Raum zuhause. Das Granitpflaster und die Lehmwand des Außenbereichs setzen sich im Foyer fort, verbinden Innen und Außen. 

Über das zentral gelegene Foyer gelangt man in die drei Häuser mit jeweils einem Restaurant. Das Drei-Sterne-Restaurant „Schwarzwaldstube“ ist geprägt von seiner beachtlichen Raumhöhe, dem sichtbaren Holztragwerk und einem vollverglasten Giebel. Die Holzverkleidung wie auch die großformatigen Granitplatten und das imposante Lichtobjekt lassen den Raum in seiner Weite wirken. An der Stelle der einstigen Bauernstube befindet sich nun das Ein-Sterne-Restaurant „1789“ – eine Hommage an die Gründung der „Traube“. Kleine Lochfenster, Lehmputzwände, Eichenholzböden und umlaufende Sitzbänke schaffen eine gemütliche Atmosphäre. Das „Schatzhauser“, die ehemalige „Köhlerstube“, erinnert mit seinen geschwärzten Wänden und Decken sowie dem dunklen Hirnholzboden an die Köhlerzunft. Im Obergeschoss bietet das „Quartier“ mit seinen großen Schiebetüren zur überdachten Terrasse Platz für Veranstaltungen. Der komplexe Service- und Küchenbereich erstreckt sich über zwei Etagen und nimmt rund die Hälfte der Nutzfläche ein. Eine eigene Technikzentrale pro Haus reduziert sowohl Bauhöhen als auch Wege. Die Abwärme der Blockheizkraftwerke wird zur Beheizung, die Abwärme der Kälteanlage zur Warmwasserbereitung genutzt. 

www.arp-stuttgart.de

Fotos: 

Roland Halbe
www.rolandhalbe.eu

(Erschienen in CUBE Stuttgart 03|23)

Nothing found.

Expressiv Stützenfrei

Ein Büroneubau in Marsdorf bietet Kita, Cafeteria und kollaboratives Arbeiten

Klar, präzise, dauerhaft

Ein Einfamilienhaus hält die Balance zwischen Massivität und Wärme

Klare Struktur in Rekordzeit

Eine Gesamtschule in Velbert nutzt die Hanglage und setzt auf Cluster

Nothing found.

4_15_700pixel1G7ZG3nPlZVGJ

Wohnmodule im Grünen

Flexibel nutzbarer Wohnbau in Holz-Massiv-Hybridbauweise, effektiv gedämmt mit Holzfaserplatten

Ansicht-Ost-mit-Eingangsbaukoerper_19_700pixel

Von komplex zu klar

Eine zeitgemäße Arbeitswelt mit offenen Arbeitslandschaften, Rückzugsbüros, Besprechungsinseln und Teambereichen mit Ideenarena.

Selbstbewusst im Bestand

Trotz kontextueller Vorgaben entstand ein individuelles Wohnhaus mit besonderer Ausstrahlung

001b_15_700pixel

Klare Architektursprache

Um das relativ kleine Grundstück effizient nutzen zu können, entwickelten Fischer Rüdenauer Architekten Wohnungsgrundrisse in L-Form um den Kern aus…

HausBWeb_0025a_15_700pixel

Klassisch modern

Skulpturales Einfamilienhaus mit separaten Bereichen für Eltern und Kinder

DRAFT_Ceiling_M_clear_SERIEN_APT-A_2022_0163_V1_OB_CMYK_300dpi_A4_15_700pixel

Das Warten hat sich gelohnt

Individuell sanierte Stadtwohnung in einem denkmalgeschützten Gebäude von 1912–13

Panzer_20190513_DSC8968_15_700pixel

Schöner als jeder Urlaubsort

Ein Wohlfühlgarten, der moderne und klassische Elemente harmonisch verbindet