Vorbildlich intelligent

Feuerwehr-Neubau, der auf kreislauffähige Materialien setzt, dient als Rohstoffdepot

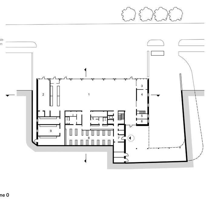
Das neue Feuerwehrhaus, geplant von Wulf Architekten, führt sechs bislang eigenständige Abteilungen an einem strategisch günstigen Standort zusammen. Wesentlich für das Entwurfskonzept war, die einzelnen Funktionsebenen zu trennen und zu stapeln sowie die Hanglage des Grundstücks zu nutzen. So konnte die versiegelte Grundfläche minimiert werden und der Baukörper fügt sich harmonisch in die Topografie. Nach außen hin ist die Stapelung der unterschiedlichen Nutzungsbereiche klar erkennbar, was dem Neubau sein identitätsstiftendes Erscheinungsbild verleiht.

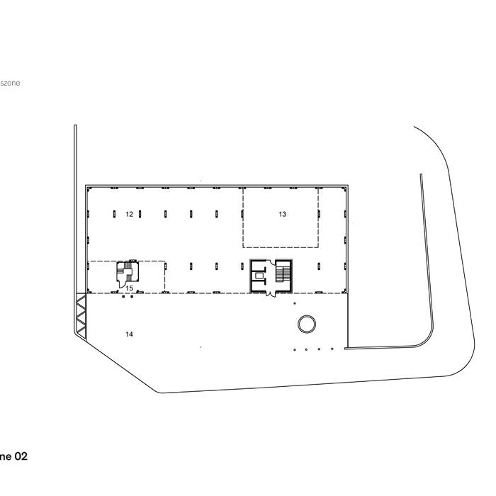
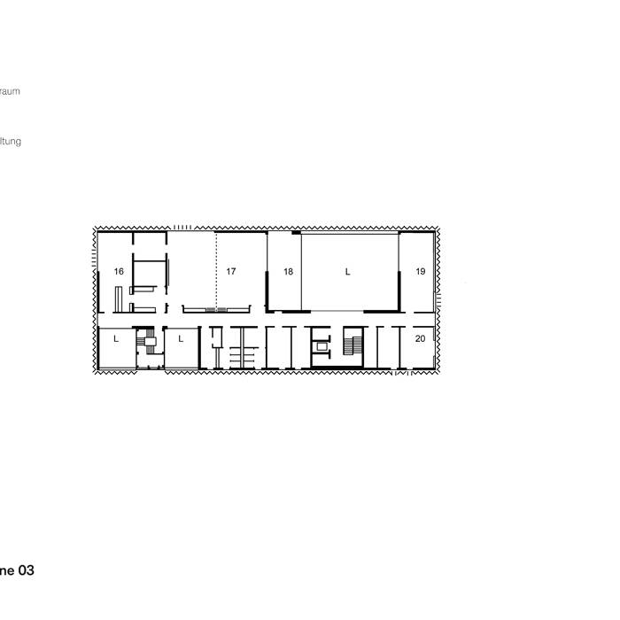
Der in den Hang eingefügte massive Sockel, der sich nach Norden zur Straße öffnet, beherbergt die Halle für Löschfahrzeuge und alle für Einsätze notwendigen Funktionen sowie Lager- und Technikflächen. Das offene Zwischengeschoss verfügt über zwei Lichthöfe und nimmt die umgebende Landschaft auf. Über eine außenliegende Rampe erreichbar, dient es als Parkebene, Aufenthaltsbereich sowie als Fläche für Veranstaltungen. In dem darüber aufgeständerten Holzbaukörper sind ein Schulungsraum, Büroflächen und weitere Gemeinschaftsräume für die rund 230 Feuerwehrangehörigen untergebracht. Eine homogene weiße Streckmetallfassade umhüllt den Holzbau. Hinter dem Gebäude befindet sich ein 700 m² großer Übungsplatz. Der Feuerwehr-Neubau ist eines der bundesweit ersten Gebäude, das nach dem Kreislaufprinzip „Cradle to Cradle“ geplant und gebaut wurde. Die Intelligenz und der Nutzen stecken in allen Ebenen und Details. Es wurden ausschließlich leicht recyclebare und gesunde Materialien verbaut – wovon auch das Raumklima spürbar profitiert.

Insgesamt wurden 248 Werkstoffe und 79 Bauteile in Bezug auf Materialgesundheit, sortenreine Trennbarkeit, Energiebedarf und CO₂-Emissionen bei Herstellung und Transport durch das Umweltberatungsinstitut EPEA geprüft. Durch den Verzicht auf Klebstoffe, Anstriche oder Putze bleiben die Materialien kreislauffähig. Die Holzbauelemente beispielsweise sind verschraubt und nicht vernagelt oder verklebt. Auf diese Weise ließen sich die Materialien bei einem Rückbau einfach trennen und wiederverwenden, sodass das Gebäude ein wertvolles Rohstoffdepot darstellt. Ein digitaler „Gebäuderessourcenpass“ dokumentiert die verbauten Materialien und deren chemische Zusammensetzung. Das neue Feuerwehrhaus fungiert als wichtiger Impulsgeber für zukünftige Entwicklungen zur Nachhaltigkeit im Bauwesen.

www.wulfarchitekten.com

Fotos:

Brigida González
www.brigidagonzalez.de

(Erschienen in CUBE Stuttgart 01|24)

Nothing found.

Wohnen im Komponistenviertel

Junges Wohnquartier in alter Nachbarschaft in Weissensee

Lichtdurchflutete Arbeitswelt

Hocheffizientes Bürogebäude in der Maxvorstadt

Gelungene Überführung

Der Umbau eines ehemaligen Wochenendhauses begeistert die Bauherrin

Individualität im System

Grundschule verbindet Planungs- und Fertigungseffizienz mit zeitgemäßer Gestaltung

Nothing found.

mgf_Ko-rschtalschule_full-res_08_15_700pixel

Wirtschaftliche Holzmodule

Nachhaltig ausgelegter Neubau zur Erweiterung einer Grund- und Gemeinschaftsschule

Die zwei Seiten

Organische Front trifft auf klare, lineare Rückfassade

studiocrossscale_jugendstil_wohnzimmer_15_700pixel

Spannungsbogen

Sanierte Jugendstilwohnung verbindet historische und moderne Elemente zu einer neuen Raumqualität

IMG_0059_b-Kopie_15_700pixel

Einfach überraschend

Polygonale Raumkörper erzeugen ein Wechselspiel aus geschlossenen und offenen Volumen

2703_Ruit_RH_G300_0074_19_700pixel

Vielfalt in der Einheit

Repräsentativer, maximal verdichteter Neubau schafft günstigen Wohnraum für Pflegekräfte

Zirbenduft und tiefes Schwarz

Klare Zonierung und starke Kontraste prägen die Neugestaltung einer Praxis

KronprinzPopUp_19_700pixel

Von Stuttgartern für Stuttgarter

Im Kronprinz Pop Up Store präsentieren kreative Köpfe ihre einzigartigen Produkte