Versöhnen und beflügeln
Die Topografie als Einladung für ein modernes offenes Zuhause
Zurückhaltend und doch markant, lässig und doch gehoben – so lässt sich das neue Wohnhaus des Stuttgarter Büros Fuchs.Wacker. in den Stuttgarter Halbhöhen beschreiben. Wer das Gebäude betritt, spürt sofort: Gegensätze werden hier nicht nur versöhnt, sie beflügeln einander. Denn es entstand ein Familiendomizil, das sich in die Landschaft schmiegt – und zugleich den Mut hat, gewissermaßen über sie hinauszuwachsen. Der Bauherr hatte sich ein modernes, offenes Zuhause für seine Familie gewünscht. Mit klaren Linien, fließenden Räumen und einem Blick über die Stadt. Das Grundstück schien jedoch zunächst eine Herausforderung: zurückgezogen in einer kleinen Senke gelegen, von alter Bausubstanz und Höhenbeschränkungen umgeben. Ein Ort, der auf den ersten Blick mehr Einschränkung als Aussicht versprach. Doch Michael Gehrmann, Partner im Stuttgarter Architekturbüro, sah darin kein Hindernis, sondern einen Ansporn und die Topografie sogar als Einladung, das Haus in Bewegung zu bringen.
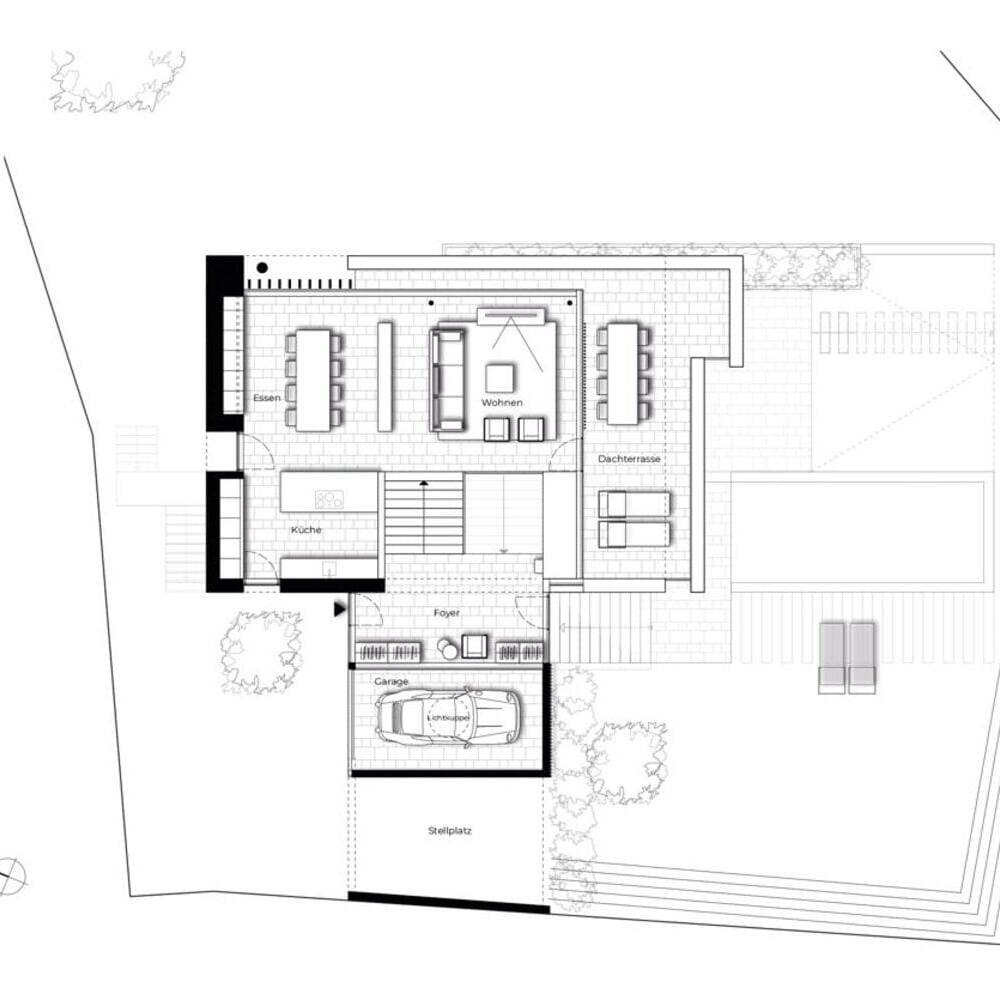
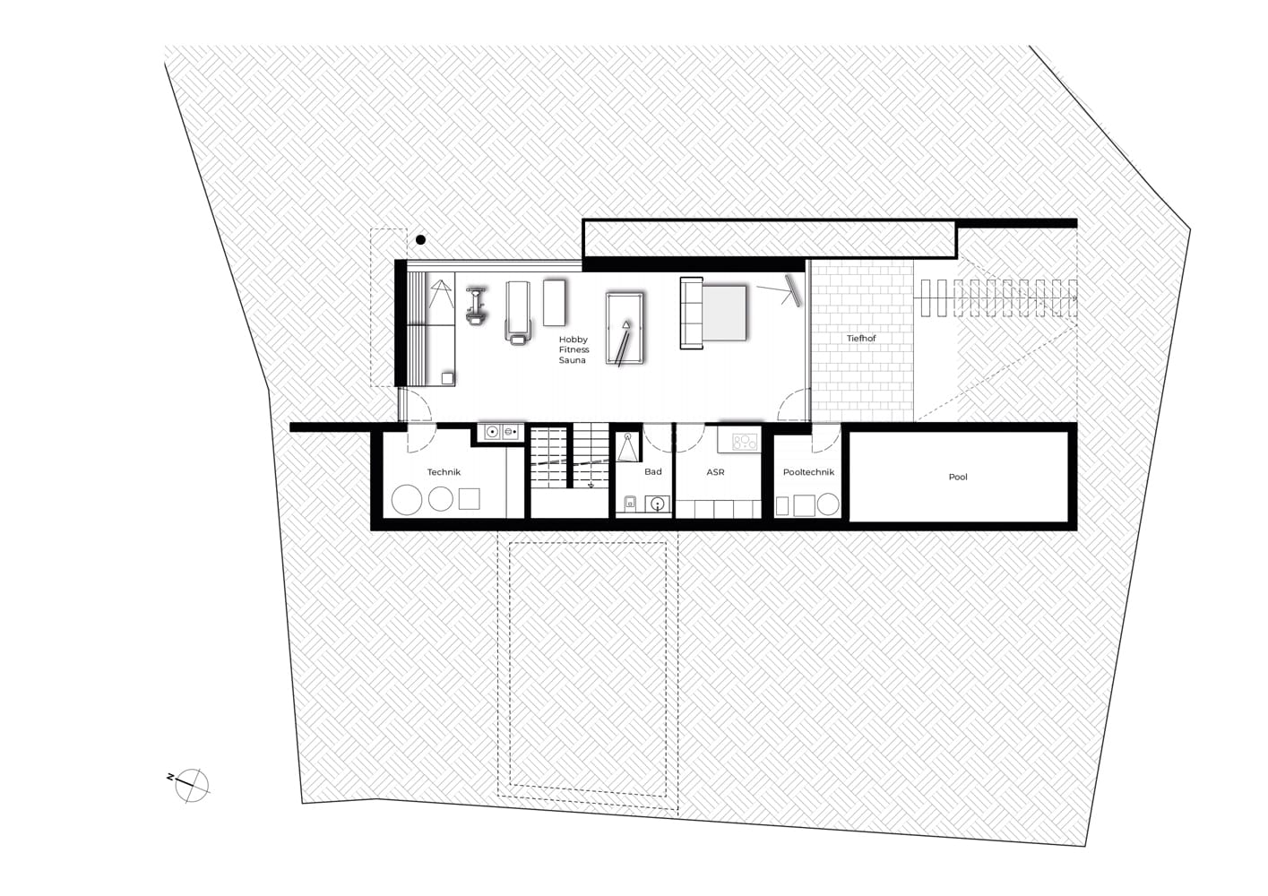
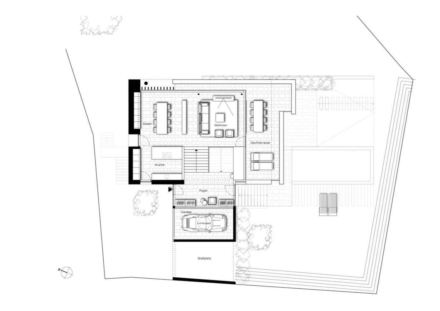
So entstand ein Split-Level-Konzept, das die Senke aufnimmt und die Besucher:innen Schritt für Schritt nach oben führt – bis sich der Raum plötzlich öffnet und einen Ausblick weit über Stuttgart frei gibt. Der Moment des Ankommens ist hier bewusst inszeniert: Vom Eingang führt eine Treppe hinauf in den offenen Wohn- und Essbereich, wo großflächige Glasfronten und eine Terrasse das Panorama rahmen. Der Ausblick ist nun nicht mehr versperrt, sondern zur Hauptfigur geworden. Im Inneren zeigt sich die Haltung des Hauses: klare Linien, großzügige Offenheit, jedoch nie kalt. Die Materialien – Glas, hell lasierte Eiche und grauer Kalkstein – verbinden Transparenz mit Wärme und Struktur mit Leichtigkeit. In der unteren Ebene liegen die privaten Rückzugsorte: Schlafzimmer, Ankleide und Bad, die durch schwarze Stahlrahmen und Glaswände gegliedert sind. Der Effekt ist ein spannendes Wechselspiel von Offenheit und Geborgenheit. Im Mittelpunkt des Badezimmers setzt sich eine frei stehende Badewanne aus schwarzem Acrylglas in Szene, die fast wie ein Designobjekt wirkt. Sie ist der ideale Rückzugsort, um nach einem langen Tag den Blick und die Gedanken schweifen zu lassen.
Das Licht spielt in diesem Haus eine wichtige Rolle. Tagsüber führen großflächige Verglasungen das natürliche Licht tief ins Innere, sodass der Raum als Teil der Natur wahrgenommen wird. Nachts übernimmt ein fein abgestimmtes Beleuchtungskonzept, das jede Stimmung aufgreift – von zurückhaltend bis festlich. Doch dieses Haus lebt nicht nur von innen nach außen, sondern auch umgekehrt. Die Fassade erhebt sich stufenweise aus dem Hang, als habe sie sich selbst aus der Landschaft geschoben. Horizontale Gliederungen betonen die Schichtung der Ebenen und verleihen dem Volumen Ruhe trotz der Größe. Der Außenbereich setzt das Prinzip der Höhenversetzung fort: Der Pool liegt leicht über dem Gartenniveau, gefasst von grauem Naturstein, und bildet den fließenden Übergang zum Bad. Architektur und Landschaft verschmelzen zu einer topografischen Einheit. Auch der Alltag erhält in dieser Stuttgarter Villa eine Bühne. Auf der Eingangsebene setzt ein weiteres Detail einen markanten Akzent: Durch eine Verglasung lässt sich der Porsche Carrera 4S des Bauherrn wie eine Skulptur betrachten – ein Statement aus Technik, Form und Leidenschaft, eingebettet in das klare Konzept des Hauses.
Fotos:
Johannes Vogt
www.johannesvogt.de
(Erschienen in CUBE Stuttgart 04|25)
