Kreativ angepasst
Haus am Steilhang mit offenem Wohnkonzept und Freibereichen auf allen Ebenen
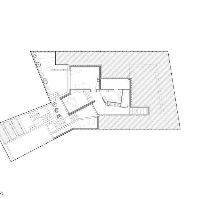
Das steile und geometrisch schwierige Hanggrundstück schreckte wohl viele Interessenten ab. Trotz seiner wunderschönen Lage und grandioser Aussicht. Die späteren Bauherren, ein Ehepaar, wollten es wissen und beauftragten Architekt Markus Mucha, die Bebaubarkeit zu bewerten. Der sah durchaus die Möglichkeit einer flächeneffizienten und attraktiven Bebauung – allerdings nicht in dem von Architekt und Bauherren bevorzugten klar rechtwinkligen Stil. Denn das mit 425 m² recht kleine Grundstück verlangte eine maßgeschneiderte Architektur, die die baurechtlich mögliche Nutzung mit dem Wunsch nach einem modernen, offenen Wohnkonzept mit hohen Räumen und großflächigen Verglasungen vereinbart.
Die Geometrie des Grundstücks gab die Geometrie des Gebäudes vor, weshalb dieses Volumen von innen nach außen entwickelt wurde. Ein in den Hang eingeschnittener Hof formuliert die Zugangssituation zum Haus in zweiter Reihe – fortgesetzt durch eine zweiläufige und um die eingegrabene Garage geführte Treppe. Aufgrund des steilen Hangs liegen viele Gebäudeteile unter der Erde. Dachverglasungen, Lufträume und Galeriesituationen bringen dennoch viel Tageslicht und Weite in das Innere. Sorgfältig angeordnete Fenster und Blickbezüge blenden die dichte und nahe umgebende Bebauung aus und ermöglichen ein ungestörtes Wohnen auf den drei Geschossen. Die Bereiche auf der 235 m² großen Wohnfläche sind klar erkennbar und gehen dennoch fließend und teils über Stufen verbunden ineinander über. An den Essplatz als Zentrum sind die anderen Wohn- und Erschließungsbereiche angegliedert. In den Innenräumen dominieren drei Oberflächen: Holzoberflächen aus Eiche, grauer Sichtbeton und weiße Flächen aus verschiedenen Materialien, wie der Gießboden, Putz oder Lack. Dabei bringen die Dielenböden und Fensterelemente aus Eiche Behaglichkeit in das Haus und die Betonflächen bilden den minimalistischen Gegenpol. Man betritt das Haus über ein Entree mit Garderobe, das sich zur Treppe in das 1. Obergeschoss und mit Blick durch ein Fenster ins Grüne verjüngt. Auf dieser Ebene sind außerdem ein abgetrenntes Arbeitszimmer, ein um vier Stufen abgesenkter Arbeitsbereich, ein kleiner Weinkeller sowie ein Haustechnikraum hinter einer holzverkleideten Wand untergebracht. Im 1. Obergeschoss entstand, eingefasst von der Küche sowie dem Ess- und Wohnbereich, eine geschützte Terrasse. Raumhohe Glasschiebetüren verbinden innen und außen. Richtung Südosten erweitert eine Loggia mit Faltschiebetüren die Wohnebene. Im Dachgeschoss nimmt eine geschlossene Box in der Raummitte Duschbad, Sauna und WC auf. Drumherum reihen sich Badewanne, Ankleide und Schlafzimmer mit angegliederter Dachterrasse. Von hier aus ist der Blick grandios und die Qualität des Grundstücks wird einmal mehr deutlich, wenn man es versteht, kreativ mit Herausforderungen umzugehen.
Wohnfläche: 235 m²
Grundstücksgröße: 425 m²
Bauzeit: Ende 2015 bis Anfang 2017
Bauweise: massiv, Stahlbeton
Energiekonzept: Gasbrennwerttherme gekoppelt mit Solarthermie sowie eine kontrollierte Be- und Entlüftung mit Wärmerückgewinnung
(Erschienen in CUBE Stuttgart 01|20)
