Zentraler Campus

Neubau eines Informationszentrums und Umbau einer alten Turnhalle zum Studierendenzentrum

RH2738-0040_15_700pixel

In der historischen Altstadt von Nürtingen vervollständigt das neue Informationszentrum der Hochschule für Wirtschaft und Umwelt den Hochschulstandort. Der Neubau ermöglicht eine konzentrierte Nutzung der vormals getrennten Bibliotheksstandorte auf dem zentralen Campus. Zusätzlich wurden dringend benötigte Seminar- und Arbeitsräume, das Studierendensekretariat und International Office realisiert.

Die städtebauliche Setzung schafft einen gemeinsamen Vorplatz mit den bestehenden Hochschulgebäuden und bildet eine räumlich markante Adresse für das Ensemble. Über eine schmale Fuge zwischen den Gebäuden erzeugt der neue Solitär baulich und inhaltlich Nähe zum denkmalgeschützten Gebäudebestand. Eine öffentliche Freitreppe verbindet den Vorplatz mit einer höher gelegenen Straße und trägt so zur Vernetzung des Campus im Altstadtgefüge bei. Alle Freiflächen sind für die Öffentlichkeit zugänglich. Die sandfarbige Klinkerfassade mit geschossweise abgesetzten Betonbändern orientiert sich an der Farbigkeit und Materialität des Bestands. Gleichzeitig repräsentieren das abstrakte Volumen und die klar geschnittenen Fensterfelder einen modernen Bildungsstandort. Eine Großplastik von Rudolf Hoflehner wurde aufgrund anstehender Baumaßnahmen von einem anderen Hochschulstandort hierher gebracht. Sie unterstreicht als Kunst am Bau den Gedanken der Weiternutzung und Nachhaltigkeit.

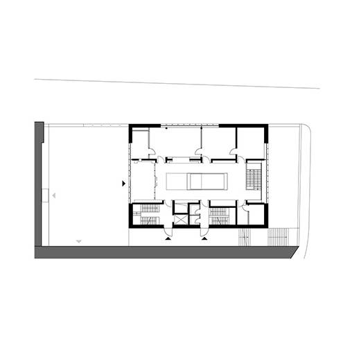
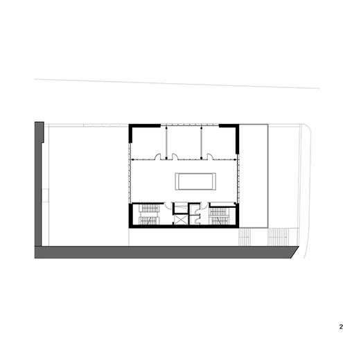
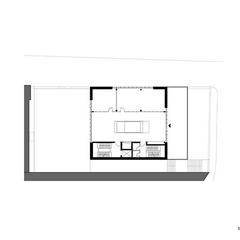
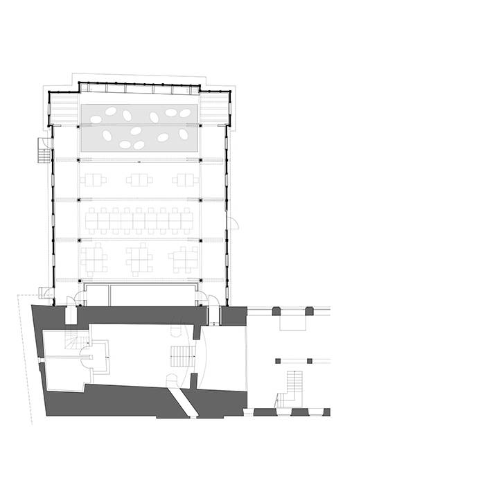
Im Innern ist der Neubau klar strukturiert: Geschossweise wird ein zentraler Großraum mit Arbeits- und Kommunikationszonen ausgebildet. Er ist beidseitig vollflächig auf den Außenraum ausgerichtet und schafft über Lufträume vertikale Sichtbeziehungen. An der Nordseite befinden sich die reservierbaren Gruppenarbeitsräume. Holzverkleidungen und textile Oberflächen prägen den Raumeindruck und schaffen eine Atmosphäre, die sowohl konzentrierte Arbeit als auch intellektuellen Austausch ermöglicht. An der geschlossenen Südfassade zoniert der seitliche Kernbereich mit vertikalen Verkehrsflächen, Steigschächten und Sanitärräumen die Grundrisse. Im Anschluss an diese Funktions- und Erschließungszone verbleibt vom 1. bis zum 4. Obergeschoss eine Fläche von 220 m², die flexibel unterteilt werden kann. Möglich ist dies auch durch die weitgehend stützenfreie Konstruktion, die glatten Decken ohne Unterzüge und durch die flächige Deckenheizung. Zusätzlich lassen sich die Deckenöffnungen bei Bedarf schließen, sodass im Falle einer Nutzungsänderung auch getrennte Funktionsbereiche möglich sind. Das Gebäude ermöglicht die barrierefreie Nutzung auch für Menschen mit Wahrnehmungs- oder Bewegungseinschränkungen. Der Nutzungszusammenhang der Bibliothek im Untergeschoss mit den Seminar- und Arbeitsräumen in den Obergeschossen wird über eine durchgehende Luftraumverbindung vom Untergeschoss bis ins 2. Obergeschoss verdeutlicht. Eine gestalterische Klammer von Erdgeschoss und Untergeschoss wird über die durchgehende, funktionale Wandbekleidung erzeugt, die die Schließfächer, Infoterminals, technischen Einbauten, Türen und Bücherregale aufnimmt. Über einen Nebeneingang sind die studentischen Arbeitsplätze auch außerhalb der Öffnungszeiten der Bibliothek zugänglich.

Teil der Maßnahme ist auch die Sanierung der denkmalgeschützten Turnhalle. Ziel war es, die historische Bausubstanz zu sanieren und als Lernort für Studierende und Veranstaltungsraum optimal herzurichten. Die Holzfachwerkkonstruktion mit Füllungen aus Ziegelstein wurde von außen saniert, von innen mit einem diffusionsoffenem Wärmedämmputz energetisch ertüchtigt. 

www.knoche-architekten.de

Fotos:

Roland Halbe
www.rolandhalbe.eu

(Erschienen in CUBE Stuttgart 01|22)

Architekten:

Knoche Architekten
www.knoche-architekten.de

Tragwerksplanung:

Schweickhardt Erchinger
www.se-ingenieure.de

Elektrotechnik:

Conplaning
www.conplaning.de

Heizung, Lüftung, Sanitär:

Rieker Planungsgesellschaft
www.ib-rieker.de

Fassadenkonstruktion, Fenster, Außentüren:

Kehrel Fenster
Telefon: 06672-9 22 10

Maurerarbeiten:

Duda Bauunternehmung
www.duda-bau.de

Klinker:

Janinhoff
www.janinhoff.de

Dachdeckerei:

Neubau: Fritztechnologie
www.fritztechnologie.de

Turnhalle: Rainer Klink
www.flaschnerei-klink.de

Bodenbelag:

HG Bau
www.hg-bau-estrich.de

Lindner Group
www.lindner-group.com

Bozic Estriche
www.bozic-estrich.de

Leuchten (innen):

XAL
www.xal.com

Zumtobel
www.zumtobel.com

Trilux
www.trilux.com

Ridi
www.ridi.de

iGuzzini
www.iguzzini.com

Erco
www.erco.com

Leuchten (außen):

Bega
www.bega.com

Schalter:

Jung
www.jung.de

Bibliotheksregale, Schreibtische, Wandverkleidung:

Alender Innenausbau
www.alender.de

Systemtrennwände:

Alender Innenausbau
www.alender.de

Strähle Raumsysteme
www.straehle.de

Innentüren:

Göbes
www.goebes.de

Beschläge:

FSB
www.fsb.de

Drehtürantrieb:

Dorma
www.dormakaba.com

Außenanlagen:

Patrick Bayer
www.patrick-bayer.com

Godelmann
www.godelmann.de

Zimmerei:

Holzbau Ott
www.holzbau-ott.de

Sanierung Fachwerkfassade:

AeDis
www.aedis-denkmal.de

Lasur Fachwerkfassade:

Ottoson
www.ottossonfarg.com

Werksteinmörtel:

Tubag
www.tubag.de 

Fassadenkonstruktion, Fenster (Turnhalle):

Schreinerei Glasfassaden
www.schreinerei-obermueller.de

Bildau & Bussmann
www.bildau.de

Innenputz (Turnhalle):

Seeger
Telefon: 07151 690603

Nothing found.

Wohnen im Komponistenviertel

Junges Wohnquartier in alter Nachbarschaft in Weissensee

Lichtdurchflutete Arbeitswelt

Hocheffizientes Bürogebäude in der Maxvorstadt

Gelungene Überführung

Der Umbau eines ehemaligen Wochenendhauses begeistert die Bauherrin

Individualität im System

Grundschule verbindet Planungs- und Fertigungseffizienz mit zeitgemäßer Gestaltung

Nothing found.

Bu-ro-mit-Scha-tzen-7_Brigida-Gonza-lez_700pixel

Büro mit Schätzen

Ein skulpturales Gebäude integriert eine Ausstellung exklusiver Fahrzeuge

2021-07-21-swissfineline-referenz-villingen-kopp-drohne-00015_44_700pixel

Villa mit Weitblick

Sichtbeton, Gussasphalt und Glas lassen innen und außen verschmelzen

F22_ZB640-03_19_700pixel

Upcycling

Behutsam modernisiertes Reihenhaus aus den 1960er-Jahren weitet sich mit neuer Qualität

CF007243_45-Kopie_19_700pixel

Freundlich empfangen

Familiengericht zieht in neu gestaltete, helle und barrierefreie Räume mit besonderem Lichtkonzept

EP04028-0002-4-_15_700pixel

Meisterlich

Tadao Ando, der „Meister des Minimalismus“, entwarf eine neue Konzernzentrale

avui_15_700pixel

Inszenierungen für alle Sinne

Im Hotel Zum Hirschen in Fellbach ist das Sternerestaurant „avui“ beheimatet

Garderobe-1_15_700pixel

Upcycling mit Herz

Uwe Bühler lässt aus alten Fahrradteilen Möbel und Wohnaccessoires entstehen

Qualität durch Verdichtung

Qualität durch Verdichtung

Denkmalgeschütztes Altstadtgebäude erfährt durch Ergänzungsbauten eine Renaissance