Raum für Mensch und Natur

Das skulpturale Einfamilienhaus steht im Dialog mit der sanft hügeligen Umgebung

dva_wohnhaus-s-zeutern_01277h_15_700pixel

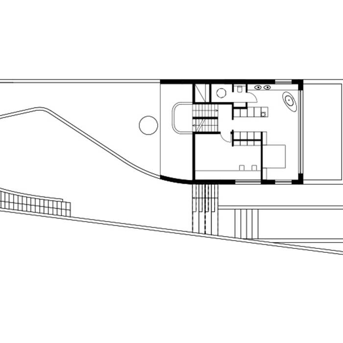
Dieses besondere Einfamilienhaus liegt auf einer Anhöhe am Rande des kleinen Winzerdorfs Zeutern im Kraichgau. Mit sanftem Schwung scheint es fast aus dem Hang hinauszuwachsen – nicht als Fremdkörper, sondern als ein Gebäude, das harmonisch mit seiner Umgebung verschmilzt und einen großartigen Blick in die Hügellandschaft bietet. „Das Haus ist formal abstrakt und hat dennoch einen bodenständigen Charakter, was durch den Einsatz traditioneller Baumaterialien deutlich zum Ausdruck kommt“, beschreibt Daniel Henecka seinen Entwurf.

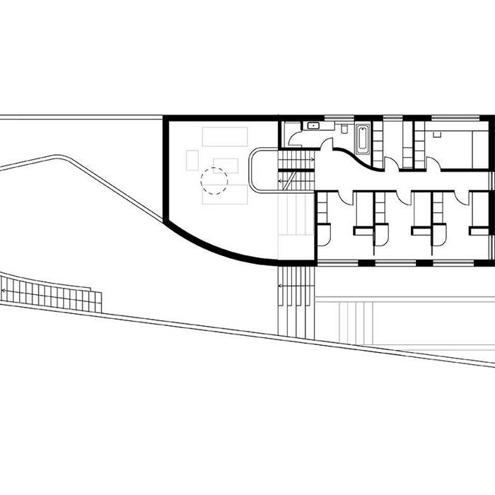
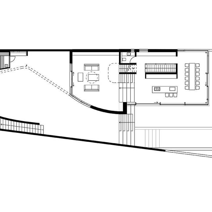
Große und teils bodentiefe Fenster mit Holzrahmen lassen innen und außen verschmelzen. Individuell angefertigt wurden die Verkleidungen und Faltläden aus Eichenholz, letztere schützen vor Einblicken und dienen zur Verschattung der Wohnräume. Dazu treffen Kupferabdeckungen auf rauen, grobkörnigen Putz – ein reizvoller und spannungsreicher Kontrast der Gebäudehülle. Der Architekt aus Bruchsal führt seine Leitmotive auch in der Innenraumgestaltung fort. Der Entwurf entwickelt sich aus der besonderen Lage und den Bedingungen des Grundstücks heraus. Dieses grenzt unmittelbar an ein Feld, auf dem wilde Blumen wachsen, die Lebensraum für Kleintiere und Insekten bieten. Ein begrüntes Dach legt sich schützend über die leicht zurückgenommene obere Etage des auf mehrere Ebenen angelegten Hauses, gibt so der Umgebung ein Stück Natur zurück und wird selbst zu einem Teil der Landschaft. Auf über 300 m² Wohnfläche bietet sich auf drei Wohnebenen viel Raum für das Familienleben und individuelle Rückzugsorte. Durch die offene Raumteilung und verschiedenen Ebenen ergeben sich interessante Perspektiven. Unten, unmittelbar über den in den Hang gebauten Garagen und Nebenräumen, befinden sich eine offene Küche und ein großzügiger Essbereich sowie eine Terrasse nebst Swimmingpool. In den Wohnraum gelangt man über eine breit angelegte Treppenanlage, die, teils mit großen Kissen bestückt, als Sitzgelegenheit dient. Die Treppe, die von dort in die nächste Etage führt, greift die leichte Wölbung der Fassade zu den terrassenförmig angelegten Außenanlagen auf.

Wie ein Balkon im Theater ragt die geschlossene Brüstung in den großen Raum mit seinen bodentiefen Fenstern und einem runden Oberlicht, das den Blick gen Himmel ermöglicht. Es folgen die Privaträume sowie ganz oben ein Studio mit freistehender Badewanne und Terrasse. Viel Wärme strahlen das Eichenparkett sowie die mit Lichtbändern dezent illuminierten Holztreppen und Holzeinbauten aus. Im Wohnbereich kommt ein eleganter italienischer Fliesenboden hinzu.  

www.he-ar.de

Wohnfläche: 304 m²
Grundstücksgröße: 1.756 m²
Bauzeit: 2 Jahre
Bauweise: Massivbau, Stahlbeton + Kalksandstein mit Wärmedämmverbundsystem
Energiekonzept: Gas-Brennwertkessel

Fotos:

Daniel Vieser
www.dv-architekturfotografie.de

(Erschienen in CUBE Stuttgart 02|21)

Architekten:

Henecka Architekten
www.he-ar.de

Einbaumöbel, Esszimmertisch, Küche:

Tischlerei Weiß
www.tischlerei-weiss.eu

Schalterprogramm:

THPG Porzellanschalter
www.produktgesellschaft.de

Waschbecken:

Alape
www.alape.com

Badewanne, WC:

Villeroy & Boch
www.villeroy-boch.de

Armaturen:

Ideal Standard
www.idealstandard.de

Wärmeversorgung:

Viessmann
www.viessmann.de

Esszimmerstühle:

Thonet
www.thonet.de

Edelstahldunstabzugshaube:

Siemens
www.siemens.com

Leuchten:

iGuzzini
www.iguzzini.com
Tonone
www.tonone.com

Bodenbeläge:

Marca Corona
www.marcacorona.it

Nothing found.

Harmonisch eingefügt

Neubau-Ensemble wahrt den historischen Bezug und entwickelt eigene Identität

Traditionell und Modern

Traditionell und Modern

Massivholzhaus ist der Publikumsliebling beim Rosenheimer Holzbaupreis

Erdverbundene Leichtigkeit

Winkelförmiger Bungalow auf Sockel mit Höfen bildet einen geschützten Gartenbereich

Nothing found.

CA498-02_15_700pixel

Form + Farbe

Neugestaltung einer Praxisklinik, die mit Volumen und Farbe unterschiedliche Bereiche schafft

dasch-zu-rn-partner_Sebastian-Kittelberger_19x13cm_300dpi_700pixel

Fünf Fragen zum Thema Corona …

an Architekt Sebastian Kittelberger

VSB_2012-04-24_133_15_700pixel

Große Klarheit

Die Innenarchitektur und Möblierung führt die klar geometrisch geordneten Strukturen der Gebäudearchitektur im Inneren fort.

210811_WraggeGa-rten_Fam-Jenner_PatrikGraf-5-16_19_700pixel

Kraftvoll, belebend, individuell

Ungenutzter Garten wird zum inspirierenden Wohlfühlort mit Pool inmitten einer grandiosen Landschaft

Alte neue Stadtstrukturen

Vier neue, an die Historie erinnernde Wohnhäuser bilden ein neues Stadtquartier am Fluss

HIPP8882_15_700pixel

Geometrisch und hell

Ein Einfamilienhaus fügt sich harmonisch in den Dorfrand und öffnet sich der Natur

Mystische Stimmung

Repräsentatives Headquarter übersetzt die Arbeitsweise von professionellen Hackern in Raumkonzepte

Mit Leichtigkeit

Klarer Baukörper mit Holzlamellen-Fassade erzeugt hohe Gestaltqualität bei engen Bebauungsvorgaben