Raus aus dem Raster
Ein vielseitiges Seminarhaus bietet Raum für neue Ideen
„Ideen sind der Schlüssel zu einer besseren Zukunft für uns alle“, sagt die Bauherrin, eine erfahrene Gastronomin und fragt gleich im Anschluss: „Aber wo ist zwischen all der Hektik in den Büros und Arbeitsplätzen dieser Welt noch Raum für neue Ideen?“ Mit dem sogenannten HAAUS will sie kreativen Köpfen und innovativen Geistern der modernen Welt einen Platz bieten, um abseits der Raster neue Gedanken zu entwickeln. Das im Juni 2021 eröffnete ungewöhnliche Seminarhaus ist zugleich Tagungsraum, Think-Tank, Veranstaltungsort, Co-Working-Space und Hotel Garni.
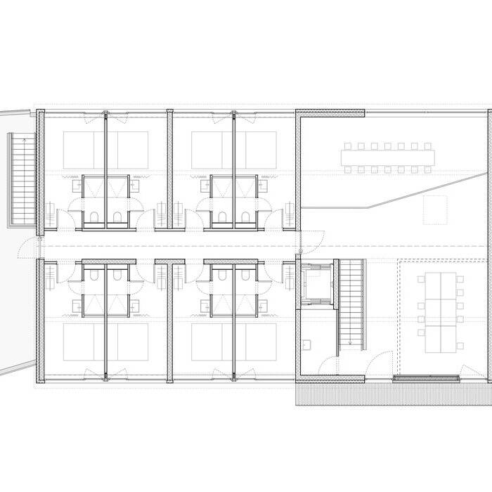
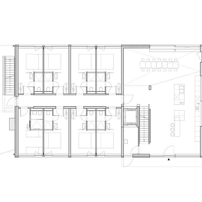
Gebaut wurde für das Start-Up auf dem Grundstück eines alten Bauernhauses in beschaulicher Umgebung im Rems-Murr-Kreis. Aufgabe für Anna Wöllhaf und Christoph Brösamle von Studio Ö Architekten war es, kostengünstig und effizient zu bauen, dabei aber nicht billig und beliebig. Viele Entwurfsansätze entstanden aus den anfänglichen Überlegungen, das alte Bauernhaus umzubauen. Stattdessen wurden die besten Ideen in eine langlebigere und robuste Struktur übersetzt. So entstand typologisch wieder ein langes Satteldachhaus, gegliedert in einen Wohn- und einen Wirtschaftstrakt. Die Funktionen verteilen sich auf zwei Geschossen. Der Wohntrakt nimmt 16 Gästezimmer auf. Hier kann man sich zurückziehen und übernachten – mit Blick ins Grüne. Die minimalistische Einrichtung der Zimmer nutzt den traditionellen Baustoff Holz und stellt so einen positiven Bezug zur Umgebung her. Die Bäder verfügen über WC und Dusche. Eines der Zimmer ist rollstuhlgerecht gestaltet. Der Wirtschaftstrakt, die Tenne, ist ein von der Straße in den Garten durchgesteckter Raum mit einer Galerieebene, die bis unter das Dach reicht. In ihrer Nutzung erinnert die neue Tenne wiederum an einen zeitgenössischen Scheunenausbau. Neben einem Seminarraum fungiert sie gleichzeitig als Koch-, Ess- und Aufenthaltsbereich. Die Nähe zur Natur und die Flexibilität der Raumgestaltung lassen verschiedenste Konzepte zu und setzen dem Rahmenprogramm so gut wie keine Grenzen – Kochkurs, Waldspaziergang, Yogakurs und vieles mehr ist denkbar.
Fotos:
Sebastian Schels
schels.net
(Erschienen in CUBE Stuttgart 01|23)
