Durchdacht und gut designt

Architektur und Einrichtung eines Einfamilienhauses am Hang bilden eine stimmige Einheit

HausCl-0005_40_700pixelrwMi6kdCUSF86

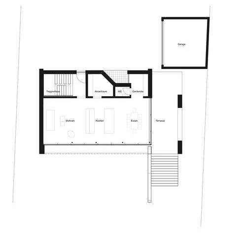
Das neue Wohnhaus liegt an einem Südhang im Filstal nahe Kirchheim unter Teck. Da das Bestandsgebiet sehr heterogen bebaut ist, war ein Flachdach für den Neubau kein diskussionswürdiges Thema. Eine Gruppe alter Bäume unterhalb des Grundstücks schützt vor Einblicken und rahmt gleichzeitig den Ausblick über das Tal. Schiller Architektur positionierten das Wohnhaus im 90-Grad-Winkel zur Garage, um eine Art Hofsituation zu bilden. Damit entstand eine Vorzone, die das Haus von der Straße abrückt. Eine Fuge zwischen den Gebäudeteilen ermöglicht den Durchgang zur Terrasse. Um den Eingang klar zu definieren und einen geschützten Zugang zu schaffen, ist er zurückgesetzt und durch gezielte Beleuchtung in Szene gesetzt. 

Eine klare Struktur zwischen dienenden und bedienten Räumen, die sich durch die Hangsituation ergeben und in den Baukörpern widerspiegeln – so lautete die Leitidee für das Architekturkonzept dieses Einfamilienhauses. Entsprechend klar ist es gestaltet und zoniert. Der Wohn-, Ess- und Küchenbereich erinnert in seiner kompletten Öffnung und großzügigen Raumhöhe an einen Saal. Großflächige Verglasungen bieten eine weitreichende Aussicht nach Süden. Dagegen ist die Nordseite vollständig geschlossen und die Terrasse in den Baukörper integriert, um Einblicke von der höher liegenden Nachbarbebauung aus zu vermeiden. Hinter der geschlossenen Nordfassade verläuft das Treppenhaus, wobei ein Oberlicht für ausreichend Tageslicht sorgt. Thematisch umfassen zwei nach unten gerichtete Spangen aus Weißtanne den Baukörper. Die Bereiche  innerhalb der Spangen sind entweder mit Glas oder mit dunklem Faserzement ausgefüllt. Die Geschossdecken und Wände des Untergeschosses sind in rohem Sichtbeton ausgeführt. Insgesamt wurde Wert auf Natürlichkeit und Erfahrbarkeit der Materialien gelegt. Geweißte Wände, Decken aus Sichtbeton sowie Parkett- und Fliesenböden werden ergänzt durch LeCorbusier-Farben. Eine virtuose Dekoration und Möblierung der Bauherrschaft belebt das Wohnhaus auf individuelle und angenehme Weise. 

Das Gebäude wird über eine hochwirksame Luft-Wasser-Wärmepumpe – unterstützt durch eine Lüftungsanlage – temperiert. Raff-stores, gesteuert mit einem KNX-System, übernehmen den sommerlichen Wärmeschutz inklusive der Beschattung. Eine Nachtauskühlung komplettiert das Energiekonzept des Hauses. 

www.schiller-architektur.de

Wohnfläche: 185 m²
Bauzeit: 1,5 Jahre
Bauweise: Untergeschoss in Sichtbeton, Erdgeschoss als Holzkonstruktion
Energiekonzept: Luft-Wasser-Wärmepumpe, Lüftungsanlage, KNX-System, Nachtauskühlung

Fotos: 

Philipp Mürdter, Uhingen
www.philippmuerdter.de

(Erschienen in CUBE Suttgart 03|23)

Architektur:

Schiller Architektur
www.schiller-architektur.de

Zimmer- und Holzbauarbeiten:

Holzbau Schleicher
www.schleicher-holzbau.de

Metall- und Schlosserarbeiten:

Schlosserei Buck
www.schlosserei-buck.de

Sockelabdichtung:

Dieter Meyer edachungen
www.dieter-meyer-bedachungen.de

Dachabdichtung:

A. Rink Bedachungen
www.rink-bedachungen.de

Sanitär:

Wissner
www.wissner-haustechnik.de
Flaschnerei Fuchs
www.fuchs-ebersbach.de

Fliesen- und Plattenarbeiten:

Harsch Fliese + Stein
www.harsch-fliese-stein.de
Allmendinger
www.allmendinger-gmbh.de

Rollladen- und Sonnenschutzarbeiten:

Hans Frey
Rolladen & Sonnenschutz
www.rolladen-frey.com

Fenster:

Müller & Sohn
www.mueller-fensterfabrik.de

Heizung:

Ludwig & Wendl
www.ludwig-wendl.de

Elektro:

B.E.N.S. Elektrotechnik
www.bens-elektrotechnik.de

Lüftung:

VisionAir Lüftungs- und Luftheiztechnik
www.visionair.eu

Einbaumobiliar:

Schreinerei Mödinger
www.schreinerei-moedinger.de

Mobiliar:

Vitra
www.vitra.com

Küche:

Küchenstudio Ideen und Küche
www.ideenundkueche.bulthaup.de

Einbauleuchten:

Brumberg
www.brumberg.com

Leuchte Esstisch:

Louis Poulsen
www.louispoulsen.com

Schalter:

Gira
www.gira.de

Kaktus:

Gufram
www.gufram.it

Badezimmer-Fliesen:

Laminam
www.laminam.com

Fassade:

Beinbrech
www.beinbrech.de
Eternit
www.eternit.de

Gipskarton:

Knauf
www.knauf.de

Nothing found.

Lichtdurchflutete Arbeitswelt

Hocheffizientes Bürogebäude in der Maxvorstadt

Gelungene Überführung

Der Umbau eines ehemaligen Wochenendhauses begeistert die Bauherrin

Individualität im System

Grundschule verbindet Planungs- und Fertigungseffizienz mit zeitgemäßer Gestaltung

Harmonie mit Liebe zum Detail

Farbkonzepte und Kunstobjekte für ansprechende Praxisräume in Moabit

Nothing found.

HausS_10-2020_439_41_700pixel

Passgenau

Individuell auf die Landschaft und die Bewohner zugeschnittenes Wohnhaus mit Pool am Hang

dzpa_Sanierung-und-Modernisierung_Haus-Z-in-Mo-ssingen_Strassenansicht_b_15_700pixel

Modern mit 60er-Jahre-Charme

Umbau eines Wohnhauses mit flächigen Elementen in Massiv- und Holzbauweise

Baurmann-Duerr-WH-S-Durlach-Swen-Carlin-063-DIN-A3-8bit-srgb_15_700pixel

Aus klein wird fein

Umgebautes und erweitertes Wohnhaus aus den 1960er-Jahren am Hang spielt sein Potenzial aus

ZB633-21_15_700pixel

Nachahmenswert

Doppelhaushälfte im Neubaugebiet bietet auf kleiner Fläche zwei Mieteinheiten

Ästhetisch und funktional

Feuerwehr und Bauhof profitieren von Synergieeffekten des gemeinsamen Standorts

Bild-Uhr-nachgeliefert_15_700pixel

Individuelles Design

Frithjof Maschke entwickelt Produkte, die das Interesse an Technik fördern

Lust aufs Büro

Kreativ-Agentur möchte mit einer inspirierenden Atmosphäre alle Sinne ihrer Mitarbeitenden anregen

Aus nüchtern wird wohnlich

Neugestaltung eines Hauses am Hang führt unterschiedliche Wohnebenen stilistisch zusammen