Kuben-Stapelei

Eine moderne Villa brilliert inmitten eines Teichs

home1_foto-craft_2115_15_700pixel

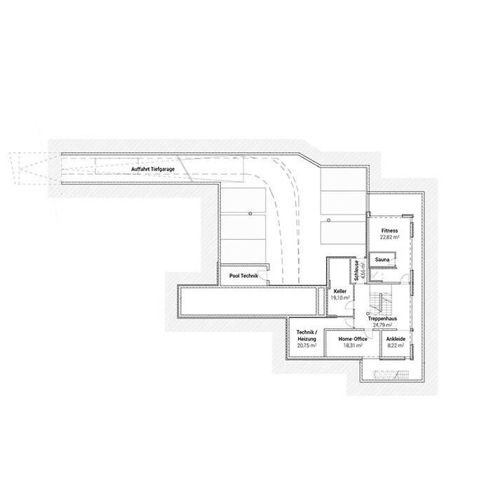
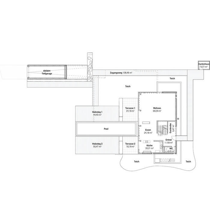
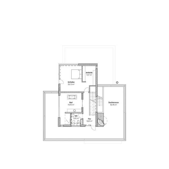
Wie man sich das immer so vorstellt: Ein Bauherr und ein Architekt planen gemeinsam ein Haus. Es wird mit ein paar Styroporklötzen experimentiert, verschiedene Varianten ausprobiert und wieder verworfen, bis eine Version passt. Etwas Großes sollte geschaffen werden – und es scheint gelungen zu sein. Der moderne Neubau im Münchner Westen weist einige Besonderheiten auf. Die Augenfälligste: Das Haus ist umringt von Wasser und ist sozusagen die moderne Ausgabe einer Burg mit einem Wassergraben – dabei handelt es sich jedoch lediglich um den Teich, der um das Haus herum angelegt ist. Für die wertvollen Fische, die der Bauherr dort hält, wurde eine spezielle Filtertechnik eingebaut. Die zweite Besonderheit ist das Haus selbst. Eine gestapelte Villa aus drei versetzt aufeinander getürmten rechteckigen Kuben in strahlendem Weiß bieten mannigfaltige Möglichkeiten für virtuose Grundrisse auf einer Nutzfläche von 522 m². Durch ihre Anordnung nach allen Himmelsrichtungen und ihre Auskragungen scheinen die einzelnen Kuben über dem Wasser zu schweben und so entstanden Terrassen, Austritte und Überdachungen. Das statische Konzept dieser ungewöhnlichen Bauweise war nur durch Stahlbeton und verbindende Alu-Glaskonstruktionen zu realisieren. Ein 15 m langer und 3 m breiter Pool aus Edelstahl beginnt im Erdgeschoss und erstreckt sich nach Süden vor dem Haus in Richtung Straße. Wunderschön ist der als Ergänzung zum alten Baumbestand gestaltete Garten der Landschaftsarchitektin Eva Weber. Eine Abfahrt mit abgeschrägtem Dach ist die Einfahrt zur Tiefgarage mit sechs Stellplätzen im 1. Untergeschoss. Auf derselben Ebene gibt es auch noch ein kleines Gästeapartment, eine Sauna und einen Fitnessraum. Das prächtigste Geschoss ist sicherlich das Erdgeschoss mit großzügigen Flächen für Küche, Esszimmer, Wohnraum und den Eingangsbereich. Holzbeplankte Flächen umgeben den Pool. Ein schmaler, hölzerner Steg führt zur Rückseite des Haues, wo der Eingang liegt. Im 1. Obergeschoss nimmt eine Holzterrasse gen Westen etwa ein Drittel der Gesamtfläche ein. Im Innern gibt es einen Luftraum, eine Galerie und zwei Schlafräume, eine Ankleide und zwei Bäder. Erst im Stockwerk darüber, dem etwas kleineren 2. Obergeschoss, liegt das Elternschlafzimmer, das Masterbad, eine weitere Ankleide und eine umlaufende Holzterrasse. Das Interieur des schwebenden Hauses besteht aus hochwertigen Materialien und teilweise individuell angefertigten Schreinerarbeiten. Smart Home Lösungen per KNX-Bussystem regeln das Lichtdesign, die Medien- und Gebäudetechnik sowie die Temperaturregelung des Pools. In der Tiefgarage befindet sich eine Ladestation für E-Mobilität. Auch ökologische Gesichtspunkte wurden nicht außer Acht gelassen: Eine Grundwasserpumpe und Solarpaneele sorgen für die regenerative Energieversorgung des Gebäudes. Aus der gelungenen Kooperation von Bauherr, Architekt und dem gesamten Team von Handwerkern und ausführenden Firmen entwickelte sich eine Idee aus Leidenschaft: Inzwischen entstanden zehn „Homes“ in ähnlicher Bauweise – jedes ist ein Unikat für sich.

www.home-graefelfing.de
www.abha.de

Wohnfläche: 522 m²
Grundstücksgröße: 1.705 m²
Bauweise: Stahlbeton
Energiekonzept: Grundwasserpumpe + Solarenergie

Fotos:

Christian Schranner
www.foto-craft.de

(Erschienen in CUBE München 03|21)

Architekten:

Architekturbüro Hoffmann und Amtsberg
www.abha.de

Dachdeckerei:

Walter Probst Bedachungen
www.probst-bedachungen.de

Estrich:

Laskowski Systemboden
www.hohlraumboeden.de

Fenster und Metallbau:

Harrer
www.harrer-heizung.de

Fliesen:

Alexandra Schweickardt
Telefon: 08243 960834

Landschaftsbau:

Deutschmann
www.galabau-deutschmann.de

Malerarbeiten:

MB Malermeister
www.mb-malermeister.de

Natursteinarbeiten:

Pollak Natursteine
Telefon: 08141 80051

Schlosserei:

Metallbau Posselt
www.posselt-metallbau.de

Teichbauer:

Teichbau & Teichtechnik Dollinger
www.teichbau-dollinger.de

Tischlerei:

Parkett Mahl
www.parkett-mahl.de

Parkett:

Fußböden Fleischmann
www.fussboden-fleischmann.de

Schwimmbad:

Polytherm
www.polytherm.at

Treppenbauer (Außentreppe):

Stadler Treppen
www.stadler.de

Fenster:

Schüco
www.schueco.com

Bodenbeläge (EG, Bäder), Armaturen, Sanitärausstattung:

Agape 32
www.agape32.de

Leuchten (innen/außen):

Delta Light
www.deltalight.de
Occhio
www.occhio.de
Bega
www.bega.com

Heizung:

Dimplex
www.dimplex.de

Schalter, KNX-Gebäudeautomation:

Busch-Jaeger
www.busch-jaeger.de

Küche:

Poggenpohl
www.poggenpohl.com

Küchentechnik:

Siemens
www.siemens-home.bsh-group.com
Miele
www.miele.de

Sauna:

Klafs
www.klafs.de

Nothing found.

Farbspektrum

Ein Business Club in Citylage setzt farbenreich auf Exzellenz und Vielfalt

Ein Teil des Waldes

Umbau einer Scheune zu einem modernen Rückzugsort

Passgenau am Bach

Eine geförderte Wohnanlage in Bergisch Gladbach ordnet sich kleinteilig in ihren Kontext ein

Ästhetik in jeder Hinsicht

Das Design einer oralchirurgischen Praxis vermittelt Ruhe, Kompetenz und Wärme

Nothing found.

2014-08-29-14_17_18-AW1_9772_700pixel

Keine wie die andere

Ein Treppenbauer aus Forstern fertigt individuelle Traumtreppen aus Stahl

Studium in Erlesener Umgebung

Erweiterung des Fresenius-Campus um zwei neue Pavillons

379_SF_210706_0342_HN_Jaist_19_700pixel

Urlaub im eigenen Garten

Hochwertiger Pavillon mit Pool schafft eine private Ruheoase

190320075_15_700pixel

Gelungene Lösung aus Holz

Dachaufstockung erweitert Innenräume und schafft großzügige Terrassen

heim-kuntscher-architekten_Hebertshausen_FH_02_15_700pixel

Rundumerneuert

Aus einer Kirchensanierung wird die Entwicklung eines durchdachten Gesamtensembles

_1060571_15_700pixel

Garten am Dorfbrunnen

Zur Freude der Alteingesessenen ist nun alles wieder fast wie früher

ACD1662_Sheet-2_2_700pixel

Idyll am See

Durch die Verschmelzung von Natur und Gebäude entsteht ein Gesamtkunstwerk

Understatement im Herzogpark

Wohnen für Anspruchsvolle in bester Lage