Ein Haus für eine Pianistin
Ein Klangkörper ganz aus Weißtanne
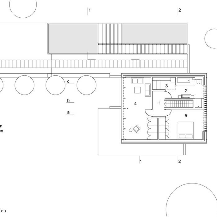
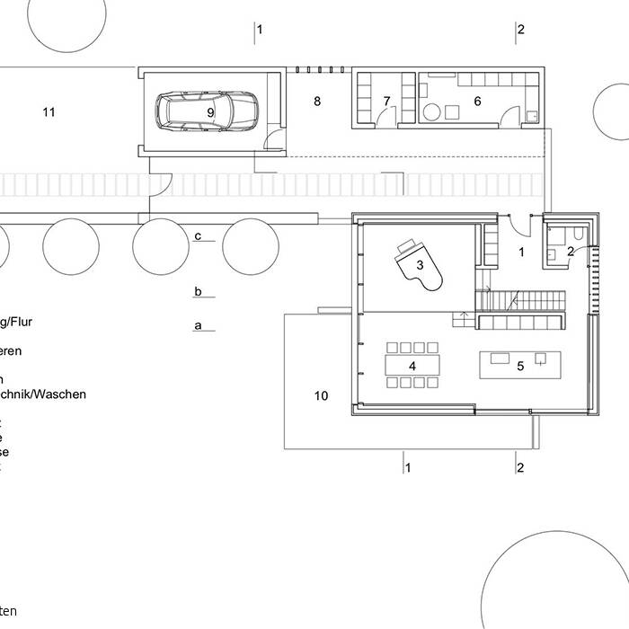
Bis die Bauherrin überzeugt war, ein Haus ganz aus Holz zu bauen, musste der Architekt sie erst zu einem Ausflug nach Vorarlberg überreden. Dort war sie schnell begeistert von der Kunst der Holzhandwerker. Zu den Bauarbeiten holte sie sich sogar Schreiner und Zimmerleute aus dem Bregenzerwald. Ein gar nicht so kleines Schmuckstück aus Holz hat der Münchner Architekt Stefan Bannert nach den Wünschen der Bauherrin dann am Stadtrand von München erbaut. Die Wunschliste war etwas ungewöhnlich, die Chemikerin und leidenschaftliche Musikerin wünschte sich ein Haus zum Musizieren und für die Proben mit dem Chor, den sie leitet. Dafür war es wichtig, dass Möglichkeiten integriert wurden, die eine stufige Aufstellung der SängerInnen möglich machte. So eignet sich die Stufe des erhöhten Essplatzes ideal für die Chorproben. Das Erdgeschoss hat einen offenen Grundriss und neben einem Gästebad lediglich eine Treppe zum ausgebauten Dachgiebel, wo sich Schlafmöglichkeiten befinden. Für eine Unterkellerung war der 1.000 m² Baugrund nicht geeignet, sodass das Haus auf einer Betonplatte steht. Die Wohnfläche durfte 100 m² nicht überschreiten. Mit dem Nebengebäude, das als Garage sowie Wasch- und Stauraum dient, ergibt sich eine Nutzfläche von insgesamt 130 m². Der Eingang zum Haus liegt im Norden und eine Terrasse über Eck im Westen und Süden.
Trotz karger Eleganz hat das Haus durch die Holzwände und -böden eine Wohlfühlatmosphäre. Boden, Wände und Decken sind aus Weißtanne gefertigt. Rohbau und Fenster wurden innerhalb nur einer Woche auf dem Betonfundament erstellt. Für die konstruktiven Teile verwendete man Fichtenholz. Für den Innenausbau kam wieder Weißtanne in Rift- und Halbriftschnitt zum Einsatz. Es wurde sogar ein Plusenergiestandard auf ökologisch und handwerklich höchstem Niveau erreicht. Der Grundwasserspiegel ist hier sehr hoch, was man sich für die Energiegewinnung zunutze machte. Die Energie für die Grundwasserwärmepumpe wird durch eine subtil eingebundene Photovoltaikanlage auf dem Hausdach erzeugt, die überschüssige Energie wird in das öffentliche Netz eingespeist. Das gesamte Gebäude wurde in Holzrahmenbauweise mit einer Holzwolledämmung errichtet. Zur Abdichtung der Fenster wurde statt Bauschaum Schafwolle verwendet. Die Außenhülle wurde komplett mit Aluminumblech verkleidet, bis auf die Glasflächen und die vertikalen Holzlamellen, die in die Außenwände eingepasst sind. Die Lamellen sind je nach gewünschter Lichtstimmung variabel einstellbar.
Fotos:
Matthias Kestel
www.matthiaskestel.de
(Erschienen in CUBE München 04|21)
