Multifunktional und flexibel
Werbeagentur ist wandelbar vom urbanen Workspace zum inspirierenden Eventspace
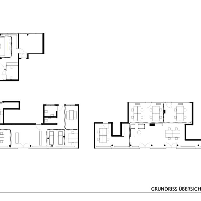
Mit Veranstaltungen wie Vorträge, Podiumsdiskussionen, Workshops und Ausstellungen möchte die Agentur 25 Jahre nach ihrer Gründung ihren neuen Dienstleistungen und Dialogformaten nicht nur verstärkt Platz geben, sondern sich auch öffnen und neue Impulse liefern. Dementsprechend konzipierte Seebald. Studio für Architektur & Gestaltung einen flexiblen Raum, der auf 466 m² einen schnellen Wandel vom urbanen Workspace zum inspirierenden Eventspace zulässt.
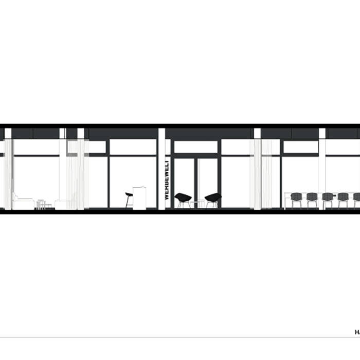
Die multifunktionale Fläche verteilt sich dabei auf drei Ladengeschäfte, die mit Aufputzleitungen und Sichtbetonoberflächen auf den ersten Blick sehr rau und improvisiert wirken. Feine Vorhänge aus strukturierten, weißen Textilien und große Kurzflorteppiche sorgen jedoch für eine (akustisch) angenehme sowie hochwertige Atmosphäre und zonieren einzelne Bereiche innerhalb des freien Grundrisses. Die unterschiedlich blickdichten und texturierten Vorhänge formen offene und geschlossene Räume, die sowohl diskreten Rückzug als auch flexible Geräumigkeit für ein kollaboratives Miteinander ermöglichen. Je nach Bedarf lassen sich so kleine und große Räume immer wieder neu (zusammen-)schließen, ohne sich vollkommen abzuschotten. Jeder der drei Läden legt einen besonderen Schwerpunkt: Während im Laden 1 der Fokus auf konzentriertem Arbeiten liegt, können im Laden 2 zwanglose Meetings und im Laden 3 wichtige Präsentationen und Termine stattfinden. Kleine Lounge-Inseln mit bequemen Sesseln ergänzen die jeweiligen Räume. Bei der Wahl der Möbel griff das Studio Seebald vorwiegend auf bereits Vorhandenes zurück und so fügen sich nun ausgewählte Stücke aus den vergangenen Agenturjahren – wie etwa die zeitlosen Holztische, -bänke und -regale – in das konsistente Raumkonzept ein und bilden markante Akzente bzw. warme Kontraste. Speziell angefertigt wurde der goldfarbene Empfangstresen, der als rollbares Möbel sowohl im Arbeitsalltag als auch bei Veranstaltungen zum Einsatz kommt. Hochpoliert und glänzend steht er für stolze Erhabenheit und symbolisiert stete Reflektion – eine Eigenschaft, die im Agenturbusiness besonders wertvoll ist. Weiße, raumhohe Einbaumöbel definieren einzelne Bereiche und bieten verschließbare Stauraummöglichkeiten, um den Raum visuell möglichst minimalistisch zu halten. Einige der weißen Wandflächen sind mit großformatigen, typografischen Kunstwerken und Illustrationen bespielt, was auch die Blicke vorbeigehender Personen anzieht. Generell ist das vorherrschende Spiel von Transparenz und Transluzenz von außen gut zu beobachten: Auch wenn auf Sichtschutz bewusst verzichtet wurde (lediglich Laden 3 lässt sich visuell komplett abschirmen), wechseln sich Glasfassade und gelb folierte Bereiche dynamisch ab und gewähren mal klaren, mal diffusen, aber immer gezielten Einblick in das Innenleben der Agentur.
Offen, flexibel und beweglich sind auch die etwa 40 Mitarbeitenden an sich: Seit Beginn 2020 können sie selbst entscheiden, ob sie von zu Hause, unterwegs oder vor Ort arbeiten wollen. Wer sich für die Agentur entscheidet, kann seinen Arbeitsplatz jeden Tag frei wählen. Persönliches wird über Nacht sicher in den Schließfächern verstaut.
Fotos:
David Frank
www.davidfranck.de
(Erschienen in CUBE Stuttgart 02|22)
