Ländliche Metamorphose

Ein alter Reitstall in Meerbusch verwandelt sich in lichtdurchfluteten Wohnraum

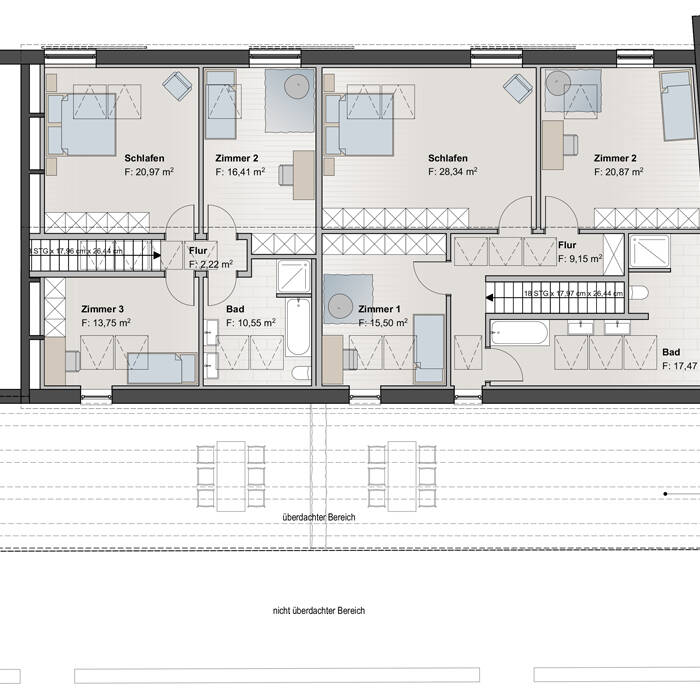
Aufgrund neuer Vorgaben zur artgerechten Tierhaltung an die Größe  von Ställen konnten die  historischen Pferdestallungen in einer denkmalgeschützten dreiflügeligen Hofanlage nicht länger weitergenutzt werden. Die Eigentümerin wollte sie deshalb in Wohnraum umwandeln, wobei gleichzeitig die alte Bausubstanz saniert werden sollte. Dem beauftragten Büro engels architektur aus Düsseldorf lag besonders daran, die traditionelle äußere Hülle und Tragstruktur weitgehend unverändert zu belassen, während im Inneren ein großzügiges Raumgefühl mit viel Tageslicht geschaffen wurde.
 
In Absprache mit dem Denkmalamt wurden in einem Teil der alten Reitställe zwei großzügige Wohneinheiten mit 160 und 180 m² auf zwei Etagen bis hin zum Spitzboden der alten Scheune geschaffen. Die Wohnungseingänge wurden dabei gezielt an die äußere Seite der Hofanlage platziert, um den fortwährenden Reitbetrieb nicht zu beeinträchtigen und zugleich einen „Haus im Haus“-Charakter zu erhalten. Um ausreichend Tageslicht in die Räumlichkeiten zu lassen, wurde ein Teil der benachbarten Scheune zum Außenbereich hin rückgebaut. Der erhaltene Teil der Scheune dient nun als Überdachung und schafft einen geschützten Terrassenbereich für die Wohneinheiten. Die Bewohner:innen können so den Innenhof genießen – mit Ausblick über die benachbarten Felder. Transparente Glasziegel im Terrassendach hellen nicht nur die Terrasse auf, sondern durchfluten auch die Räume der rückseitigen Nordfassade mit natürlichem Tageslicht. Nach Süden zum Innenhof hin ermöglichen dagegen großzügige Öffnungen eine visuelle Verbindung zum Reiterhof und schaffen eine offene und einladende Atmosphäre. Im Erdgeschoss sind großzügige, offene Bereiche für tägliche Aktivitäten wie Kochen, Essen und Wohnen entstanden, während im Obergeschoss die privaten Rückzugsorte geschaffen wurden. In einer der beiden Wohneinheiten strukturiert zudem ein zentraler Raumkern das Erdgeschoss und bildet einen funktionalen Knotenpunkt mit Treppe ins Obergeschoss, Gäste-WC und Hauswirtschaftsraum. Mit großem Respekt für die historische Bausubstanz wurden im Erdgeschoss die alte Kappendecke und die Stahlkonstruktion aufgearbeitet und eindrucksvoll in Szene gesetzt. Im Dachgeschoss blieben die alten Balken des außergewöhnlichen Dachstuhls an vielen Stellen sichtbar. Die Verwendung von warmen, naturverbundenen Materialien schafft in allen Räumen ein angenehmes Raumgefühl. In der angrenzenden Scheune wurde schließlich auf 80 m² ein Heizungsraum geschaffen, der die komplette Pellet-Anlage samt dem dazugehörigen Lagerbereich aufnimmt. Auch die drei, bisher über eine Ölheizung beheizten Mietwohnungen und das Herrenhaus des Hofes werden nun zentral von der neuen Heizungsanlage versorgt.

www.engels-architektur.de

Fotos:

Lioba Schneider
www.liobaschneider.de

(Erschienen in CUBE Düsseldorf 01|24)

Architektur:

engels architektur
www.engels-architektur.de

Heizung:

Stamos
www.stamos.de

Fassadensanierung:

Mustin Bausanierung
www.bausanierung-koeln.de

Putzarbeiten:

Stuckateurbetrieb Gerd Reingen
www.reingen-stuckateur.de

Innentüren und Schreinerarbeiten:

Tischlerei Mölleken
www.tischlerei-moelleken.de

Fenster:

Holzverarbeitung Guido Peters
www.holzverarbeitung-peters.de

Malerarbeiten:

Kissling – Maler- & Lackierbetrieb
www.maler-kissling.de

Parkett:

Markowski Parkett
www.parkett-markowski.de

Nothing found.

Nachhaltige Metamorphose

Das Büroensemble „Lyght“ in Golzheim erweitert und revitalisiert den Bestand aus den 1970er-Jahren

Harmonisch eingefügt

Neubau-Ensemble wahrt den historischen Bezug und entwickelt eigene Identität

Traditionell und Modern

Traditionell und Modern

Massivholzhaus ist der Publikumsliebling beim Rosenheimer Holzbaupreis

Nothing found.

PK1080-381_47_700pixel

Die Natur ins Haus holen

Ein Bungalow besticht durch seine großzügige Transparenz und vielfältigen Gartenperspektiven

Franke0317_15_700pixel

Öffentliches Wohnzimmer

Die neugestaltete Bibliothek Monheim greift den Gebäudebestand auch stilistisch auf

CG-Gruppe_UNT_19_700pixel

Neue Wohnvielfalt

UpperNord Tower: Düsseldorfs höchstes Wohnhochhaus soll Mitte 2022 fertig sein

IMG_5794_15_700pixel

Naturvielfalt als Kulisse

Ein Garten verzaubert durch Ausblicke und die gewonnene Lebenszeit seiner Pflanzen

_JDF8513_10_700pixelPCH9L8sHVZwGH

Klimawandel im Garten

Der Gartengestalter Peter Janke über Trocken- und Naturgärten und warum Bewässern keine Lösung ist

mo-living-19_15_700pixel

Lässig und unkonventionell

Serviced Apartments in Neuss bieten stylishes Interieur und Gemeinschaftsfeeling

WP0307_Hotel_Friends_201_15_700pixel

Manege frei für Individualisten

Im #hotelfriends begibt man sich auf hippe Zeitreise in die eigene Schulzeit

Ubisoft_Office_I9A4121_19_700pixel

Kreatives new work

Der Standort eines Spieleentwicklers in Flingern-Nord lässt keine Raumwünsche offen