Bin ich hier richtig?
Zahnarztpraxis überrascht mit dem einladenden Entree eines Wellnesshotels
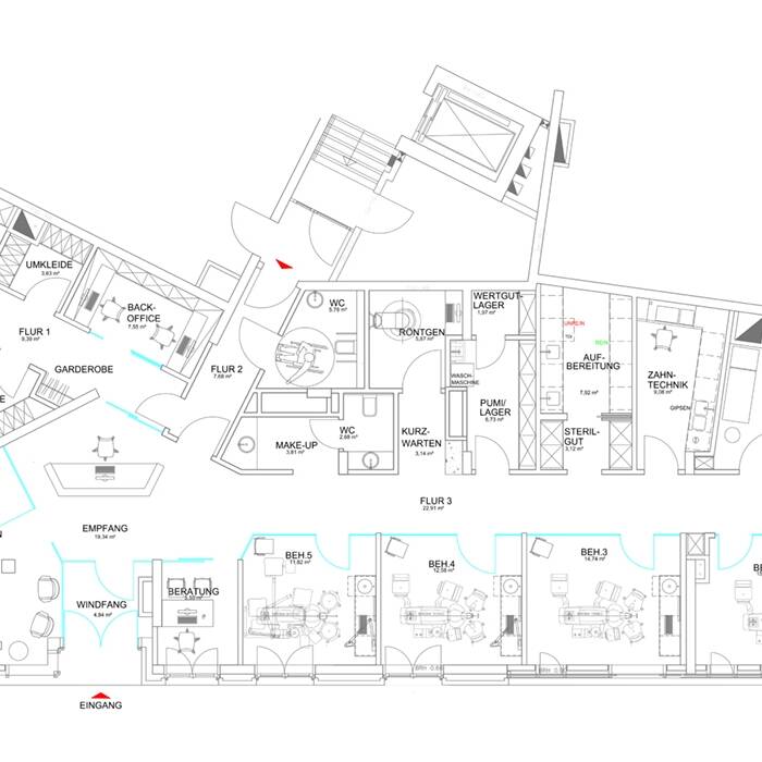
Niemand geht gerne zum Zahnarzt. Umso wichtiger, mit Räumlichkeiten aufzuwarten, die nicht ausschließlich nach Zahnarztpraxis aussehen. Denn gerade an einem solchen Ort ist es wichtig, eine Wohlfühlatmosphäre zu schaffen. Wie dies aussehen kann, zeigt die Praxis „Rheinweiss Zahnmedizin“ in Monheim. Direkt an der Rheinpromenade gelegen, wurde der ausgewählte Neubau von Göke Praxiskonzepte nach den Wünschen der Praxisinhaber Dr. Carina Teichmann-Golubovic und Dr. Vladimir Golubovic gestaltet.
„Unsere Praxis sollte hell und modern sein, großzügige Behandlungsräume bieten und im Eingangsbereich eher an ein Wellnesshotel erinnern“, erklärt Dr. Teichmann-Golubovic. Dabei war der rund 270 m² umfassende Grundriss bis auf einige Pfeiler und eine tragende Wand fast vollkommen frei gestaltbar. Allerdings stellte die sinnvolle Integration der Pfeiler eine Herausforderung dar – ebenso wie der längliche asymmetrisch verlaufende Grundriss sowie die Fensterflächen, die nur einseitig an den Außenwänden vorhanden waren. Um die Praxis dennoch wie gewünscht hell zu gestalten und das Tageslicht auch in die innen liegenden Bereiche fallen zu lassen, wurden großzügige Glaswände eingebaut.
In einem spannenden Kontrast zu den Glasflächen und dem zeitlos modernen Boden in Betonoptik stehen Holzelemente, welche die Länge des Flurs unterbrechen, auflockern und dabei jede Menge Wärme ausstrahlen. Der separate Personaleingang sowie der Eingangsbereich und das Wartezimmer mit großen Fenstern und Rheinblick lassen beim Betreten der Praxis tatsächlich eher an das Entree eines Wellnesshauses denken. Durchaus wohlfühlen lässt sich sogar in den großzügigen Behandlungsräumen, die alles andere als einengend sind.
Was die Praxis ebenfalls auszeichnet, ist ein streng getrennter Patienten- und Personalbereich. So wurde ein großer Aufenthaltsraum mit voll ausgestatteter Küche integriert, die das Praxisteam zum gemeinsamen Kochen in der Mittagspause einlädt. Ebenso mitarbeiterfreundlich sind die kurzen Laufwege zwischen den innen liegenden Räumen.
Die Corporate Identity der Praxis spiegelt sich in allen Räumen wider. Ein Beispiel hierfür ist die Welle aus dem Logo, die sich gleich im Eingangsbereich als Milchglasfolierung wiederfindet. „Da hochwertige, nachhaltige Zahnmedizin unser Credo ist, arbeiten wir umweltbewusst und achten auf unseren ökologischen Fußabdruck“, sagt Dr. Golubovic und fügt hinzu, dass sich dieser Anspruch auch im Design der Praxis widerspiegelt.
www.rheinweiss-zahnmedizin.de
www.goeke-praxiskonzepte.de
(Erschienen in CUBE Düsseldorf 02|20)
