Metamorphose im Hinterhof

Die alte Mälzerei eines früheren Brauhauses verwandelt sich in eine großzügige Wohnoase

_52A5175_15_700pixel

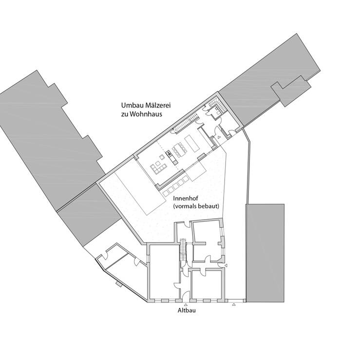
Hinterhoflagen für Wohnzwecke umzunutzen, ist kein leichtes Unterfangen. Vorhandene Bebauungen und Nutzungen, aber auch Nachbarschaftsrechte machen die Sache zu einer komplizierten baulichen Operation. Eine Machbarkeitsstudie hatte dennoch den Beweis erbracht, dass sich der nahezu komplett überbaute Hinterhof einer früheren Gaststätte in Innenstadtlage für den Bau eines größeren Einfamilienhauses eignet. E2 Architekten aus Meerbusch realisierten ein spannungsvolles Projekt, das innen und außen wie ein moderner Neubau aussieht, in dem jedoch tatsächlich ein komplexer Umbau steckt.

Das Gasthaus an der Ecke stammt aus dem 19. Jahrhundert, die Bauten eines Brauhauses im Hinterhof waren aus verschiedenen Jahrhunderten – darunter ein Vereinssaal, eine frühere Mälzerei und diverse funktionale Anbauten, die in der zweiten Hälfte des 20. Jahrhunderts realisiert worden waren. Allein das Gasthaus aus Backstein wies komplett eine erhaltenswerte Substanz auf und wurde entsprechend für eine weitere Wohneinheit umgenutzt und saniert. Nahezu alle anderen Bauten wurden dagegen zurückgebaut – bis auf die Mälzerei von 1867, deren Teilerhalt aus baurechtlichen Gründen geboten erschien: Zwei der vier Außenwände standen als Brandwände auf der Grundstücksgrenze. Um diese Lage beizubehalten, wurde der Rohbau samt des vorhandenen Kellergewölbes erhalten – wobei zugleich ein radikaler Umbau vorgenommen wurde, der von der ursprünglichen Gebäudesubstanz nichts mehr erahnen lässt. So konnte eine freigeräumte Hofsituation entstehen, wenn auch mit der damit verbundenen Herausforderung, die Belichtung des Gebäudes allein von Norden und Osten zu regeln. Der großzügige, kubisch zugeschnittene Baukörper mit einer gedämmten Putzfassade und anthrazitfarbenen Aluminiumfenstern schließt entsprechend zur Westseite direkt an die Nachbarbebauung an. Die Kubatur entspricht 1:1 der früheren Mälzerei – auch in der Höhe: Das weitläufige Wohnzimmer konnte so über zwei Geschosse geführt werden, wobei die Belichtung über eine 6 m hohe, nach Osten ausgerichtete Fensterfront erfolgt. Eine Überhitzung der Glasfront wird einerseits durch außenliegenden Sonnenschutz, andererseits von den näheren Umgebungsbauten verhindert. Ein offener Tunnelkamin trennt den Wohnbereich von Küche, Essbereich und dem separierten Entree. Nach Norden hin verbinden Panoramafenster die Räume mit der Außenterrasse und dem begrünten Außenbereich des Hofes. Mit großer Geste springt über dem Obergeschoss das mit weißen Aluminiumplatten bekleidete Staffelgeschoss zurück: Die markante, weit hervorkragende, massive Dachplatte scheint dabei über dem Gebäude frei zu schweben. Hier befindet sich die Elternetage kombiniert mit einer weitläufigen über Eck geführten Dachterrasse, von der aus man einen großartigen Blick über die Dächer der Stadt genießt.

www.e2architekten.de

Wohnfläche: 220 m²
Grundstücksgröße: 608 m²
Bauzeit: 13 Monate (davon 3 Monate Rückbau)
Energiekonzept: Brennwerttherme mit Fußbodenheizung
Bauweise: Massivbauweise

Fotos:

Michael Reisch
www.michaelreisch.net

(Erschienen in CUBE Düsseldorf 03|21)

Architekten:

E2 Architekten
www.e2architekten.de

Rohbau:

Bauunternehmung Bernd Tichlers
www.tichlers.de

Dach, Alucobondfassade:

W. Kuhlkamp
www.kuhlkamp-dach.de

WDVS, Innenputz, Trockenbau:

Gerd Reingen
www.reingen-stuckateur.de

Fenster:

Plan-B
www.planb-metallbau.de

Parkett:

Parkett Strehl
www.parkett-strehl.de

Fliesen:

Brauckmann Fliesen
www.brauckmann.com

Maler:

Franz Menke
www.menke-malereibetrieb.de

Leuchten (innen/aussen):

Bega
www.bega.com
Delta Light
www.deltalight.de
Paulmann
www.paulmann.com

Fenster:

Schüco
www.schueco.com

Verschattung:

Warema
www.warema.de

Türen (innen):

Dextüra
www.dextuera.de

Heizung:

Buderus
www.buderus.de

Fliesen:

Living Ceramics
www.livingceramics.com

Schalter/KNX-Gebäudeautomation:

Gira
www.gira.de

Armaturen:

Grohe
www.grohe.de

Sanitärkeramik:

Duravit
www.duravit.de
Ideal Standard
www.idealstandard.de

Bodenbelag, Stufen (außen):

Schellevis
www.schellevis.nl

_52A2077_15_700pixel

Dynamisches Spiel der Kuben

Ein Einfamilienhaus in Angermund optimiert mit seiner plastischen Fassade die baurechtlichen Vorgaben

_52A9545_19_700pixel

Perfekt Detailliert

Ein Autohaus in Meerbusch fügt sich formvollendet in eine schwierige Ausgangssituation

image001_15_700pixelpL9K2XUkHtPaW

Reaktivierte Bausubstanz

Das alte Rathaus in Meerbusch wurde denkmalgerecht modernisiert und erweitert

12799807px1920x1280_15_700pixel

Scharfkantig eingefügt

Ein Einfamilienhaus reflektiert den dörflichen Kontext und wirkt dabei doch ganz modern

_52A1589-1_19_700pixel

Wohnvielfalt im Grünen

Drei Wohnhäuser in Stockum bieten einen maximalen Wohnungsmix und bilden doch ein Ensemble

Ort der Begegnung

Das neue Pfarrheim Mariä Himmelfahrt in Miesbach prägt ein Kontrast aus Modernität und Tradition

Preziose unterm Dach

Ein Spitzboden in einem Mehrfamilienhaus in Essen-Rüttenscheid wird zum Vorzeigeprojekt

Vergangenheit & Zukunft

Modellprojekt zeigt, wie sakrale Bestandsarchitektur transformiert werden kann

_52A2077_15_700pixel

Dynamisches Spiel der Kuben

Ein Einfamilienhaus in Angermund optimiert mit seiner plastischen Fassade die baurechtlichen Vorgaben

_52A9545_19_700pixel

Perfekt Detailliert

Ein Autohaus in Meerbusch fügt sich formvollendet in eine schwierige Ausgangssituation

image001_15_700pixelpL9K2XUkHtPaW

Reaktivierte Bausubstanz

Das alte Rathaus in Meerbusch wurde denkmalgerecht modernisiert und erweitert

12799807px1920x1280_15_700pixel

Scharfkantig eingefügt

Ein Einfamilienhaus reflektiert den dörflichen Kontext und wirkt dabei doch ganz modern

_52A1589-1_19_700pixel

Wohnvielfalt im Grünen

Drei Wohnhäuser in Stockum bieten einen maximalen Wohnungsmix und bilden doch ein Ensemble

Lebhaftes Lichtspiel

Errichtung eines Kolumbariums in einem Teilbereich der Friedhofskapelle

Das Plus Inklusivität

Das Interior des neuen Tribe Hotels am Hauptbahnhof möchte Gleichgesinnte zusammenbringen

Kai8B_06_RalphRichter_19_700pixel

Kubus der Möglichkeiten

Ein neues Hauptquartier im Medienhafen beeindruckt durch Transparenz und Klarheit

2099_Thelen_Ref14_M01_HEsRGB_15_700pixel

Mit einer Prise Extravaganz

Stimmiges Gesamtkonzept für charmanten Altbau

_52A3824_15_700pixel

Räume wie Membrane

Ein durchdachtes Raumkonzept garantiert einem Zweifamilienhaus Ruhe und Privatsphäre

Ab(tauchen) in den Feierabend

Stadthaus mit neuem Garten und großzügigem Pool

Nordstrasse-1_15_700pixel

Minimalinvasiv

Bestandsgebäude in Meerbusch erhält durch kleine Ergänzungen ein völlig neues Gesicht

Plastisch gefügtes Ensemble

In Gerresheim verbindet eine genossenschaftliche Wohnbebauung Qualität mit Bezahlbarkeit