Kommunikation erwünscht
Ein neues Seminargebäude in Bochum dient Lehrenden und Studierenden als Experimentierraum
Seit 2019 bereiten sich die Studierenden der Fachbereiche Architektur und Bauingenieurwesen der Hochschule Bochum in einem neuen Seminargebäude auf ihre berufliche Laufbahn vor. Der Grundstein für den Neubau wurde 2013 gelegt, als der Bau- und Liegenschaftsbetrieb NRW Dortmund als Bauherr und Eigentümer einen Generalplaner-Wettbewerb ausschrieb. Die Aufgabe für die Wettbewerbsteilnehmer: Förderung und Intensivierung der Kommunikation untereinander, sodass aus dem „Nebeneinander“ der Fachbereiche ein intensives „Miteinander“ wird. Die strenge Einteilung in Einzelbüros und abgeschlossene Seminarräume sollte daher in Teilen überwunden werden. Netzwerkarchitekten aus Darmstadt entschieden den Wettbewerb unter 24 Teilnehmern für sich und realisierten das Projekt in der Folge als Generalplaner.
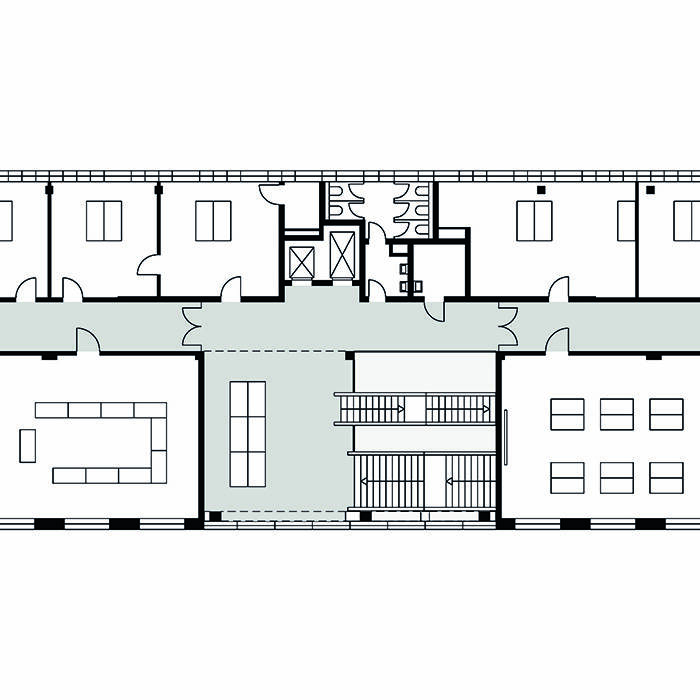
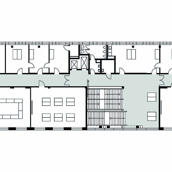
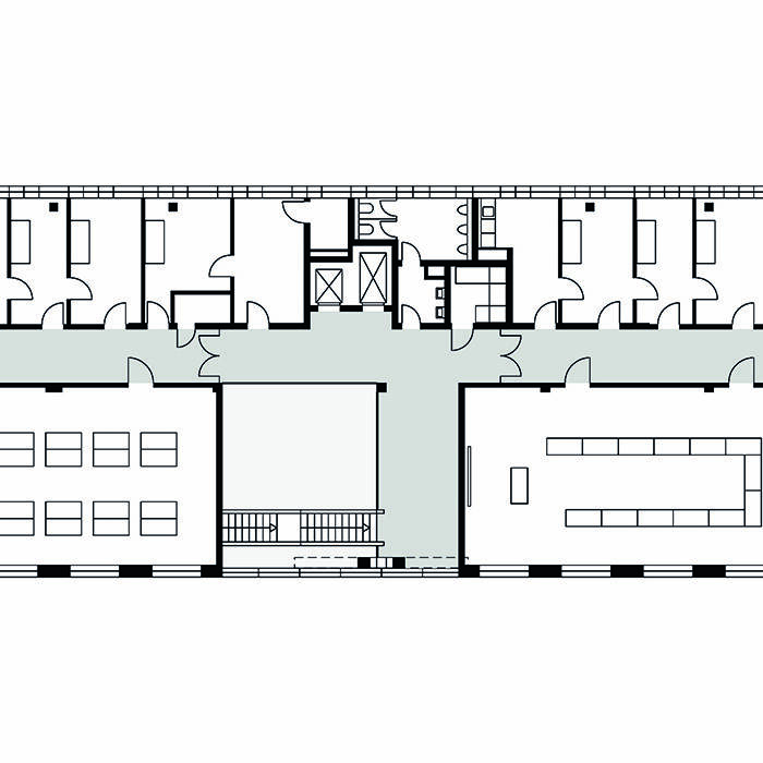
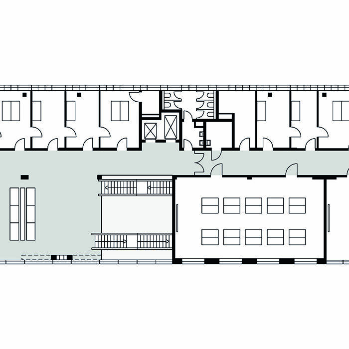
Der Neubau für das Seminargebäude ist parallel zur BlueBox an der Lennershofstraße positioniert, wobei dazwischen ein neuer Platz entstanden ist. Diesere hat eine hohe Aufenthaltsqualität und bildet das Entrée der beiden Gebäude. Weiterhin kann er als Ort zum Studieren im Freien, als Treffpunkt zwischen Vorlesungen und Seminaren oder auch als Veranstaltungsplatz dienen. Um den zentralen ÖPNV-Anschluss zu ermöglichen, führt vom Platz aus ein diagonaler Weg zur nördlich gelegenen Haltestelle. Der lichtdurchflutete Neubau erstreckt sich über sechs Etagen und ist in zwei parallele Raumbereiche zoniert. Im Westen sind in kompakter Anordnung die einzelnen Lehrstühle positioniert. Nach Osten fügen sich die Seminarräume an, die über ein geschossübergreifendes Atrium mit Treppen und Kommunikationsplattformen vertikal miteinander verbunden sind. Die Plattformen dienen als erweiterte Lehr- und Forschungsflächen und werden wie selbstverständlich zu Begegnungszonen, die die Kommunikation und den Austausch fördern. Entsprechend der räumlichen Zonierung im Neubau ist das Tragwerk in seiner Effizienz in zwei Bereiche aufgeteilt: Der im Westen gelegene Büroriegel ist mit Flachdecken und einem klaren Stützenraster aufgebaut. Die Decken werden zur östlichen Fassade in Richtung des Platzes über ein netzartiges Tragwerk gehalten. Dieses verbildlicht die Vernetzung der Fachgebiete und ist zugleich Symbol für die Leistungsfähigkeit und Synergien der Fachbereiche Architektur und Bauingenieurwesen. Der mittig platzierten Atriumtreppe schließen sich zwei stirnseitig positionierte Fluchttreppenhäuser an. Neben der natürlichen Belüftung über die Fenster verfügen die Seminarräume ergänzend über eine zentrale Lüftungsanlage, um den erhöhten AMEV-Anforderungen zu entsprechen. Die Lüftungsanlage wird im Sommer auch zur Nachtauskühlung der offenen Speichermassen in den Seminarräumen genutzt. Das Gebäude ist an das bestehende Fernwärmenetz der Hochschule Bochum angeschlossen.
Fotos:
Jörg Hempel, Aachen
www.joerg-hempel.com
(Erschienen in CUBE Ruhrgebiet 04|20)
