Wohnen mit Weitblick

Einfamilienhaus im Neubaugebiet mit geschützten Bereichen und vielfältigen Ausblicken

VSB_2018-07-26_169_15_700pixel

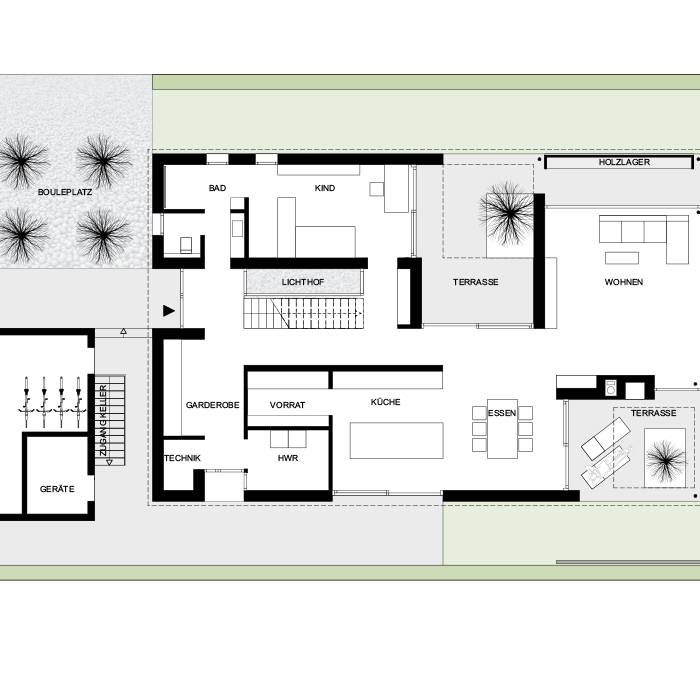
Wohnen in einem Neubaugebiet ist oft mit beengten Platzverhältnissen zu den Nachbargebäuden verbunden. Ruhige Rückzugsorte und die eigene Privatsphäre sind ein seltenes Gut. In einem Neubaugebiet in Nordheim nahe Heilbronn entstand ein Einfamilienhaus, das diesen Spagat schafft. Durch die geschickte Grundrissplanung von Mattes + Eppmann Architekten stehen im ganzen Haus verschiedene Bereiche zur Verfügung, die vor Einblicken schützen und gleichzeitig Ausblicke in die Weite der Landschaft ermöglichen. Nach außen wirkt das Haus introvertiert. Im Inneren hingegen bieten helle Räume mit reizvollen Blickbeziehungen eine außergewöhnliche Wohnqualität.

Wohnen mit Weitblick findet sich auch in der Grundrissplanung wieder. Das Haus ist so strukturiert, dass eine spätere horizontale Trennung in zwei Wohneinheiten problemlos möglich ist. Im Erdgeschoss hat man einen separaten Eingang auf der Westseite und kann barrierefrei wohnen. Das Obergeschoss wird über den jetzigen Eingang erschlossen. Beide Wohnungen bieten mit ihren drei Zimmern exklusives Wohnen mit großzügigen Außenbereichen. Die Grundrissgestaltung folgt den Prinzipien einer Stadt mit ihren Wegen und Plätzen. Der Flur im Erdgeschoss wird zum Weg entlang eines Skulpturengartens. Vorbei am östlichen Innenhof auf der einen Seite und dem Essbereich auf der anderen gelangt man ins große Wohn- und Kaminzimmer. Durch allseitig bodentiefe Fenster bietet dieser Teil des Hauses einen maximalen Bezug zum Außenraum und geht fließend in den klar und geradlinig angelegten Garten über. Verschiedene Innenhöfe bringen Licht in die Mitte des Gebäudes und erlauben spannende Sichtbeziehungen nach außen. Im Obergeschoss ermöglichen sie geschütztes Ruhen und durch die vollflächige Verglasung viel Tageslicht bei höchstmöglicher Intimität im Badezimmer.

Mit Weitblick wurden bei der Planung auch die Haustechnik und Baumaterialien ausgewählt. Die Ökologie des Hauses war ein wichtiger Planungsaspekt. Basierend auf dem KfW 55-Standard hat das Gebäude eine Solaranlage, die den Strom für die Luftwärmepumpe liefert. Im Endausbau kann das Gebäude energieautark betrieben werden. Zudem wurde eine Lüftungsanlage mit Wärmerückgewinnung eingebaut. Errichtet wurde es als Mauerwerksbau aus Porotonziegeln mit Dämmfüllung.

www.m-e-architekten.de

(Erschienen in CUBE Stuttgart 03|19)

Architekten:

Mattes + Eppmann Architekten
www.m-e-architekten.de

Holzbau:

Heyd Zimmerei – Holzbau
www.zimmerei-heyd.de

Holzfenster:

Schilpp Fenster- und Türenbau
www.fensterbau-schilpp.de

Putz- und Stuckarbeiten, Gipser:

Hans Scholl
www.scholl-stukkateur.de

Elektro:

Weber – Elektro u. Solaranlagen
www.webergmbh-elektro.de

Maler:

Heinrich Schmid
www.heinrich-schmid.com

Schlosser:

Metallbau Stigler
www.metallbau-stigler.de

Sonnenschutz:

Jürgen Seybold Sonnenschutz
www.seybold-sonnenschutz.de

Fotos:

Victor Brigola
www.victorbrigola.com

Nothing found.

Individualität im System

Grundschule verbindet Planungs- und Fertigungseffizienz mit zeitgemäßer Gestaltung

Harmonie mit Liebe zum Detail

Farbkonzepte und Kunstobjekte für ansprechende Praxisräume in Moabit

Wohnraum durch Wandel

Verblüffende Metamorphose – vom „Diskreten Haus“ zum mehrgeschossigen Wohnhaus

Nachhaltig mit Konsequenz

Ein Klimaunternehmen setzt auf Flexibilität und wiederverwendbare Materialien

Nothing found.

PH_0067-17_RGB_15_700pixel

Alt und Neu klar erkennbar

Kleinteiliger Bestandsgrundriss wandelt sich zu fließenden und offenen Wohnräumen

31-Fuchs-Wacker-Architekten-Haus-BOP-Stuttgart_47_700pixel

Eins sein

Natur und Architektur verbinden sich bei diesem Haus am Hang wie selbstverständlich

001___15_700pixel

Modernes Kaffeemühlenhaus

Zweifamilienhaus auf fünf Ebenen in steiler Hanglage mit vielfältigen Außenbereichen

Alles andere als schräg

Ungewöhnliches Wohnhaus aus den 1960er-Jahren wurde mit wenigen Eingriffen zukunftsfit

25_19_700pixelQqwnb6Et5b8ZL

Erhellend anders

Neues Lichtkonzept unterstreicht die Architektur und sorgt für ein einladendes Ambiente

VSB_2020-02-21_081_15_700pixel

Oase im Knotenpunkt

Ein Hotel der kurzen Wege für Konferenzen, Präsentationen und Messebesuche

2020_-Studio-Komo-Thorit2833-Komp_19_700pixel

Vielfalt in Raum und Funktion

Individuell zugeschnittene New-Work-Arbeitswelt für eine Technologieagentur

2832_210115_11_15_700pixel

Behutsam erweitert

Integrierende Architektur, die in der Verbindung zur Vergangenheit Gegenwart schafft