Räume wie Membrane

Ein durchdachtes Raumkonzept garantiert einem Zweifamilienhaus Ruhe und Privatsphäre

_52A3824_15_700pixel

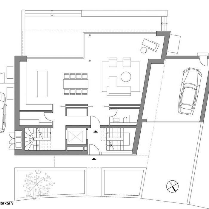
Zwänge und Herausforderungen kreativ zu meistern, zählt zum Rüstzeug eines guten Architekten. Bei einem Stadthaus im Düsseldorfer Osten entpuppte sich die Lage als besonders verzwickt: Das freistehende Grundstück liegt durchaus malerisch an der Kurve einer kleinen Anliegerstraße in einer Bestandssiedlung. Schon auf der gegenüberliegenden Straßenseite erweist sich die städtebauliche Situation aber als deutlich ambivalenter: Ein Parkplatz, den die Gäste einer benachbarten Gastwirtschaft oft nutzen, und einige Sichtmeter weiter eine große Straßenkreuzung sorgen für ein permanentes, tags wie nachts vernehmbares Verkehrsgrundrauschen. Georg Döring Architekten aus Düsseldorf, die mit dem Entwurf bis hin zur detaillierten Ausführung des Hauses und der Außenräume beauftragt wurden, entwickelten ein zweigeschossiges Zweifamilienhaus. Mit einem konsequent zonierten Raumkonzept begegnet es geschickt den Herausforderungen des Grundstücks.

Die plastische Komposition des Hauses ist durch die Verschneidung zweier kubischer Volumen geprägt. Den ersten Eindruck bestimmt die geschlossene, skulpturale Fassade mit reduzierten Öffnungen – nur der Eingang und ein weiteres Fenster prägen die Hauptansicht. Der verwendete helle Klinker, das als hervorkragendes Sichtbetonbauteil ausgeführte Vordach sowie die bronzefarbenen Fensterprofile vermitteln zwischen den beiden direkten Nachbarbauten, die einerseits weiß verputzt, andererseits dunkelbraun verklinkert sind. Auf die geschlossene, monolithisch wirkende Straßenfront ohne jegliche Gebäudeversprünge oder Geschossbänder antwortet gartenseitig eine mehrfach abgestufte Kubatur: Großzügig auf allen Ebenen öffnet sich hier das Haus mit raumhohen Fensterschiebeelementen zum südlich bzw. östlich orientierten Außenraum. Es entstehen Austrittsmöglichkeiten mit weitläufigen Terrassen und Ausblicken in den Grünraum.

Die Hauptwohnung entfaltet sich über drei Geschosse, die zweite Wohneinheit liegt als Apartment im Dachgeschoss situiert. Dabei wird das insgesamt 380 m² Wohnfläche umfassende Gebäude durch ein übergeordnetes Raumkonzept besonders strukturiert: Durch das Gebäude ziehen sich drei unterschiedliche Funktionsschichten aus dienenden und bedienten, offenen und eher geschlossenen Räumen. Diese Zonen verlaufen wie Membrane über alle drei Etagen in paralleler Entwicklung: Die erste Membran liegt zur Straße situiert und umfasst die Erschließung mit zwei separierten Treppenhäusern und einem beidseitig sich öffnenden Aufzug. Die zweite, mittlere Membran nimmt Vorratsküche, Garderobe und Gäste-WC im Erdgeschoss, Gästezimmer, Ankleide und Büro im 1. Obergeschoss sowie Bad und Küche im Dachgeschoss auf. Die dritte Membran ist schließlich dem eigentlichen Aufenthalt vorbehalten: Wohnen, Essen und Schlafen liegen mit ihren zugehörigen Außenterrassen komplett an der Gartenfassade situiert – weit entfernt von der Straße und ihren akustischen Beeinträchtigungen.

Beheizt wird das Haus über eine Luftwärmepumpe, die flächenoptimiert auf dem Flachdach installiert werden konnte. Die Belüftung der Innenräume erfolgt gartenseitig über die Fensterfronten – und das sogar im geschlossenen Zustand: In den Fensteranlagen sorgen schmale vertikale Klappen, die mit Mückenschutzgittern versehen wurden, für eine optimale Durchlüftung der Räume.

www.doering-architekten.de

Fotos:

Michael Reisch
www.michaelreisch.net

(Erschienen in CUBE Düsseldorf 03|21)

Architekten:

Georg Döring Architekten
www.doering-architekten.de

Rohbau, Fassade:

Jacobs Wohnbau
www.jacobs-wohnbau.de

Bedachung:

Kohlen
www.kohlen.de

Elektro, Licht:

Thoma Elektroanlagen
www.thoma-elektroanlagen.de

Schlosser:

Ervenich Schlosserei & Bauelemente
www.schlosserei-ervenich.de

Aufzug:

Otis
www.otis.com

Sauna:

Klafs
www.klafs.de

Alufenster, Sonnenschutz:

Metallbau Schilloh
www.metallbau-schilloh.de

Schreinerarbeiten:

Tischlerei Clemens
www.tischlerei-clemens.de

Garten- und Landschaftsbau:

Zanders Garten- und Landschaftsbau
www.zanders-gartenbau.de

AA7A0145_10_700pixel

Individuell und detailreich

Ein Gespräch mit dem Düsseldorfer Architekten Georg Döring über Einfamilienhäuser, Lehrer und Väter

_52A2799_15_700pixel

Kubus mit Überraschung

Ein reduzierter Kubus, der im Inneren jedoch alles andere als statisch wirkt

Luftiges Raumwunder

Luftiges Raumwunder

Eine klassische Doppelhaushälfte im Linksrheinischen öffnet sich großzügig nach innen

Wohnen mit Gemeinsinn

Die „Villa Pillebach“ in Gerresheim verbindet individuelles Wohnen mit einer klaren Form

Farbspektrum

Ein Business Club in Citylage setzt farbenreich auf Exzellenz und Vielfalt

Ein Teil des Waldes

Umbau einer Scheune zu einem modernen Rückzugsort

Passgenau am Bach

Eine geförderte Wohnanlage in Bergisch Gladbach ordnet sich kleinteilig in ihren Kontext ein

Ästhetik in jeder Hinsicht

Das Design einer oralchirurgischen Praxis vermittelt Ruhe, Kompetenz und Wärme

AA7A0145_10_700pixel

Individuell und detailreich

Ein Gespräch mit dem Düsseldorfer Architekten Georg Döring über Einfamilienhäuser, Lehrer und Väter

_52A2799_15_700pixel

Kubus mit Überraschung

Ein reduzierter Kubus, der im Inneren jedoch alles andere als statisch wirkt

Luftiges Raumwunder

Luftiges Raumwunder

Eine klassische Doppelhaushälfte im Linksrheinischen öffnet sich großzügig nach innen

Wohnen mit Gemeinsinn

Die „Villa Pillebach“ in Gerresheim verbindet individuelles Wohnen mit einer klaren Form

_MGL3243-Kopie_15_700pixel

Grosszügige Licht- und Lufträume

Die LVR-Kurt-Schwitters-Schule in Gerresheim wurde zu einem neuen Ensemble erweitert

Behutsam modernisiert

Ein denkmalgeschütztes Stadthaus in Unterbilk wird zur passgenauen Wohn- und Arbeitswelt

Plastisch gefügtes Ensemble

In Gerresheim verbindet eine genossenschaftliche Wohnbebauung Qualität mit Bezahlbarkeit

DSC09400_42_700pixel

Unvermuteter Umbau

Ein altes Wohnhaus in Gerresheim erneuert sich von Innen

Wohnhaus_Wohnzimmer_2_15_700pixel

Licht und Schatten

Das Interior einer Stadtvilla besticht im Konzept und seinen gestalterischen Details

ZUR-Eroeffnung-032021-5094_15_700pixel

Ein etwas anderer Supermarkt

Hauptgrund für die Sanierung und Umbau des Lebensmittelmarktes Zurheide war vor allem der Nachhaltigkeitsaspekt.

Subtiles Fassadenspiel

Ein neues Büro- und Geschäftshaus am Joachim-Erwin-Platz ist transparent und plastisch zugleich

KRESINGS_WERFT_NilsKoenning_4_15_700pixel

Gemeinschaft als Leitprinzip

New Work und Wir-Gefühl prägen einen markanten Büroumbau in Heerdt