Wie ein leichtes Tuch
Ein Spiel von Licht und Schatten lässt die Fassade flattern
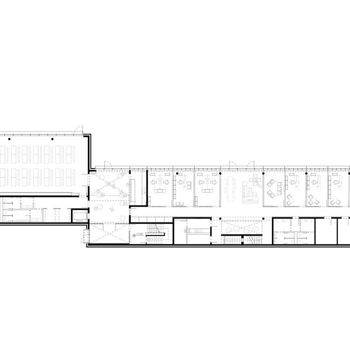
Die Fassade des Verwaltungsgebäudes der Nordwestdeutschen Textil- und Bekleidungsindustrie ist ein Paradebeispiel für die faszinierende Wirkung, die eine Ziegelfassade haben kann. Bereits von außen wird ersichtlich, dass Stoff inhaltlich eine tragende Rolle spielt. Die Idee, dieses Thema durch die Komposition des Ziegelmauerwerks bereits von außen aufzunehmen, stammt von Architekt Roland Bondzio und seinem Team und wurde mit beeindruckender Präzision umgesetzt. Die Fassade wirkt auf den Betrachter wie ein leichtes Tuch, über das sanft der Wind streicht.
Als Inspiration für die „Stofffassade“ diente behet bondzio lin architekten der täuschend echt aussehende Alabaster-Faltenwurf der Beethoven-Statue von Max Klinger, die im Leipziger Bildermuseum steht. Max Klinger hat hier eine paradoxe Wahrnehmung geschaffen. Der Betrachter sieht ein scheinbar fließend leichtes Tuch über den Knien von Beethoven und erkennt zugleich, dass es aus massivem Stein besteht. Allein diesen Eindruck auf eine Ziegelfassade zu übertragen, bedurfte eines ausgeklügelten Planungsprozesses, der über ein eigens geschriebenes Computerprogramm erfolgte. Sieben verschiedene Ziegelgrößen wurden eigens angefertigt, um den gewünschten optischen Effekt erzielen zu können, der im Wesentlichen auf dem unterschiedlichen Schattenwurf der einzelnen Steine beruht. Verbaut wurden schließlich 74.000 speziell angefertigte Steine auf einer Fassadenfläche von 1.300 m², die die Maurer einzeln an ihre zuvor errechnete Position setzten.
Die von Süden kommenden Besucher treffen nun auf eine geschlossene Fassade mit dem beeindruckenden Mauerwerk. Nach Norden hin öffnet sich das Gebäude und ermöglicht den Mitarbeitenden des Textilverbandes den Ausblick in den angrenzenden malerischen Landschaftsraum. Alle Räume sind gut mit Tageslicht versorgt, ein extra Sonnenschutz ist nicht erforderlich. Mit der Ausrichtung nach Norden wurde die Basis für ein energieoptimiertes Bürogebäude geschaffen, das dem Standard eines KfW-Effizienzhauses 55 entspricht.
Fotos:
Thomas Wrede VG-Bild-Kunst, Bonn
www.thomas-wrede.de
bondzio lin architects
Hey-Sign, Fotografie: Reimund Braun
(Erschienen in CUBE Ruhrgebiet 04|21)
