Alles unter einem Dach
Die neue Gesamtschule am Severinswall besticht durch die großzügige plastische Geste
Schulgebäude sind mehr als nur funktionale Bauten. Sie sind ein wichtiger Baustein des Stadtgefüges und als solcher bilden sie eine unverwechselbare Typologie in der Stadt. Langlebig und robust, verkörpern sie auch die Haltung, die eine Gesellschaft gegenüber der Zukunft einnimmt. Als Gebäude im Umgang mit elementaren architektonischen Themen, wie Raumform, Materialität und Licht, sind sie letztendlich auch Bestandteil der pädagogischen Inhalte. Die Fritz Meyer Gruppe als Totalunternehmer und Molestina Architekten + Stadtplaner haben nach einer TU-Ausschreibung der Gebäudewirtschaft der Stadt Köln den Zuschlag für den Neubau der Integrierten Gesamtschule am Severinswall erhalten. Nach zwei Jahren Bauzeit wurde die Gesamtschule mit Zweifachturnhalle im August fertiggestellt und das Ensemble mit insgesamt rund 7.000 m² Schul- und Sporthallenflächen an die Schüler:innen und Lehrer:innen der Sekundarstufe II übergeben.
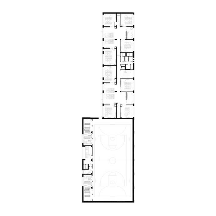
Der dreigeschossige Schulneubau schafft eine klare städtebauliche Kante am Severinswall und lässt so viel Platz wie möglich für den Pausenhof im Hinterhofbereich frei. Tonnendächer knüpfen an Elemente von Schulbauten der Kölner Südstadt an, verleihen dem Gebäude Identität und bieten ein klares Bild mit prägnanter Aussagekraft. Auch der Abstand zu den Nachbargebäuden betont die Eigenständigkeit des Schulgebäudes und schafft eine markante Präsenz an der Straße. Die heterogene Nachbarschaft bekommt so einen weiteren Baustein, der sich verträglich in das allgemeine Stadtgefüge eingliedert. Der dreigeschossige Baukörper besteht dabei aus einem Schul- und einem Sporthallentrakt mit zwei separaten Eingängen, die eine flexible zeitliche Nutzung von Schule und Sporthalle möglich machen. Die Außenfassade ist mit Klinkern bekleidet. Ein sich davon abhebendes Fliesenmosaik am Haupteingang betont die Nachbarschaft der Schule zum Rhein. Akzentflächen im Bereich der Eingänge sind ebenfalls gefliest und nehmen die Farben des Mosaiks auf. Fensterbänder und eine großzügige Verglasung des Haupttreppenhauses ermöglichen lichtdurchflutete Innenräume und schaffen so eine Verbindung zwischen Innen und Außen.
Im Gebäudeinneren sind Sichtbeton und Holz die vorherrschenden Baustoffe, die dem Gebäude Wärme und Solidität verleihen. Um die Wirkung der verschiedenen Materialien zu betonen, ist die Farbgestaltung bewusst reduziert: Farbakzente werden in der Raumbeschilderung und bei bestimmten Wandelementen gezielt benutzt. Ansonsten schafft vor allem die familiäre Maßstäblichkeit der Schule eine optimale Orientierung. In der Sporthalle und in den Clustern des zweiten Obergeschosses des Schulbaus schaffen die Tonnendächer einzigartige Räume für Unterricht und Sport.
Im Erdgeschoss erlauben Schiebetüren und Wandelemente die Eingangshalle und das pädagogische Zentrum für besondere Veranstaltungen, seien es Schulfeste oder auch Karnevalsfeiern, zusammen zu legen. Die Öffnung zum Außenbereich ermöglicht bei passender Wetterlage zugleich Außenveranstaltungen. Nach Westen kann die Verwaltung von diesem Bereich abgetrennt werden, sogar mit einem separat möglichen Personaleingang auf der Südwestseite. Der Kunst- und Musikbereich sowie die Aula, die sich ebenfalls im Erdgeschoss befinden, können flexibel die Umkleidebereiche der Sporthalle als Garderobe nutzen, etwa für Theatervorstellungen oder Konzerte. Die großzügigen Terrassen an der Südfassade dienen als Kommunikationsflächen und Erweiterung der Clusterforen. Außerdem schützen sie das Gebäude im Sommer vor direkter südlicher Sonneneinstrahlung. Darüber hinaus verbinden sie die Cluster untereinander und erfüllen die Anforderungen an Rettungswege sowohl für die Cluster als auch für die benachbarte Sporthalle. Der Pausenhof liegt eingebettet in einem Blockinnenbereich mitten in der Kölner Südstadt. Der wunderschöne und erhaltenswürdige Baumbestand prägt den bestehenden Raum und ist in die neue Freiraumgestaltung eingebunden.
Fotos:
Roland Halbe
www.rolandhalbe.eu
(Erschienen in CUBE Köln Bonn 01|25)
