Klar, ruhig, minimalistisch

Eine Riedberg-Villa verbindet ablesbare Volumen zu einem harmonischen Ganzen

DJI_0075-1_42_700pixel

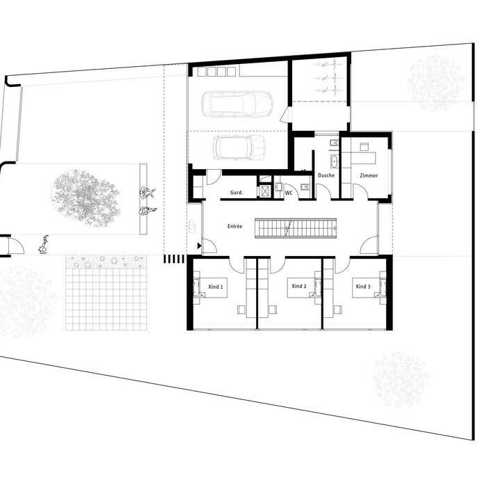
Wie sich architektonische Vorgaben eines städtebaulichen Gesamtkonzeptes und individuelle Wünsche der Bauherren vereinbaren lassen, zeigt eine Villa auf dem Frankfurter Riedberg von Yuen Architekten. Bei dem Neubau haben sich Architekt und Bauherren über zwei Konventionen hinweggesetzt und so eine großzügige Wohlfühloase geschaffen: klar, ruhig und minimalistisch. Kerngedanke bei dem neuen Quartier mit 30 Villen auf dem Riedberg ist das Stilmittel der „additiven Bauweise“. Weitere bauliche Vorgaben waren u. a. die rechteckige Grundform und in das Gebäude integrierte Garagen. Nebenanlagen wie Müllabstellraum und Fahrradabstellplätze werden ebenfalls architektonisch in das Gesamtkonzept integriert. Zehn Architekturbüros wurden im Auswahlverfahren prämiert. Eines war davon Yuen Architekten.

Neben den baurechtlichen Vorgaben entstand die Idee zu dem Haus durch intensive Gespräche der Architekten mit den Bauherrn, die klare Vorstellungen hatten, wie ihr neues Heim sein sollte und sich bereits intensiv mit minimalistischer und japanischer Architektur auseinandergesetzt hatten. „Mit Herrn Yuen haben wir exakt einen Architekten gefunden, der auf unsere Wünsche und Formensprache eingestiegen ist“, so die Bauherren, die sich ein Wohnhaus mit klarer, geradliniger und ruhiger Formensprache wünschten. Das Gebäude setzt sich dabei aus drei ablesbaren Volumen zusammen, die auf unterschiedlicher Weise miteinander im Verhältnis stehen und ein harmonisches Ganzes schaffen. Gezielte Vor- und Rücksprünge, das Aufsitzen, Umgreifen oder Verschränken einzelner Gebäudeteile miteinander sind gewünschte formgebende Gestaltungsmittel.

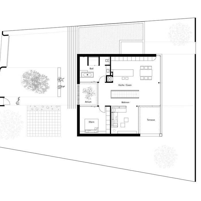
Die zur Straße gelegene Vorderseite hat dabei ein ruhiges und geschlossenes Erscheinungsbild und kommt praktisch ohne „richtiges“ Fenster aus. Auf der Rückseite hingegen schenken große Glasfronten einen fantastischen Blick auf die Frankfurter Skyline. Diese Aussicht war auch der Grund dafür, dass die Bauherren die Wohnräume – anders als üblich – im Obergeschoss des Hauses platzieren ließen. So entstand im Obergeschoss eine sehr helle Wohnlandschaft mit Loftcharakter, die die öffentlichen Bereiche Wohnzimmer, Küche und Esszimmer aber auch das Elternschlafzimmer aufnimmt. Arbeitszimmer, Kinderzimmer und weitere Nebenräume hingegen siedelte der Architekt im Erdgeschoss an. Ein Atrium mit Baum im Obergeschoss ist das Herzstück des Hauses, um das sich die Aufenthaltsräume gruppieren. Dieser Bereich unter freiem Himmel ist nicht nur geschützt, in Verbindung mit den senkrechten Fassadenlamellen wirft er auch Licht- und Schattenspiele in die Wohnräume.

Konsequenterweise fällt auch die Treppe etwas aus dem Rahmen. Statt die Stahltreppe möglichst raumsparend und dezent an einer Seite unterzubringen, wurde sie geradlinige und durchaus raumnehmend zentral positioniert. Sie weist geradewegs den Gang zu den öffentlichen Räumen, da sie Ankommende direkt ins Obergeschoss zieht, und erzeugt zudem eine angenehme Spannung zu den weiß gestalteten Wänden der Villa.

www.yuen-architekten.de

Wohnfläche: 325 m²
Grundstücksgröße: 611 m²
Bauzeit: 12 Monate
Bauweise: Holzrahmenbauweise, Keller in Massivbauweise
Energiekonzept: Fernwärme, Wohnraumlüftung, Regenzisterne, extensive Dachbegrünung

Fotos:

Boris Crull
www.photobo.de

(Erschienen in CUBE Frankfurt 04|21)

Architekten:

Yuen Architekten
www.yuen-architekten.de

Generalunternehmen:

Holzbau Kühlborn
www.holzbau-kuehlborn.de

Betonarbeiten:

Gudat-Bau
www.gudatbau.de

Faltwerkstahltreppe:

Spitzbart Treppen
www.spitzbart.de

Fassadenputzarbeiten:

Baudekoration Ingo Dazer
www.baudekoration-dazer.de

Vorgehängte Fassade:

Etex Germany Exteriors
www.equitone.com

Sauna:

Physiotherm
www.physiotherm.com

Bodenbelag:

Gerflor Mipolam
www.gerflor.de

Armaturen:

Steinberg
www.steinberg-armaturen.de

Sanitärausstattung:

Alape
www.alape.de
Duravit
www.duravit.de

Nothing found.

Selbstbewusst vermittelnd

Wohnhaus mit reduzierter Matrialpalette definiert den Begriff der Stadtvilla neu

Ans Tageslicht geholt

In der Bonner Südstadt wurde ein früheres IT-Rechenzentrum zur Kita umgebaut

Dynamisch und nachhaltig

Das Bürogebäude „One Plaza“ orientiert seine flexiblen Arbeitswelten rund um eine grüne Mitte

Siedlungstypisches Ensemble

Neuer Wohnraum und neues Stiftungs-Verwaltungsgebäude auf der Margarethenhöhe in Essen

Nothing found.

DSCF8707-2_19_700pixel

5 zu 0 für Mainz

Mainz-05-Geschäftsstelle spiegelt nach Umbau die Identität des Vereins wider

SHND0068_19_700pixel

Klar, Hell & Großzügiger

Ehemals verschachtelter Grundriss wird zur harmonischen Einheit

SHND0062_I-a_45_700pixel

Geschickt verdreht

Taunus-Villa fügt sich trotz ihrer Größe harmonisch in die Umgebung ein

Sorgfältig austariert

Sorgfältig austariert

Sanierung und Modernisierung des Klosters Johannisberg im Rheingau

02-bki_Apotheke-am-Markt_-c-Joachim-Grothus_19_700pixel

Vertrauensvolle Atmosphäre

Einladende Neugestaltung einer Apotheke in Kelkheim setzt auf Kundennähe

vitra_HDS_08_19_700pixel

Form Follows Culture

Agenturbüro mit Coworking-Plätzen hebelt bekanntes Designprinzip aus

Leise & Selbstbewusst

Ein Wohnhaus mit acht Einheiten entsteht auf dem Grundstück eines einstigen Bürohochhauses

Waldems_02j_15_700pixel

Wunschgenau

Nach den konkreten Ideen der Eigentümerfamilie ist dieses moderne Haus entstanden