WG neu interpretiert
Ein Wohnprojekt für Studierende schafft in Ludwigsburg zeitgemäßen Wohnraum
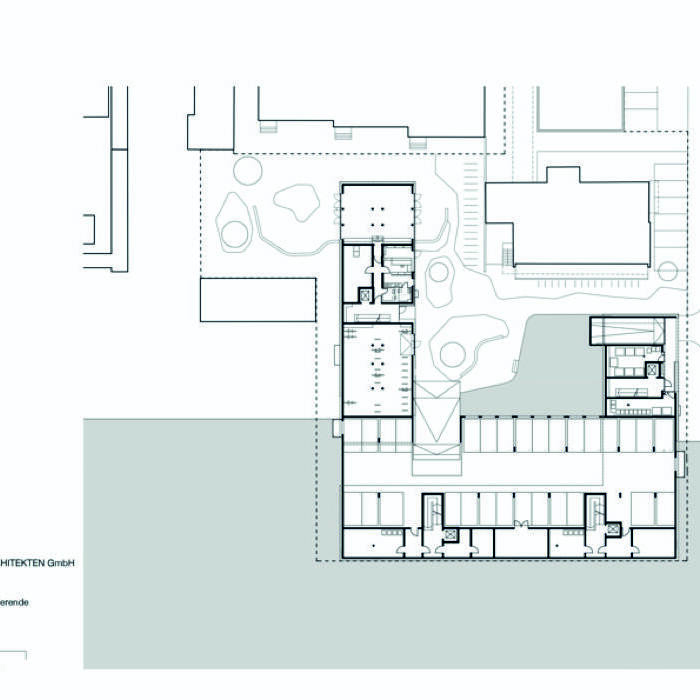
Fünf Hochschulen und Akademien sowie das Deutsch-Französische Institut haben ihren Sitz in der Barockstadt Ludwigsburg. Wie an anderen Hochschulstandorten ist auch hier bezahlbarer Wohnraum knapp – doch mit dem neuen Projekt „Wohnen für Studierende“ hat sich die Lage nun etwas entspannt: 2023 eröffnete auf dem Campus Königsallee das Studierendenwerk Stuttgart zwei neue Gebäude mit insgesamt 229 Wohneinheiten. Den Wettbewerb hatte das Stuttgarter Büro Reichel Schlaier Architekten zusammen mit Koeber Landschaftsarchitektur gewonnen.
Charakteristisch für den Entwurf ist die Überführung der klassischen Wohngemeinschaft der 1960er-Jahre in ein zeitgemäßes Wohnkonzept für junge Menschen. Wichtiger Bestandteil des Entwurfs ist die Betonung eines produktiven Miteinanders. Deshalb sind die Wohneinheiten als Wohngemeinschaften mit großzügigen Gemeinschaftsräumen konzipiert, gestaffelt von Dreier- bis Achter-WGs. Barrierefreies Wohnen ist ebenfalls möglich. Die kräftige Farbgebung der Gemeinschaftsflächen erleichtert die Orientierung und prägt die Wohnungen. Die zickzackförmigen Deckenleuchten wirken belebend und dynamisch. In puncto Kubatur und Materialität korrespondieren die beiden neuen Baukörper mit dem Bestand – einer historischen Kasernenstruktur aus dem 19. Jahrhundert. Die Außenhaut ist konsequent als Klinkerfassade gestaltet. Die Fassaden werden durch vorspringende Erker rhythmisiert und die mosaikartigen Erdgeschosse optisch abgesetzt. Die Farbigkeit der Fugen variiert mit der Geschosshöhe. Während der äußere Baukörper das Areal präzise auf der Süd- und Ostseite zur Friedrichstraße und Königsallee hin schließt, vervollständigt der zweite Baukörper das Ensemble, schafft eine klare Platzkante zum Innenhof und öffnet den Übergang zum benachbarten Wohnhochhaus sowie zu den nördlich angrenzenden Hochschulgebäuden. Alle Baukörper gruppieren sich um eine begrünte Mitte als Raum für Begegnung und Aufenthalt. Zudem erarbeitete das Studierendenwerk Stuttgart gemeinsam mit der Stadt Ludwigsburg ein umfassendes Mobilitätskonzept, das die Tiefgaragenplätze um ein Drittel reduzierte und 200 Stellplätze im Fahrradkeller und 30 Fahrradstellplätze im Innenhof vorsieht. Zudem gibt es zehn E-Lastenräder, die per App buchbar sind. Auch eine Fahrradwerkstatt wurde eingerichtet. Oberirdisch stehen drei Carsharing-Stellplätze sowie 31 PKW-Stellplätze und vier E-Ladestationen in der Tiefgarage zur Verfügung.
Fotos:
Brigida González
www.brigidagonzalez.de
(Erschienen in CUBE Stuttgart 03|24)





