Vom Kletterbaum inspiriert
Cradle-to-cradle-zertifiziertes Holzhaus mit Gastronomie und barrierefreien Mietwohnungen
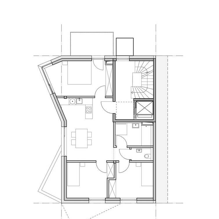
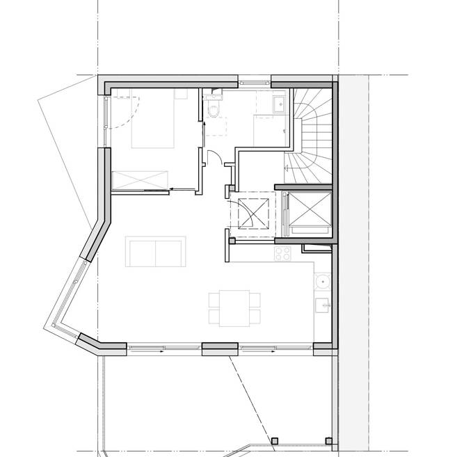
Das Holzhaus „Eckbaum“ von anw Architekten ist Teil einer Vielzahl individueller Einzelbauprojekte in einem neu geschaffenen Quartier in Kirchheim unter Teck. Seine charakteristische Formgebung basiert auf einer persönlichen Erinnerung des Bauherrn, der beim Kauf des 196 m² großen Grundstücks bemerkte, dass genau an dieser Stelle der Kletterbaum seiner Kindheit gestanden hatte. Fortan diente das Motiv des Baumes als Keimzelle für den Entwurf des Wohn- und Geschäftshauses, dessen skulpturale Fassade sich nach Süden und Westen wie Äste „verzweigt“. In intensives Falunrot getaucht, bringt die an Schwedens berühmte Kupfermine erinnernde Farbe die Fassade plastisch zur Geltung.
Die 315 m² umfassende Wohn- und Nutzfläche verteilt sich auf einen Gastronomiebetrieb im Erdgeschoss und drei Wohneinheiten in den Obergeschossen. Sie sind für barrierefreies und altersgerechtes Wohnen ausgelegt und liegen bei der Vermietung teilweise 30 Prozent unter dem aktuellen Mietspiegel. Die Erker der Wohnungen ermöglichen einen Panoramablick und die unterschiedlichen Freibereiche erweitern die Wohnräume in den Außenraum. Die Gebäudewände bestehen größtenteils aus einem Massivholzsystem. Mit der Cradle-to-Cradle Gold-Zertifizierung dieses Holzbausystems sind die grundsätzlichen Anforderungen des Projekts an Ökologie und Nachhaltigkeit in seiner gesamten Lebenszyklus-Betrachtung erfüllt: klimaneutral mit ausgeglichener CO₂-Bilanz, ohne Treibhausgase und vollständig recycelbar. Eine hinterlüftete, sägeraue Holzschalung aus Fichte umgibt das Gebäude. Die Geschossdecken und das Flachdach bestehen aus Holzflächenelementen, die sich ebenfalls durch ihre ökologische Nachhaltigkeit, Effizienz und Vielseitigkeit auszeichnen. Die Wärmeversorgung übernimmt eine Wärmepumpe über eine Deckenstrahlungsheizung, unterstützt durch das bestehende Nahwärmenetz mit Blockheizkraftwerk. Die Stromerzeugung erfolgt über eine eigene PV-Anlage.
Fotos:
Oliver Rieger
www.oliverrieger.com
(Erschienen in CUBE Stuttgart 04|24)
