Ruhe und Erholung
In dieser Villa am Hang steht die schwarz-goldene Küche im Mittelpunkt
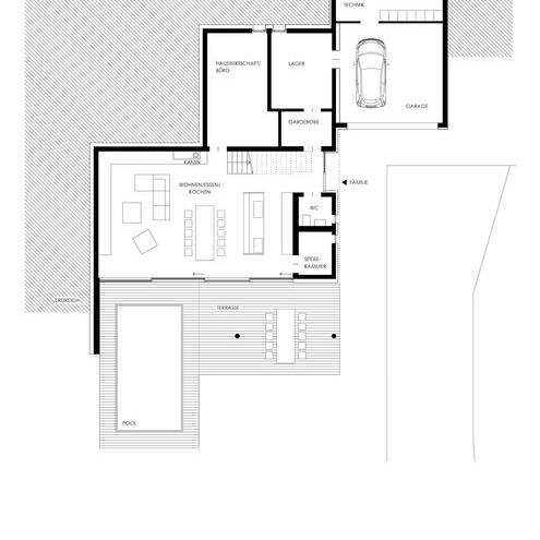
Die Chemie stimmte sofort zwischen noma architekten und ihren Bauherren. Klar, dass dies die beste Voraussetzung für ein gelungenes Bauprojekt ist. Zumal die Bauherrenfamilie klare Vorstellungen von ihrem künftigen Zuhause hatte: Ein modernes Erscheinungsbild mit kantigen Formen und klare Strukturen sollte es sein. Dazu ein offenes, helles und großzügiges Raumgefühl im Inneren. Zwei Leitfragen stellten sich die Architekten Nora und Maik Schöffel zur Planung. Erstens: Wie nutzen wir die Hanglage, um die Bauherrenwünsche optimal umzusetzen? Und zweitens: Wie ordnen wir die Gebäudevolumen an, um Privatsphäre im heterogenen, derzeit entstehenden Neubaugebiet zu gewährleisten? Entwickelt haben sie kantige Gebäudevolumen, die sich so in den Hang schieben, dass man auch im Obergeschoss ebenerdig ins Freie gelangt. Funktionsräume, die nicht zwangsläufig Tageslicht benötigen, wurden im Hang auf Erdgeschossebene untergebracht. Das Haus nimmt den oberen Bereich des Grundstücks ein und lässt den unteren für einen großzügigen Außenbereich mit Platz für die Terrasse, Grünflächen und den Pool. Gegründet ist das Haus in dem torfigen Boden bis in 4 m Tiefe mit Fundamenten aus Schachtringen.
Den hohen Anspruch der Gastronomenfamilie an Wohnkomfort übersetzten die Architekten in die klassische Aufteilung der Funktionen nach offen und kommunikativ sowie zurückgezogen und ruhig: Der Wohn-, Ess- und Kochbereich befindet sich im Erdgeschoss, Schlafräume und Bäder im Obergeschoss. Der offen gestaltete Raum im Erdgeschoss bildet das Herz des Hauses. Lieblingsplatz der Familie ist die Küche. Sie ist ein wahres Schmuckstück in Schwarz und Gold. Die Arbeitsplatte ist aus Granit Nero Assoluto gefertigt, die Möbelfronten aus gewirbeltem Gold auf Messing. Auf dem Teppanyaki, einer beheizbaren und in der Kochinsel integrierten Edelstahlplatte, können die Gastgeber das Essen vor den Augen ihrer Gäste zubereiten, sodass die Geselligkeit schon beim Kochen beginnt. Eine Treppe mit Holzkragstufen verbindet Erd- und Obergeschoss, begleitet von Rundstäben, die nicht nur der Absturzsicherung dienen, sondern auch die optische Verbindung zum Küchenmöbel herstellen. Flächenbündige Innentüren und Geländer aus Glas im Obergeschoss unterstreichen die Klarheit und Leichtigkeit. Große Fensterfronten, viel Durchlässigkeit und ein starker Bezug zum Außenbereich weiten die Wohnräume optisch. Dazu tragen auch die Steinböden im Erdgeschoss bei, die den Übergang nach draußen fließend gestalten. Als Sichtschutz um den Garten und die Terrasse dienen einzelne schräg gestellte Lamellen, die für ausreichend Privatsphäre sorgen, ohne ganz abzuschotten.
Wohnfläche: 280 m²
Grundstücksgröße: 610 m²
Bauzeit: August 2019 bis September 2020
Bauweise: Massivbau, Stahlbeton
Energiekonzept: Luftwärmepumpe, Photovoltaik
Fotos:
Oliver Rieger
www.oliverrieger.com
(Erschienen in CUBE Stuttgart 03|22)
