Das Warten hat sich gelohnt
Individuell sanierte Stadtwohnung in einem denkmalgeschützten Gebäude von 1912–13
Jahrelang hatten die Bauherren schon nach einer schönen Bleibe gesucht. Als sie schließlich fündig wurden, gab es einen Haken: Die Wohnung konnte erst ein Jahr nach dem Erwerb übernommen werden. Was zunächst als hinderlich schien, entpuppte sich schließlich als vorteilhaft: no w here Architekten Designer und die Bauherren nutzten die Zeit für eine intensive Vorplanung, sodass die Wohnung innerhalb von nur sechs Wochen mit einem eingespielten Team an Handwerkern umgebaut werden konnte.
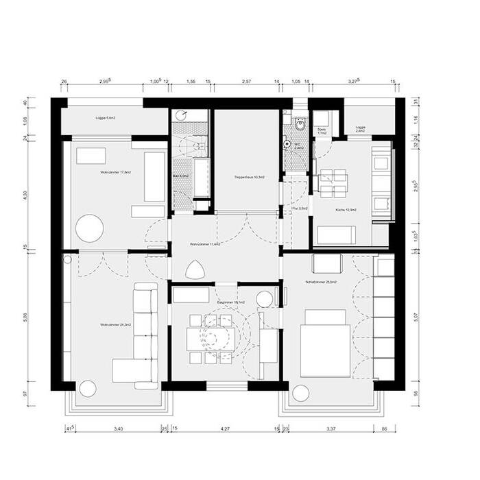
Der Grundriss der Wohnung im 3. Obergeschoss eines denkmalgeschützten Hauses von 1912–13 ist um einen zentralen Flur organisiert. Früher ermöglichte der zusätzliche kleine Küchenflur mit separater Zugangstüre dem Hauspersonal einen eigenen Zugang. An der Straßenseite ergänzen dreiseitig verglaste Erker die beiden äußeren Zimmer. Zum Garten geben zwei überdachte Veranden auch bei schlechtem Wetter die Möglichkeit, sich draußen aufzuhalten. Die haustechnischen Anlagen wurden vollständig erneuert und die Sanitärbereiche neu organisiert. Historische Details wie Wandvertäfelungen, Kassettentüren, Einfassungen und Terrazzoböden wurden instandgesetzt. Der noch vorhandene massive Buchenholzboden wies durch einige Ausbesserungen ein heterogenes Erscheinungsbild auf und wurde nach dem Abschleifen mit einem pigmentierten Öl in einem Räuchereichefarbton versehen. Den von Vorbesitzern entfernten Deckenstuck ersetzt eine moderne Interpretation in Form mehrerer „Stuckringe“, die über dem außermittig stehenden Esstisch kreisen. Dazu wurden Rautenprofile mit unterschiedlichen Neigungswinkeln plastisch modelliert, aus MDF per CNC gefräst und an der Decke montiert, gespachtelt sowie gestrichen. Die Einrichtung der Wohnung folgt einem streng biografischen Prinzip: Viele Möbel, Gegenstände und Kunstwerke sind mit Orten, Ereignissen oder Freunden der Bewohner verbunden. Die meisten Kunstwerke stammen von befreundeten Künstlern. So ist die Schrankfront im Schlafzimmer beispielsweise eine Auftragsarbeit, die der in Nürtingen lebende äthiopische Künstler Tesfaye Urgessa speziell für diesen Raum angefertigt hat. Das Regalsystem im Wohnzimmer ist eine Eigenentwicklung der Architekten und Designer, bei dem die Regalböden mit Akazien-Anleimer mittels gekanteten, kupferfarbenen Alucobond-Formteilen aufeinandergestapelt werden.
Fotos:
Olaf Becker
www.beckerlacour.com
(Erschienen in CUBE Stuttgart 03|22)
