Vorbild für Nachhaltigkeit

Plusenergie-Sporthalle mit Photovoltaik, Geothermie und Einbindung in einen Wärmeverbund

05_Sporthalle-Waldau_15_700pixel

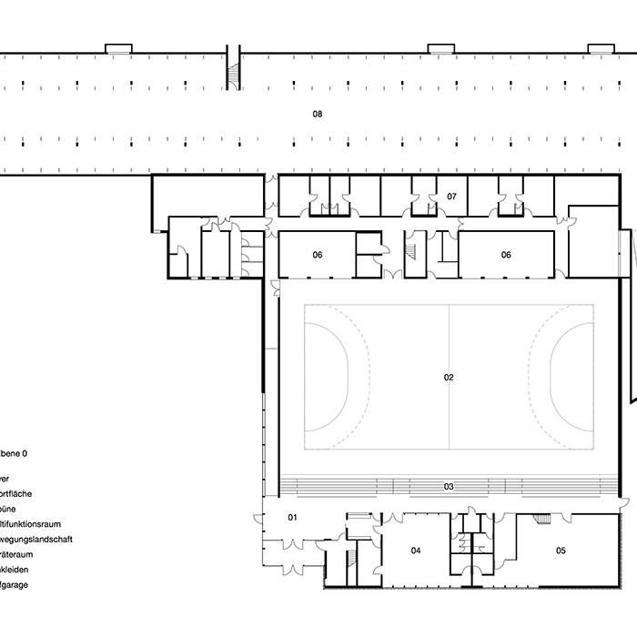
Die neue Sporthalle befindet sich mitten im Sport- und Erholungsgebiet Waldau. Als kompakter und kubischer Baukörper ist sie so in die nach Norden ansteigende Topografie integriert, dass nur ein Teil des Volumens in Erscheinung tritt. So konnte die große Baumasse mit Vorbereich im Süden angemessen in die Umgebung eingefügt werden. Die Freifläche an der Westseite fungiert als „Action-Platz“ und Bindeglied zur benachbarten „Eiswelt“.

Die Form des Gebäudes entwickelten die Architekten Glück + Partner aus den Anforderungen an das Tragwerk und die Belichtung. Über dem Hauptbaukörper sind fünf längliche, kubische und vierseitig transluzent umschlossene Belichtungskörper angeordnet. Sie nehmen sowohl die aufgelösten Kastenträger des Hallentragwerks als auch die Trennvorhänge und Basketballkörbe auf. Mit der gewählten Konstruktion entstand ein angenehm ruhig strukturiertes Deckenbild. Um möglichst schlanke Querschnitte realisieren zu können, ist das Dachtragwerk des Hallenbaukörpers vorwiegend in Baubuche ausgeführt. Holz prägt auch das äußere Erscheinungsbild der Sporthalle. So sind die opaken Wandflächen mit unbehandelten Lamellen aus Lärchenholz verkleidet. Im Bereich der Südfassade schützt eine offene Holzlamellenkonstruktion vor direkten Einblicken. Für ihre innovative Holzkonstruktion wurde die Halle als Modellbauprojekt vom Europäischen Fonds für regionale Entwicklung gefördert.
Sämtliche Hallenfunktionen sind klar strukturiert auf einer Ebene angeordnet. Von Süden nach Norden entwickeln sich vier Raumzonen: Die erste mit Haupteingang, Foyer, Multifunktionsraum, Indoor-Bewegungslandschaft und Nebenräumen, die zweite und zentrale mit der Dreifeldhalle und den Zuschauertribünen. Die dritte Raumzone umfasst die Geräteräume, Lehrerumkleiden, einen Regie- und einen Kraftraum. Umkleiden und Technikflächen gehören zur vierten Raumzone. Nördlich der Umkleiden befindet sich die Tiefgarage mit einem direkten Hallenzugang. Ein Einschnitt an der Südwestecke markiert den Haupteingang ins Foyer, von dem aus alle Funktionen der Sporthalle erschlossen werden. Eine zur Halle hin offene Flurzone verbindet das Foyer mit den Zuschauerbereichen, dem Multifunktionsraum und der Indoor-Bewegungslandschaft. Drei auf Hallenebene beginnende Sitzstufen dienen als Tribüne. Wie der Multifunktionsraum ist auch die Indoor-Bewegungslandschaft zur Flurzone teilweise verglast und staffelt sich über mehrere Ebenen. Eine sehr flach geneigte Rampe führt hinunter zur Hallenebene und zu den Umkleiden. Im rückwärtigen Bereich ist die Halle zweigeschossig, in der oberen Ebene befinden sich Umkleiden für den Außenbereich sowie Büroräume der Sportvereine.

www.glueck-partner.de

Fotos:

Achim Birnbaum
www.achimbirnbaum.eu

(Erschienen in CUBE Stuttgart 04|22)

Nothing found.

Preziose unterm Dach

Ein Spitzboden in einem Mehrfamilienhaus in Essen-Rüttenscheid wird zum Vorzeigeprojekt

Vergangenheit & Zukunft

Modellprojekt zeigt, wie sakrale Bestandsarchitektur transformiert werden kann

Nachhaltige Metamorphose

Das Büroensemble „Lyght“ in Golzheim erweitert und revitalisiert den Bestand aus den 1970er-Jahren

Nothing found.

mgf_o-kogeno-furtwangen_05_15_700pixel

Nachbarschaft (er-)leben

Inklusives Wohnprojekt mit Café, vielfältigen Wohnangeboten, Dachterrasse und einer grünen Mitte

Vorbildlich intelligent

Feuerwehr-Neubau, der auf kreislauffähige Materialien setzt, dient als Rohstoffdepot

HausBWeb_0025a_15_700pixel

Klassisch modern

Skulpturales Einfamilienhaus mit separaten Bereichen für Eltern und Kinder

Für einen schönen Lebensabend

Neue Pflegeeinrichtung macht Wohlfühlen zur Normalität

_JGF1677_19_700pixel

Farbe, Form und Licht

Umgebautes exklusives Einfamilienhaus aus den 1980er-Jahren mit fein abgestimmter Lichtgestaltung

gerlingen-haus-w-nacht-hres-2_49_700pixel

Unaufgeregte Ästhetik

Villa am Hang mit Blick in die Ferne als choreografisches Thema

4_15_700pixel1G7ZG3nPlZVGJ

Wohnmodule im Grünen

Flexibel nutzbarer Wohnbau in Holz-Massiv-Hybridbauweise, effektiv gedämmt mit Holzfaserplatten

DSCF1710-12_10_700pixel

Aus Liebe zu Porzellan

Marie Ballhause verbindet starke Farben mit ruhigen Formen