Extravaganz aus Holz

Umbau und Aufstockung der Berlin Metropolitan School

BMS_0456_15_700pixel

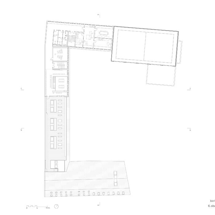
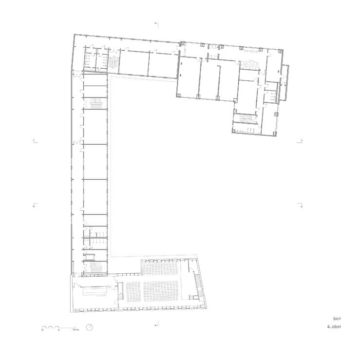
Die Berlin Metropolitan School in der Linienstraße in Mitte wurde 2004 gegründet und ist heute die größte internationale Schule der Hauptstadt für etwa 1.000 Kinder und Schüler aller Altersklassen aus 69 verschiedenen Nationen. In einem Ganztagsprogramm von 7.30 Uhr bis 18 Uhr gibt es ein umfängliches Lernangebot – von der Kita bis zur Erlangung der Hochschulreife. Hierfür war der Platz der alten DDR-Plattenbauten nicht mehr ausreichend. Mit der Erweiterung war das in Berlin ansässige Architekturbüro Sauerbruch Hutton beauftragt. Die Planung begann 2014, Fertigstellung war 2020. Eine eindrucksvolle, teils ein-, teils doppelgeschossige Aufstockung aus Holz entstand, die während des laufenden Schulbetriebs errichtet werden musste. Wegen des hohen Vorfertigungsgrades war dies ohne größere Komplikationen möglich. Die neu hinzugekommene Nutzfläche beträgt 3.650 m² und wurde mit dem Deutschen Holzbaupreis 2021 sowie mit einer lobenden Erwähnung beim Wood Design & Building Award 2021–22 ausgezeichnet.

Das Bestandsgebäude besteht aus einem langen Riegel an der Westseite und zwei einhüftigen Riegeln im Norden und Süden. Sie umschließen einen großen Innenhof, der als Pausen- und Aufenthaltsort genutzt wird. Dass Holz als Baustoff gewählt wurde, hat mehrere plausible Gründe: Der Dachaufbau aus Holz hat ein vergleichsweise geringes Gewicht, das statisch problemlos aufgesetzt werden kann. Hinzu kommt die Möglichkeit des bereits erwähnten hohen Vorfertigungsgrades, der den Aufbau in Etappen ermöglicht. Als dritter sehr wesentlicher Punkt ist die Nachhaltigkeit von Holz ein wichtiger Faktor. Für den Architekten Sauerbruch ist die Umstellung der Bauindustrie von Stahlbeton auf Holz eine Notwendigkeit sowie ein unabdingbarer Paradigmenwechsel unserer Zeit, weshalb das Architekturbüro bei seinen aktuellen Projekten nach Möglichkeit Holz einsetzt.

Das augenscheinlichste Merkmal des Dachaufbaus ist seine extravagante Form: Der leicht auskragende Überstand ragt entgegen üblicher Dachformen im schrägen Winkel nach außen über das Gebäude hinweg, um mit einer sanften Rundung oben abzuschließen. Diese Konstruktion ist überraschend und ästhetisch gelungen, zusätzlich lenkt sie die Aufmerksamkeit durch ihre Kupferverkleidung auf sich. Sie passt sich farblich dem ziegelfarbigen Bestand an. Geschaffen wurden differenzierte Raumgrößen und -qualitäten für Gemeinschaft, Rückzug, selbstständiges Lernen und Gruppenarbeiten, plus einem großen Saal für alle erdenklichen Veranstaltungen mit einem sichtbar belassenen gewölbten Dachaufbau und einer fünfeckigen Form mit gegenläufigen Seitenwänden.  

www.sauerbruchhutton.com

Fotos:

Jan Bitter
www.janbitter.de

(Erschienen in CUBE Berlin 02|22)

Architekten:

Sauerbruch Hutton
www.sauerbruchhutton.de

Statik:

Andreas Külich Ingenieurbüro für Tragwerksplanung
www.andreaskuelich.com

Haustechnik:

Kofler Energies
www.koflerenergies.com

Brandschutz:

hhpberlin Ingenieure für Brandschutz
www.hhpberlin.org

Bauphysik:

Müller-BBM
www.muellerbbm.de

Ausführung Holzbau:

Kai Vater Zimmerei und Holzbau
www.zimmerei-vater.de

Nothing found.

Harmonisch eingefügt

Neubau-Ensemble wahrt den historischen Bezug und entwickelt eigene Identität

Traditionell und Modern

Traditionell und Modern

Massivholzhaus ist der Publikumsliebling beim Rosenheimer Holzbaupreis

Erdverbundene Leichtigkeit

Winkelförmiger Bungalow auf Sockel mit Höfen bildet einen geschützten Gartenbereich

Nothing found.

Wenn Räume sprechen könnten

Im einstigen „Haus des Kindes“ entstand eine neu-alte Penthouse-Wohnung

muh_st_peter_2020_06_30cm_15_700pixel

Nicht in Stein gemeißelt

Aus einem Bildhaueratelier wird Wohnraum auf mehreren Ebenen

Sigurd-Larsen-Architekt-Glas-Haus-Uckermarck-design-Berlin-wood-bricks-weekendhouse_Credit-Tobias-Koenig-Michael-Romstoeck-__02_700pixel

Glashaus im Grünen

Wochenendhaus, Ferienhaus und Studio unter einem Glasdach

JSCBerlin_Meyer-Grohbruegge_JanBitter_Aussenraum-foto1_15_700pixel

Gekommen, um zu bleiben

Die JS Collection erfreut sich großer Beliebtheit und ein gelungener Umbau hat seinen Anteil daran

1608-WF_Dol_052_19_700pixel

Drei Punkte im Hof

Exemplarische Nachverdichtung in Friedrichsfelde

Handwerkskunst in dritter Generation

Das Label etna fertigt mundgeblasene und alltagstaugliche Gläser

Villa-Jacobs_7318_18_700pixel

Prachtgarten revitalisiert

Die neue Stiftung Ludes wandelt den Park der Villa Jacobs in einen Skulpturenpark um