Haus am See
Klarer Kubus mit markanter Hülle
Ein schönes Haus zeichnet sich durch eine gelungene Kombination aus ästhetischer Architektur, funktionaler Raumgestaltung, hochwertiger Materialien, guter Lage und nachhaltiger Bauweise aus. Das „Haus am See“ entspricht exakt dieser Definition und wurde deshalb zurecht in die Longlist des Architekturwettbewerbs „Die besten Häuser 2025“ aufgenommen. In enger Zusammenarbeit mit den Bauherren entwickelten die Architekt:innen von Transstruktura ein Wohnhaus, das irgendwann als Klassiker gelten könnte. Das Architekturbüro, aus dessen Werkstatt der Entwurf stammt, verfolgt ein spezielles Konzept: Für jede neue Bauaufgabe wird aus einem „Pool“ von Architekt:innen das passende Team ausgewählt. Mit diesem Projekt wurden die beiden Architektinnen Eva Dietrich und Nataliya Sukhova sowie die Mitarbeiterin Esin Erdinch betraut.
Zum Konzept des Büros gehört zudem, sich mit nachhaltigen Innovationen auseinanderzusetzen und dieses Wissen weiterzugeben – etwa durch Vorträge und die Organisation baukultureller Veranstaltungen. Und selbstverständlich gehört dazu auch die Entscheidung für nachhaltige Baumaterialien und energieeffizientes Vorgehen. Aber zurück zum „Haus am See“: Mit seiner kompakten, klaren Kubusform aus schwarzem Holz mutet es wie ein Würfel an – bis es seine Raffinessen preisgibt: Es handelt sich um einen Holzständerbau mit einer Holzbalkendecke. Das auffälligste Merkmal ist die Fassade aus einer vertikalen, nach der Shou-Sugi-Ban-Methode verkohlten Holzschalung. Um hier eine natürlichere Textur zu erzielen, variieren die Bretter in der Breite. Seine schwarze Erscheinung verweist auf die alten Fischerhütten und Bootshäuser, wie sie teilweise noch heute in der Nachbarschaft zu finden sind und schafft dadurch eine Verbindung zu seinem Umfeld.
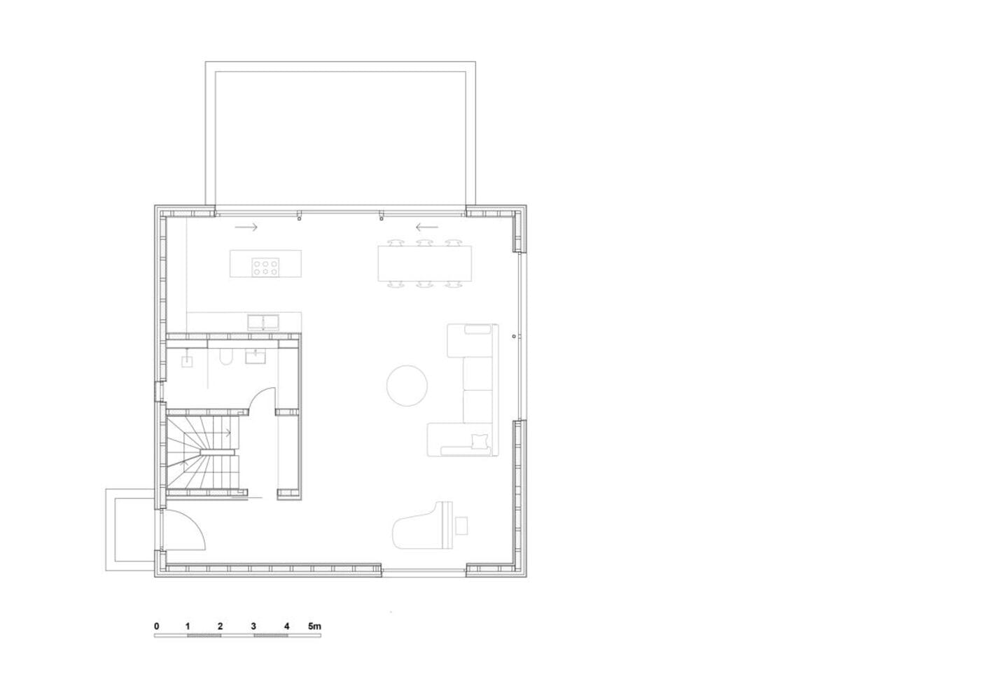
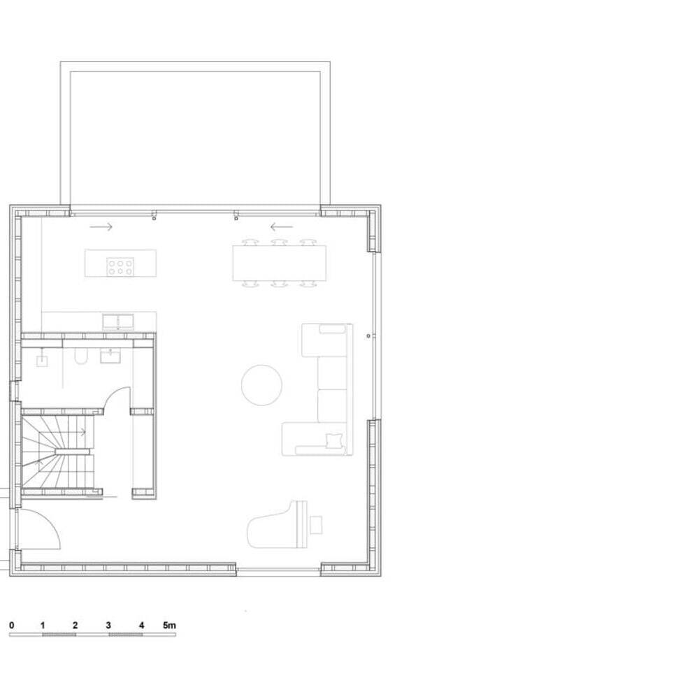
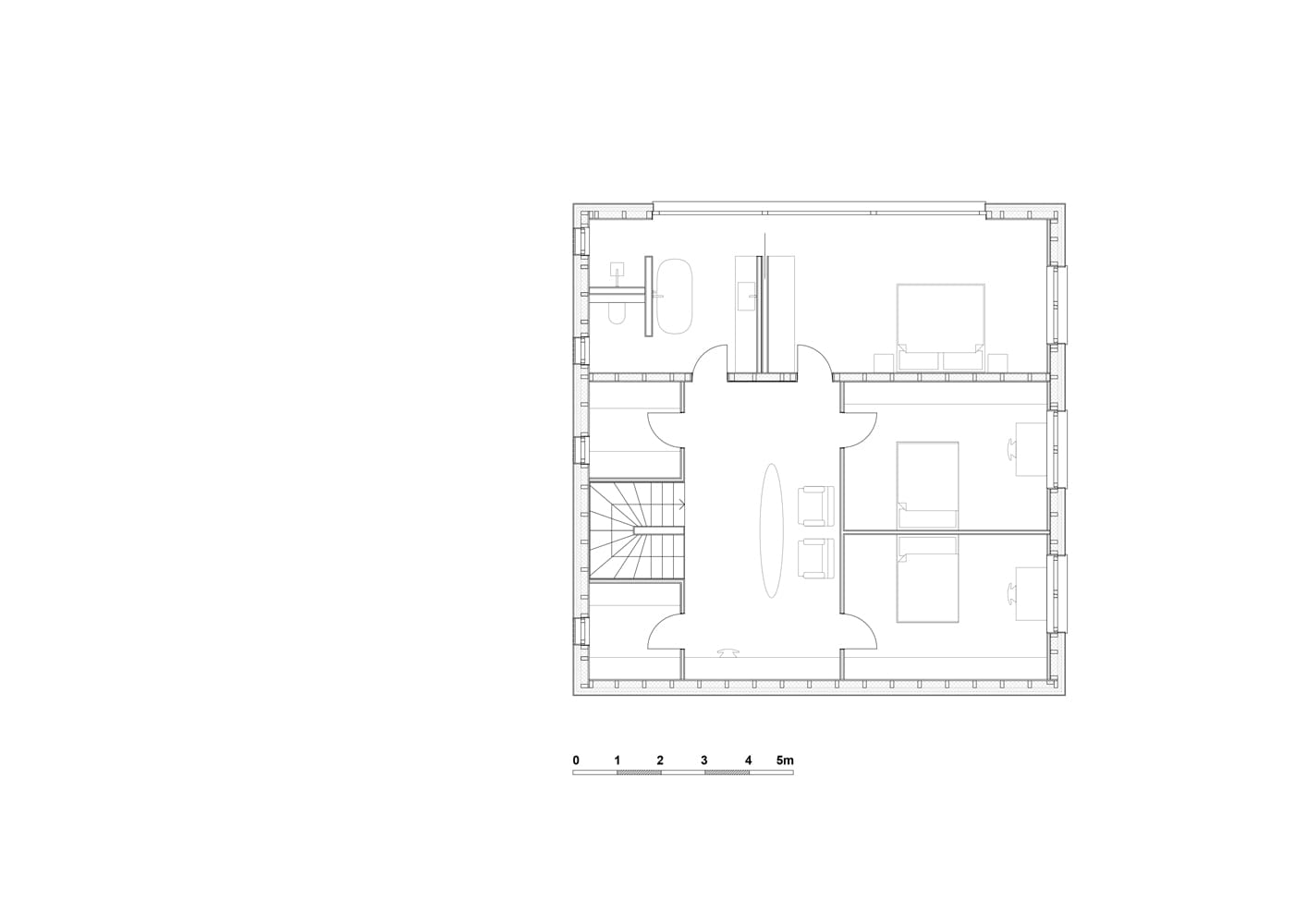
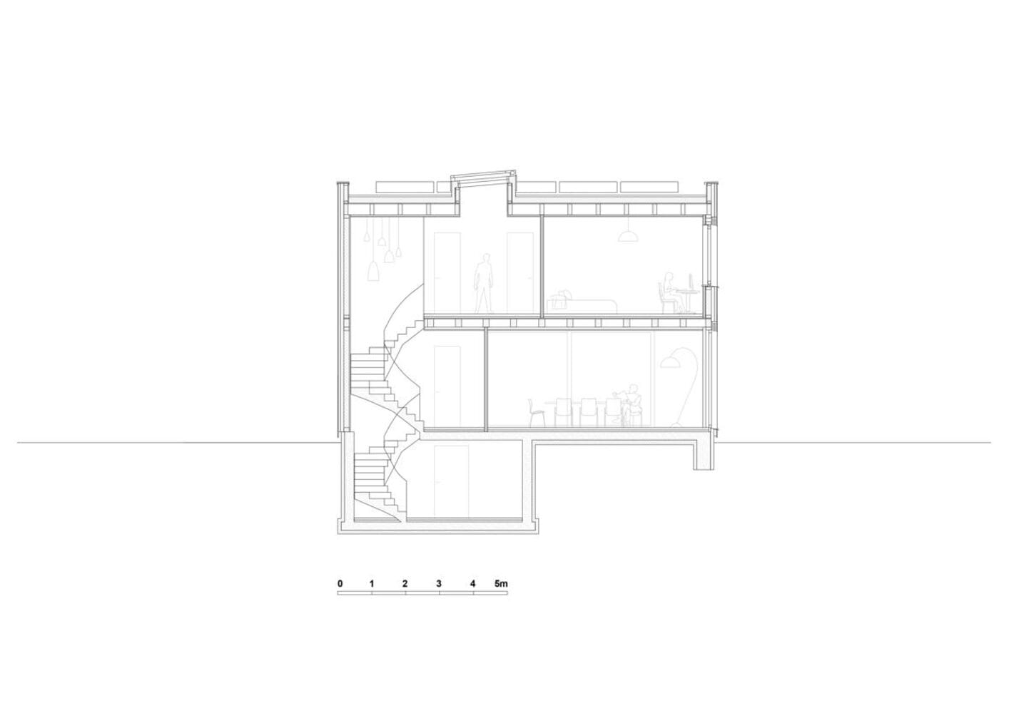
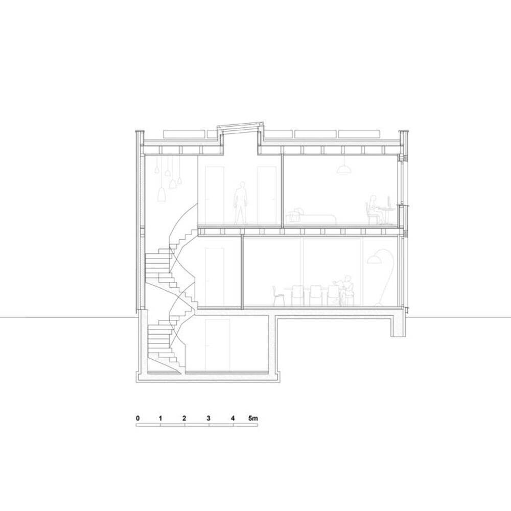
Der Stil des Hauses ist eine Reminiszenz an das alte Fischerdorf in Verbindung mit moderner Materialität und Architektursprache. Eine weitere Besonderheit sind die Panoramafenster auf der Seeseite im Osten. Auch die Südseite überrascht mit diesen großzügigen Fenstern. Neu gepflanzte Bäume und der alte Baumbestand sorgen für Sichtschutz. Aus diesen Blickwinkeln sieht das Haus wie ein Glashaus aus, das von einem Holzrahmen getragen wird. Eine vorgelagerte, großzügige Terrasse lädt zum Essen im Freien, Sonnenbaden oder einfach nur zum Entspannen ein. Als Dämmmaterial kamen Zellulose-Einblas- und Holzfaserdämmung zum Einsatz. Der geschliffene Estrichboden verbindet alle drei Geschosse über eine skulpturale Betontreppe, während er in den Badezimmern in einen farbgleichen Mikrozementboden übergeht. Durch die offene Struktur im Erdgeschoss und die großen Fensterflächen lässt sich das Draußen auch im Inneren erleben. Die Bewohner:innen können sich an großzügigen, hellen Räumen erfreuen.
Wohnfläche: 205 m²
Grundstücksgröße: 1.096 m²
Bauzeit: 2022–2024
Bauweise: Holzständerbau mit Holzbalkendecke
Energiekonzept: Luftwärmepumpe + PV-Anlage
Fotos:
Klemens Renner
www.klemensrenner.com
(Erschienen in CUBE Berlin 04|25)
