Mehr Wohnen auf gleichem Grund
Aufstocken, Sanieren, Umbauen, neu organisieren – so gelingt städtisches Verdichten
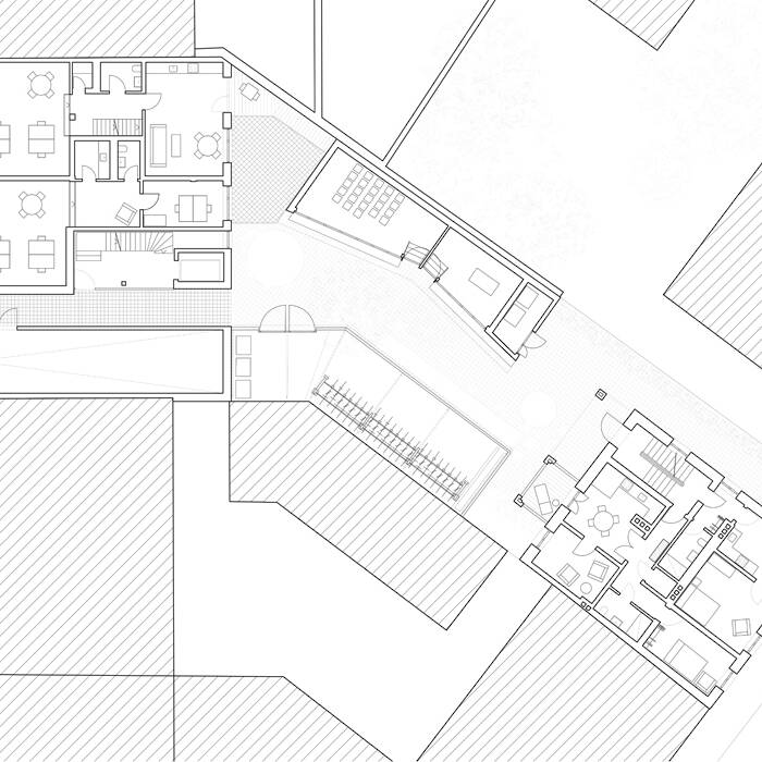
Eine der wichtigsten gegenwärtigen und zukünftigen Bauaufgaben ist es, Bestandsgebäude neu zu errichten oder in zeitgemäße Wohnformen umzubauen. Beides vereint entstand in der Au: als Neubau eines Mehrgenerationenhauses in einer der letzten Baulücken, verbunden über einen Innenhof mit einem Altbau, der saniert und umgebaut wurde. Die Bauherren des großen Grundstücks, das sich von der Kolumbus- bis zur Entenbachstraße erstreckt, wünschten sich, mit Familie und Freunden zusammenwohnen zu können. Für diese Aufgabe gewannen sie das Münchner Architekturbüro Knopp Wassmer, das spezialisiert ist auf Wohnbauten allgemein und auf Sanierungen von Altbauten und Baudenkmalen im Besonderen. Hier kommen beide Spezialisierungen in einem Auftrag zusammen.
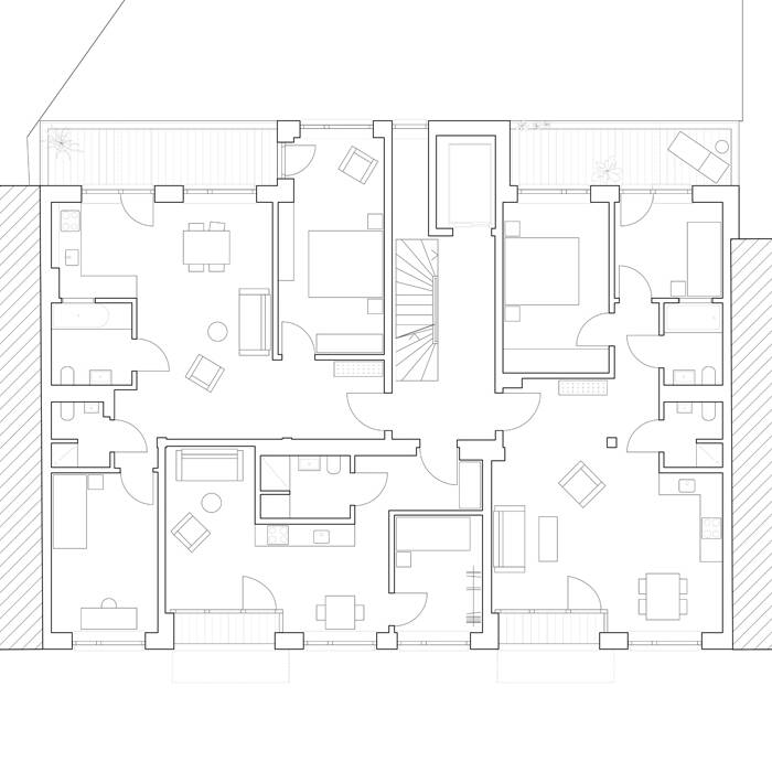
Für die Baulücke in der Kolumbusstraße entwarfen die Architekten einen fünfgeschossigen Neubau, in der Traufhöhe seinen Nachbarn angepasst. Das Erdgeschoss ist gewerblicher Nutzung vorbehalten. Eine Kinderarztpraxis hat hier ihre Räume bezogen. In den übrigen Geschossen liegen Wohnungen mit unterschiedlichen Größen und variablen Grundrissen, gemäß dem Konzept des Mehrgenerationenwohnens. Das erste Obergeschoss ist, ganz traditionsgemäß, die Beletage – auch piano nobile genannt – und besitzt eingezogene Loggien, die übrigen Etagen verfügen über Balkone. Das Attikageschoss ist als Maisonettewohnung mit Dachgarten gestaltet. Der eigentliche Clou des Bauvorhabens besteht im Zusammenschluss von Neu- und Altbau. Im gemeinsam genutzten Innenhof wurde ein von Pflanzen gesäumter Weg aus roten wiederverwendeten Pflastersteinen als Verbindung angelegt.
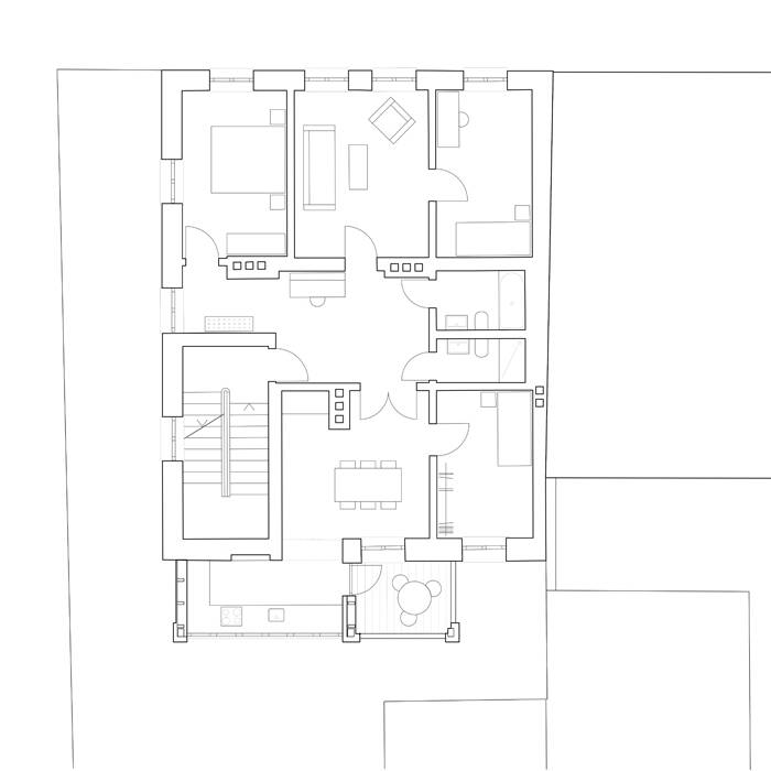
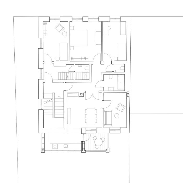
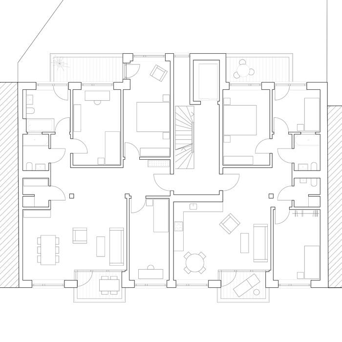
Das Bestandsgebäude mit Schuppen im Hof an der Entenbachstraße aus dem Jahr 1853 diente ursprünglich als Wagnerei. Es wurde grundsaniert und zu einem Wohngebäude mit unterschiedlichsten Wohnungen umgebaut. Im Sinne der Nachverdichtung erhielt dieses Gebäude ein zusätzliches Stockwerk mit einer Maisonettewohnung sowie ein Walmdach. Um großzügigere Wohnflächen zu schaffen, wurde hofseitig ein Annex aus Holz angebaut, in den die Küchen und Loggien ausgelagert wurden. Dieser Typologiewechsel schafft neben dem Raumgewinn eine neue Ausrichtung zum ruhigen, schön begrünten Hof und zum dortigen Spielplatz mit den Gemeinschaftseinrichtungen. Aus ursprünglich 260 m2 wurden durch Aufstockung, Um- und Anbau 518 m2. Bei dieser besonderen Aufgabe zählten nicht nur der Erfindergeist und das Können der Architekten, sondern ihr Einsatz für Nachhaltigkeit, nicht nur was die Materialien angeht, sondern das Schaffen neuer Wohnformen für die sich rasant verändernde Wohn- und Arbeitswelt. Mehrgenerationenwohnen wie bei diesem Projekt ist ein unverzichtbarer Baustein auf dem Weg dorthin.
Fotos:
Adrienne-Sophie Hoffer
www.adriennehoffer.com
(Erschienen in CUBE München 02|24)

