Traumhaus im Schindellook

Mit Seeblick und kleinen Überraschungen

PRINT_Haus-M-Ammersee_01_43_700pixel

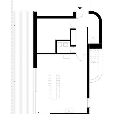
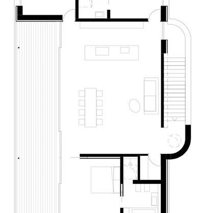
Auf der Suche nach dem geeigneten Architekten für ihr Traumhaus stießen die Bauherren während der Architektouren auf ein Gebäude des Münchner Büros Jacob und Spreng, von dem nun auch der Entwurf für diesen Zweitwohnsitz stammt. Ein Bestandshaus, das zuvor auf diesem Seegrundstück stand, hatte vor Jahren bei einem Hochwasser einen erheblichen Wasserschaden erlitten. Da die Bodenplatte gebrochen war, war es nicht mehr zu erhalten. Als Reminiszenz an das alte Haus trägt nun auch das neue ein „Kleid“ aus Schindeln wie sein Vorgänger. Im Bayerischen Wald fand sich ein Schindelmacher, der das Handwerk noch beherrschte, die Schindeln aus Lärchenholz anzufertigen und anzubringen. Erstaunlich gut verträgt sich diese „Verkleidung“ mit dem modernen Stahlbetonbau und den sichtbar gelassenen Betondecken aus gestocktem Sichtbeton, die das Haus wie zwei Rahmen umfassen. Ein näherer Blick offenbart viele überraschende Feinheiten, die man gemeinsam „erfunden“ hat. Während des Entwurfsprozesses entstand die Idee, die Treppe als Gestaltungselement in Form eines additiven Elements aus Sichtbeton anzubauen. Optisch eine schöne Idee und praktisch eine platzsparende Lösung im Innern. In einem offenen Durchgang an der Nordseite für Auto, Segelboot und anderes Sportgerät befindet sich der Eingang. Ein weiterer Zugang zum Obergeschoss auf der Südseite ist eine motorbetriebene Zugbrücke, die je nach Bedarf hoch- und heruntergefahren werden kann und in den Garten führt. Im Obergeschoss liegt das Schlafzimmer – und wer gerne bei offener Tür schläft, dem sichert die hochgefahrene Treppe einen ruhigen Schlaf. Der riesige überdachte Balkon, der aus dem Obergeschoss auskragt, erstreckt sich über die Hauskante hinaus und verläuft um die Ecke bis zur Zugbrücke. So ergibt sich ein Frühstücksplatz im Süden, während die Hauptbalkonfläche nach Westen zum See hin ausgerichtet ist. In einen Ausschnitt im Balkondeck eingelassen ist ein Liegenetz – sehr geeignet zum entspannen, lesen, dösen. Überhaupt gibt es immer wieder kleine Überraschungen und das ganze Gebäude richtet sich sehr nach dem Bedarf seiner Nutzer. Keine standardisierten Raumaufteilungen, alles ist offen. Kein luxuriöser, überflüssiger Schnickschnack, sondern sympathische, pragmatische und doch sehr geschmackvolle Lösungen.

Im Erdgeschoss befindet sich ein großer Raum von etwa 55 m², der ein hängendes Sofa à la Hollywoodschaukel enthält sowie eine lange Werkbank. Eine Toilette, ein Technikraum – das war’s. Hier kann man arbeiten, relaxen oder auch mal Partys feiern. Eine breite Treppe aus Douglasie führt nach oben, wo ebenfalls ein großer, offener Raum mit langen breiten Douglasiendielen alle Wohnfunktionen erfüllt. Ein hohes, offenes Küchenregal, das fast die ganze Schmalseite ausfüllt, und ein tischartiger Küchenblock aus Edelstahl sind die unbestrittenen Eyecatcher in diesem Raum – und natürlich die riesige raumhohe und rahmenlose Fensterfront mit Blick zum See. An beiden Enden des Raums docken kleinere Schlaf- oder Gästezimmer mit Bädern an. Außen wie innen erfrischend unprätentiös.

www.jacobundspreng.de

Wohnfläche: ca. 202 m² + 55 m² Balkon + 60 m² Terrasse
Grundstücksgröße: 1.630 m²
Bauzeit: 2018–2019
Bauweise: Massivbau Stahlbeton mit hinterlüfteter Schindelfassade
Energiekonzept: Gasbrennwert, Fußbodenheizung, Lüftungsanlage mit Wärmerückgewinnung

(Erschienen in CUBE München 03|20)

Architekten:

Jacob & Spreng Architekten
www.jacobundspreng.de

Metallbau, Zugtreppe:

Metallbau Harald Simeoni
www.simeoni-metallbau.at

Fenster:

Ritzke Fenster & Türen
www.ritzke.info

Elektro:

Elektro Reik
www.elektro-reik.de

Heizung, Lüftung, Sanitär:

Speldrich Heizung Sanitär Lüftung
www.speldrich.de

Schreinerarbeiten, Dielenboden:

Oskar Hoffmann Bau- und Möbelschreinerei
www.oskarhoffmann.de

Küche:

Oskar Hoffmann mit Simeoni Metallbau
www.oskarhoffmann.de
www.simeoni-metallbau.at

Holzschindelfassade:

Schindelwerkstatt Zimmerei-Holzbau Daniel Ehrenthaler
www.schindelwerkstatt.de

Rohbau:

Rogorsch + Strobl Bauunternehmung
www.rogorsch-strobl.de

Leuchten (innen):

Delta Light
www.deltalight.com

Leuchten (außen):

Bega
www.bega.com

Fenster:

Keller minimal Windows
www.minimal-windows.com
Josko
www.josko.com

Armaturen:

Antonio Lupi
www.antoniolupi.it

Sanitär-Keramik:

Laufen
www.de.laufen.com

Fotos:

Jonathan Sage
www.jonathansage.de

Nothing found.

Farbspektrum

Ein Business Club in Citylage setzt farbenreich auf Exzellenz und Vielfalt

Ein Teil des Waldes

Umbau einer Scheune zu einem modernen Rückzugsort

Passgenau am Bach

Eine geförderte Wohnanlage in Bergisch Gladbach ordnet sich kleinteilig in ihren Kontext ein

Ästhetik in jeder Hinsicht

Das Design einer oralchirurgischen Praxis vermittelt Ruhe, Kompetenz und Wärme

Nothing found.

Symbiose aus Alt und Neu

Kindertagesstätte wird saniert und mit Neubau ergänzt

_MG_3491_Pano_19_700pixel

Doppelhaus mit Alpenblick

Murnau ist um zwei lichtdurchflutete Domizile reicher

994-TUM-Campus_DS_5376_-_Aldo_Amoretti_15_700pixel

Sport für Zehntausende

Der neue TUM Campus – das wohl größte Universitätssportgelände als Holzbau

_AHA6449_a_hanebeck-fin_15_700pixel

Eine Platzzierde – Einst und jetzt

Jugendstilensemble am Harras originalgetreu instand gesetzt

Lebe außergewöhnlich

Eine dänische Designmöbel-Marke schafft individuelle Wohnumgebungen

druck_g22_0821-2117-ohne-Kamin_19_700pixel

Villa in schlichter Eleganz

Einfamilienhaus mit Ausblick in Landsberg am Lech