Maßgeschneidertes Zuhause
Bei diesem Einfamilienhaus wurden unterschiedliche Lebensphasen eingeplant
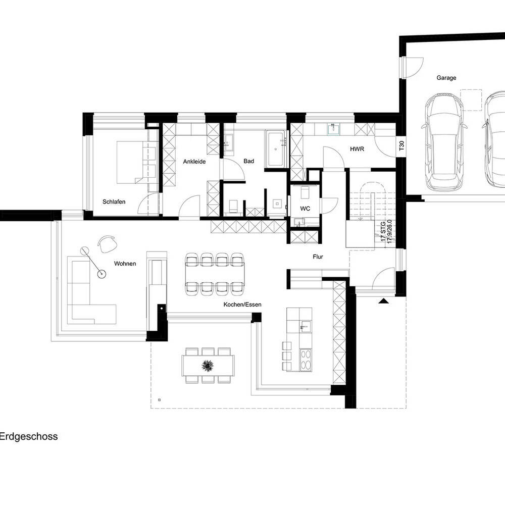
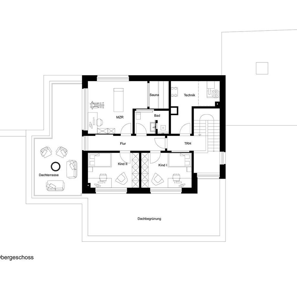
Ein unbebautes Grundstück in dieser Lage zu finden, ist ein Glücksgriff. Am Rande eines Neubaugebietes gelegen, bietet es einen Blick in die Natur und auf eine Pferdewiese. Eine Patchwork-Familie beschloss, hier ihr Domizil aufzuschlagen. Die zwei Erwachsenen und zwei Jugendlichen hatten bereits genaue Vorstellungen davon, welche Kriterien ihr neues Zuhause erfüllen soll. Die Architekten Engelshove Bau hatten daher eine konkrete Basis für die Entwurfsgestaltung, die von Beginn an sich ändernde Wohnkonstellationen einbezog. Das Paar wünschte sich eine ebenerdige Lösung, die Räume ihrer Teenager sollten sich im Obergeschoss befinden. Beide Wohnbereiche, Erd- und Obergeschoss, sollten zudem als abgeschlossene Wohneinheit teilbar sein, um sich Flexibilität für die Zukunft zu erhalten.
„Es ist sinnvoll, sein eigenes Haus gründlich und mit Blick auf sich unterschiedliche Lebensphasen und sich verändernde Lebensperspektiven sowie differierende Ansprüche zu planen“, rät auch Anja Engelshove, die auf nahezu drei Jahrzehnte Erfahrung und hunderte realisierte Projekte zurückblicken kann. Vor- und Rücksprünge verleihen dem Gebäude eine angenehme Leichtigkeit, mit der sich dieses geschmeidig in seine Umgebung einfügt. Gleichzeitig entstehen dadurch Freiräume und überdachte Terrassen, die die Natur unmittelbar erlebbar machen. Da die Bauherren auch ihre privaten Räume im Erdgeschoss verortet haben, wurde die Terrasse vor dem Schlafbereich von der Terrasse am Wohn-Esszimmer und dem Küchenbereich getrennt. Der längliche creme-weiß hellgrau gedämpfte Klinker trägt in Kombination mit großzügigen Fensterfronten wesentlich zum eleganten Erscheinungsbild bei. Nicht umsonst zählen Tonbaustoffe zu den favorisierten Materialien der Architektin. „Mit ihrer Vielfalt an Farben, Formen und Strukturen lassen sich charaktervolle und individuelle Fassaden gestalten“, schwärmt Anja Engelshove. Besonders spannend wird es, wenn wie hier bei der Fassade am Eingangsbereich, das Zusammenspiel der Materialien erweitert wird. Hier sind es Lamellen aus Aluminium, die moderne und reizvolle Akzente setzen. Noch eine Besonderheit des Entrees: Bewohner:innen und Besucher:innen bietet sich bereits vom Eingangsbereich ein Blick durch das Gebäude in den Garten, den Anja Engelshove von Beginn an in ihre Planung einbezogen hat.
Innen gehen der großzügige Wohn- und Essbereich ineinander über und werden dennoch als eigenständige Bereiche wahrgenommen. Erreicht wird dies durch ein raumtrennendes Element, in das der von drei Seiten verglaste Kamin integriert ist. Die Böden sind mit großformatigen Fliesen und Vinyl-Designböden ausgestattet. In den Privaträumen wurden Einbaumöbel individuell angefertigt. Warmwasser, Wärme und Strom werden über eine Brennstoffzellenheizung generiert.
Wohnfläche: 215 m²
Grundstücksgröße: 646 m²
Bauzeit: 2021–2023
Bauweise: Offene Bauweise
Energiekonzept: KfW 40
Fotos:
Arnt Haug
www.arnt-haug.de
(Erschienen in CUBE Ruhrgebiet 04|24)
