Unter einem Dach
Das ehemals in der Schlossstraße beheimatete DIPF | Leibniz-Institut für Bildungsforschung und Bildungsinformation brauchte mehr Platz. In einem Neubau sollten Mitarbeiter gemeinsam untergebracht werden, die zuvor an unterschiedlichen Orten arbeiteten, und auch weiteres Wachstum berücksichtigt werden. Um außerdem die Kooperationen mit der Goethe-Universität zu stärken ist das DIPF auf den Campus Westend gezogen. Das neue DIPF-Domizil, das das Büro K9 Architekten aus Freiburg errichtet hat, ist mit rund 50 m aktuell das höchste Gebäude auf dem Campus.
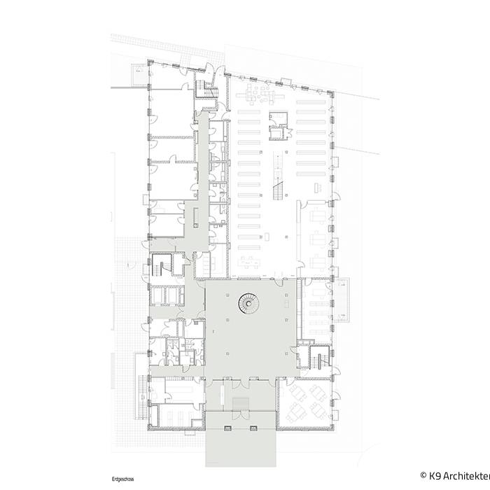
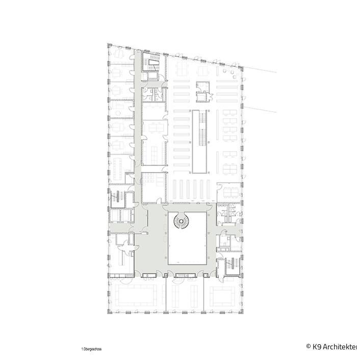
Mit dem Hochhaus entstand am nordwestlichen Tor zum Campusgelände ein repräsentativer und markanter Neubau. In 13 Geschossen haben die Architekten neben Büros einen Laborkomplex mit Untersuchungsräumen, einen Konferenzbereich, eine Bibliothek und Raum für eine Kita untergebracht. Auch wenn sich der Neubau durch seine Höhe (noch) etwas von der Umgebung abhebt: Die schmalen Fensterraster in Natursteinfassung korrespondieren mit anderen Campusgebäuden und auch der über das Campusgelände erreichbare Eingang betont die Zugehörigkeit. Hinter dem Eingang liegt das offene Atrium, von dem aus man in unterschiedliche Nutzungsbereiche des Gebäudes gelangt. Da die Bibliothek des Instituts auch externen Nutzern offenstehen soll, wurde sie gleich gegenüber dem Eingang und an das Foyer anschließend untergebracht.
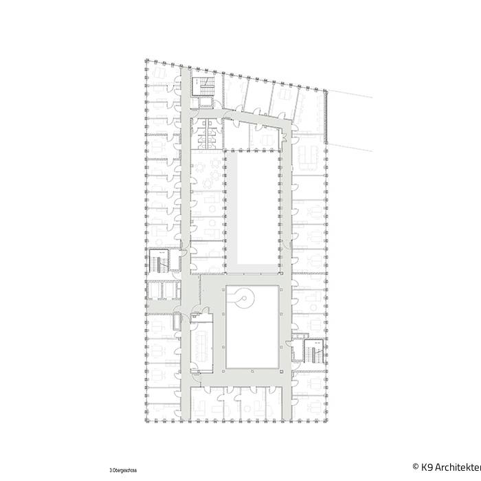
„Mit dem überdachten Atrium entsteht ein Raum, der das vertikale und horizontale Wegenetz im Gebäude zusammenfasst“, erläutert Wolfgang Borgards. Denn hier verbindet eine imposante und raumprägende Wendeltreppe das Foyer auf direktem Weg mit dem Konferenzbereich im 1. Obergeschoss sowie mit dem 2. Obergeschoss, wo die Testräume liegen. Zwei Aufzüge garantieren zudem schnelle Verbindungen und den barrierefreien Zugang.
Der Entwurf von K9 Architekten ging übrigens aus einem Wettbewerb mit 21 teilnehmenden Architekturbüros hervor. Das Preisgericht begründete seine Entscheidung u. a. mit der „überzeugenden städtebaulichen Gesamtfigur“ und dem überzeugenden Eingang mit dem mehrgeschossigen Foyer samt der übersichtlichen Erschließung aller Nutzungsbereiche.
Fotos:
Oliver Rieger Photography
www.oliverrieger.com
(Erschienen in CUBE Frankfurt 03|19)
