Zweieiiger Zwilling
Ein neues Zuhause für Bürger und Vereine in Mainz-Hechtsheim
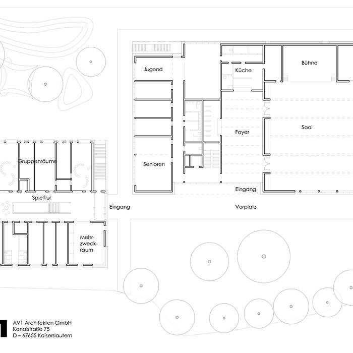
Was nach außen hin äußerst kompakt wirkt, zeigt innen Raum für unterschiedliche Funktionen. Denn das neue Bürgerhaus in Mainz-Hechtsheim bietet sowohl Platz für Veranstaltungen und Nutzungen aller Art als auch Räume für eine Kita. Ein zentral gelegenes, eingeschossiges Foyer teilt dabei den dreigliedrigen Baukörper in zwei Funktionseinheiten: Erstere beherbergt den großen Festsaal, die zweite Nutzungseinheit umfasst Senioren- und Jugendbereiche sowie verschieden nutzbare Räume und die Ortsverwaltung. Zu dieser Vielseitigkeit passt die dezent verspielte und doch klar strukturierte Außenfassade aus Holz, deren angenehme Leichtigkeit im Inneren fortlebt – auch wenn hier Putzoberflächen und Sichtbeton dominieren.
Der Neubau von AV1 Architekten aus Kaiserslautern verfolgt gleich mehrere Ziele: Zum einen, ein multifunktional nutzbares Haus für den Ortsteil zu schaffen. „Es sollte ein Ort für Jung und Alt werden, für Fassenachter und Vereinsmitglieder, zum Arbeiten und Feiern unter den herausfordernden Leitfäden der Inklusion und des Wohlbefindens“, erläutern die Architekten. Zum anderen sollte ein Gebäude entstehen, das gleich mehrfach ein Stück Natur in die Stadt zurückbringt. Bei der Fassade entschieden sich die Architekten daher für den Baustoff Holz. „Wir wollten die Grenzen aufheben zwischen Außen- und Innenarchitektur, Konstruktion und Ausbau, Nutzen und Ästhetik. Das Bürgerhaus zeichnet zudem ein hoher ökologischer Anspruch aus.“
Nicht nur bei der Gebäudehülle legten die Architekten Wert auf Nachhaltigkeit. Auch bei der Wärme- und Stromerzeugung oder der Lüftung kommen umweltschonende Lösungen zum Einsatz. Wer übrigens die beiden eleganten Bürgerhäuser aus Holz in Finthen und Hechtsheim kennt, könnte auf den ersten flüchtigen Blick vielleicht meinen, dass es sich um Zwillinge handelt. Ein zweiter Blick allerdings zeigt: Auch, wenn sich beide Bauvorhaben in Wirkung und Konstruktion ähneln und auch die innere Struktur vergleichbar ist: Jedes Bürgerhaus ist ein Unikat mit Holzfassade, das sich den örtlichen Gegebenheiten und unterschiedlichen Nutzeranforderungen anpasst. Und zwar mit eigenem Ausdruck und Charakter.
Fotos:
Michael Heinrich
www.mhfa.de
(Erschienen in CUBE Frankfurt 02|21)



