Wie ein Ruhepol

Einfamilienhaus mit reduzierter Formgebung und sparsamem Materialmix

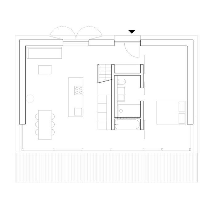
Ganz anders und dabei doch ganz passend: Auch wenn sich das Wohnhaus aufgrund seiner reduzierten Formensprache und den großflächigen Öffnungen in einer sonst homogenen Gebäudehülle von den Nachbarhäusern abhebt, reiht es sich mit seiner Größe, der Linienführung und Farbgebung doch ganz selbstverständlich in das umliegende Quartier ein. Von außen zeichnet sich das Haus durch die Verwendung einer Holzkonstruktion mit Satteldach aus, was zugleich als Reminiszenz an die lokale Bautradition der Höfe und Stallungen gedacht ist. Während sich die Immobilie zur Straße hin sehr geschlossen präsentiert, überrascht sie auf der Gartenseite mit einem großzügigen Innen- und Außenraumbezug, der den Wohnbereich weit öffnet und Innen und Außen fast verschmelzen lässt. Aus dem Wohnzimmer mit seiner offenen Küche, dem Schlafzimmer und sogar aus der Badewanne, die sich mit einem Handgriff zu einer Sitznische umbauen lässt, kann der Blick ungehindert in den Garten fallen. Indirekt belichtet wird das Badezimmer im Erdgeschoss, das mit Zementfliesen ausgestattet ist, zudem über Glasbausteine von der Gartenseite. Um auch die straßenzugewandte, geschlossene Seite des Hauses mit genügend Helligkeit zu versorgen, wurde die formbestimmende Gaube entwickelt. Sie versorgt das darunterliegende Wohnzimmer zusätzlich mit Licht von oben. Doch nicht nur das: Durch den Kamineffekt lässt sie die Luft in den Sommermonaten angenehm zirkulieren.

Das Erdgeschoss zeichnet sich durch einen zentral gelegenen Kern mit Badezimmer, Küche und Treppe in das 1. Obergeschoss aus. Dieser zoniert auf ganz einfache Weise die Wohnbereiche, die sich bei Bedarf über Schiebetüren öffnen und voneinander abtrennen lassen. Flure, die häufig unnötig Platz fordern, werden dadurch überflüssig. Da sich Wohnzimmer und Küche einen Raum teilen, kann die Küche, die sich unterhalb der Treppe befindet, bei Bedarf über Schiebetüren aus Holz verborgen werden. Im Obergeschoss ist das Gästezimmer mit Badezimmer untergebracht, das in die Schrankwand an der Giebelseite integriert wurde und über eine gartenseitige Gaube belichtet wird. Die Richtung der vertikalen Schalung aus heimischem Lärchenholz wird auf dem Dach durch die Stehfalz der Zinkabdeckung fortgeführt. Auch in ihrer Farbe sprechen die beiden Materialien die gleiche Sprache. Genauso reduziert wie sich das Äußere präsentiert, geht es im Inneren weiter. Die Konzentration auf das Wesentliche ist überall spürbar und besonders hinsichtlich der verbauten Materialien sichtbar: Verputzte Lehmwände, die für ein besseres Raumklima sorgen, und ein eingefärbter Estrich, der geschliffen und poliert wurde, bilden die Grundlage, auf der die Treppe und die Einbaumöbel, deren Oberfläche aus Birke ist, ihre Wirkung entfalten. Als weiteres Material kam Aluminium in der Küche zum Einsatz.

Bei der Planung und Realisierung des Gebäudes konnten sich Bauherrin und Architekten schnell auf eine herkömmliche Bauweise einigen, die ohne viel Technik auskommt und vor allem nachhaltige Materialien berücksichtigt. Dieser Low-Tech-Gedanke führte auch zu der Kuppel, die durch den Kamineffekt eine natürliche Belüftung unterstützt und den Innenraum mit indirektem Licht versorgt. Nicht zuletzt strahlt das Haus, das die Familie unter Leitung der Tochter, Architektin Ann-Kathrin Lepke, größtenteils in Eigenleistung errichtete, aufgrund der Konzentration auf das Wesentliche eine unaufgeregte Ruhe aus.

www.buschtakasaki.de

Fotos:

Ruben Beilby
www.rubenbeilby.de

(Erschienen in CUBE Berlin 01|24)

Architektur:

Busch & Takasaki Architekten
www.buschtakasaki.de
Ann-Kathrin Lepke

Tragwerksplanung/Bauphysik:

Tragwerksplanung Bauphysik
Lepke Ingenieure
www.lepke-ing.de

Zimmerei:

Ideen aus Holz – Oliver Lepke
www.iseholz.de

Küche:

Reform Furniture Germany
www.reformcph.com

Nothing found.

Farbspektrum

Ein Business Club in Citylage setzt farbenreich auf Exzellenz und Vielfalt

Ein Teil des Waldes

Umbau einer Scheune zu einem modernen Rückzugsort

Passgenau am Bach

Eine geförderte Wohnanlage in Bergisch Gladbach ordnet sich kleinteilig in ihren Kontext ein

Ästhetik in jeder Hinsicht

Das Design einer oralchirurgischen Praxis vermittelt Ruhe, Kompetenz und Wärme

Nothing found.

Offenes Wohnen

Wohnanlage als Neuinterpretation des Berliner Blocks

Still3_Endbearbeitung_15_700pixel

Neu – aber klassisch gewandet

Das Townhouse in der Oberwallstraße gewann den Publikumspreis des BDA Berlin

VSP_2019_1240_by_viktor_strasse2_42_700pixel

Symphonie in Schwarz

Selten geworden: Ein luxuriöses Einfamilienhaus in der Hauptstadt

16_9263_43_700pixel

Smarter Minimalismus

Eine Villa verbindet eine plastische Komposition mit einer anspruchsvoll integrierten Haustechnik

CoNow_Fotos_a_CoNow_WtWMG_Zara_Pfeifer_05_15_700pixel

Haus im Haus zum Selberbauen

In einer Industriehalle versteckt sich ein „House in Progress“

53091_Gleispark_Schulz_001_korr_inkl-PR_19_700pixel

Wohnen statt Parken

Ein halbiertes Parkhaus schafft Platz für vier Wohnhäuser am Gleispark

2020-02-17-caimmo-berlin-cube-001-h_19_700pixel

Gläserne Skulptur mit Gehirn

Das würfelförmige Gebäude wirkt von außen wie eine abstrakte, moderne Skulptur. In der gefalteten Fassade aus Glas spiegelt sich kaleidoskopartig die…