Industriell trifft modern
Eine Münchner Unternehmensberatung erhält eine neue maßgeschneiderte Arbeitsumgebung
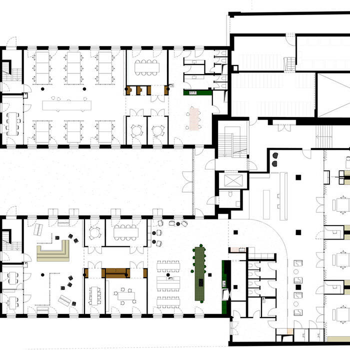
Klare Linien und eine Farbgebung in gedeckten Tönen von hellem Grau bis zu Gold und einem sanften Pastellgrün machen das architektonische Konzept für eine Münchner Unternehmensberatung zu etwas ganz Besonderem: Unaufgeregt zurückhaltender Luxus trifft eine moderne industrielle Welt – passend zur 2007 gegründeten Kemény Boehme & Company (KBC), die sich auf Technologie- und technologielastige Branchen fokussiert. Das sehr geradlinige, aufgeräumte Interior-Konzept hat das Münchner Büro Inpuls umgesetzt. Die Inhaberin und Innenarchitektin Réka Visnyei und ihr Team haben auch in dieses Projekt wieder ihren Sinn für Ästhetik gepaart mit Fantasie und Leidenschaft eingebracht und die Räume mit spannenden Details ausgestattet.
Die im Fabrikstil gehaltenen Office-Flächen zeigen rohe Decken und Wände aus Beton und Stahlträger – passend dazu wurde ein imposanter, vier Meter langer Empfangstresen aus hellem Beton in die offene Fläche platziert. Als akustisch wirksame Raumtrenner haben die InnenarchitektInnen in Zusammenarbeit mit Designer Jannis Schäfer Textilrahmen aus zweifarbigen Gurten entwickelt, die durch ihre grün-weiße Schnürung unterschiedliche Muster ergeben. Simple Punktstrahler sowie lange Stableuchten erleuchten die Szenerie. Weil die KBC-BeraterInnen die meiste Zeit beim Kunden verbringen, wurden nur noch wenige feste Teambüros mit festen Mitarbeiterplätzen ins Konzept integriert. Neues mit Altem zu verbinden, stand bei dem Entwurf, in dem der Altbau um zwei parallele, baugleiche Gebäude erweitert worden war, ebenfalls im Fokus: Ein Bodenbelagswechsel von Parkett zu Estrich signalisiert seither den Übergang, zudem wurden verschiedene „Zonen“ geschaffen. Die erste liegt im Altbau und besteht aus Silent-Work Bereichen, Teambüros und Telefonzellen. In Harmonie mit dem hellen, geölten Eichenparkett erzeugen hier warme Grau – und Beigetöne ein wohnliches und anmutendes Arbeitsumfeld. Im zweiten Abschnitt befindet sich die mittelaute Zone mit Arbeitsinseln für konzentriertes Arbeiten – schwebende Raumtrenner sorgen hier für die nötige Abgrenzung. In der dritten Zone sind mit einer offenen und großzügigen Worklounge und einem flexiblen Workshopspace Diskussionen, Vorträge, Meetings und Veranstaltungen möglich. Die vierte Zone ist mit Meeting Points, einem Coffeecorner sowie allen wichtigen Versorgungseinrichtungen wie Postfächer, Spinde, Drucker und Toiletten die wohl kommunikativste. Zudem wurden die Übergänge spannend gestaltet, etwa vom optisch hell gehaltenen Gemeinschaftsbereich in einen goldbraunen Flur einzutauchen, der Ruhe und Konzentration ausstrahlt.
Fotos:
Lukas Schramm
www.lukas-schramm.com
Andreas Graf
www.andreas-graf.com
(Erschienen in CUBE München 04|21)
